 |
 |
 |
 |
 |
|
|
|
|
|
| |
Ficha técnica
Nombre: Hei Tower
Programa: edificio mixto
de uso residencial, comercial y oficinas
Ubicación: No. 1 Nguy Nhu Kon Tum St, Trung
Hoa, Nhan Chinh Award, Thanh Xuan District, Hanoi,
Vietnam
Proyectista: CMV Architects
Comitente: Hanoi Power Investment JSC
Costo: 856,2 Billion Vietnam Dongs
Colaboradores: ICOFFSHORE, VHT Engineering, CTC Hanoi Architectural University,
Techno Tsq and Tsq Long Giang Corporation
Competencia: Primer premio
Area del terreno: 5105,9 m2
Area construida: 64267,73 m2
Estado: en construcción
Fecha inicio construcción: febrero de 2011
Sitio web: http://www.cmv-architects.com
|
|
Ver
planos de la obra
English
version
El
proyecto Hei Tower, ubicado en Hanoi
City, obtuvo el primer premio en competición.
Se trata de un edificio
mixto con uso
comercial, oficinas en alquiler, service center y apartamentos.
Se centra especialmente en la correcta organización
y utilización del edificio.
Situado en una esquina, quiere responder a esta ubicación,
garantizando áreas para el desarrollo de las
relaciones sociales entre residentes y visitantes.
Además se han creado diversos espacios
abiertos para aumentar el espacio
público.
El edificio
consta de 27 plantas sobre el nivel del suelo. En un
edificio cuyos usos se alternan, es muy
importante establecer un plan operativo claro.
La decisión
más importante adoptada, consistió en
la percepción volumétrica del
edificio evitando la imagen de "caja".
La fachada ha sido diseñada para crear más
espacio en el centro, además el uso
de diferentes materiales en la misma reflejan esta función.
El edificio
consta de dos torres diferentes y se han establecido
dos entradas, ambas claramente identificadas
y cada una se relaciona con una de las torres.
La entrada
a las oficinas y los apartamentos está situada
en la primera torre, en la calle principal.
Esta entrada
es más visible que la destinada para el área
comercial, que tiene acceso a través de un amplio
jardín.
Con el uso de grandes fuentes y vegetación,
esta entrada ofrece una atmósfera de relajación.
La solución que presenta el proyecto de Hei
Tower incluye todas las consideraciones básicas
esbozadas en un rascacielos de oficinas con
una gran área
comercial en la planta baja.
Esta arquitectura responde
a los estándares actuales de la racionalidad
y funcionalidad, con un toque de vanguardia
en sus diseños y formas.
El edificio ha sido establecido
como una mezcla de dos tetraedros.
Esto se traduce
en dos torres, casi a la misma altura, creando
un juego de sombras, porque uno siempre está en el fondo.
English
version
Hei Tower Project, in Hanoi City, got first prize
in competition. It’s
a mix-used building with commercial, office for lease, service center and apartments.
It is focused particularly in the right organization
and use of the building.
The building wants to answer
the corner location, ensuring areas for develop
social relationships between residents and visitors. It has been created different
open areas to increase public space.
It has 25 floors and 2 basements
and 2 Mezzanines. The most important decision was the volumetric perception
of the building.
Avoiding a "box" image,
Hei Tower façade has been turned to create more
space at the center, and different façade materials
reflect the function at façade.
The building has two different towers and two different
entrances has been established, both of them clearly
identified and each one connected with one of the
towers.
Access to offices and apartments is on the
first tower, in main street. This one is more visible
that the one for commercial use which has access
through a huge garden with big fountains and vegetation.
This entrance offers a relax atmosphere.
The solution
presented by Hei Tower project includes all the basic
considerations outlined in a skyscraper
with offices and a big commercial area on the ground
floor.
This architecture answers current standards
of rationality and functionality, with a touch of art
in their designs and forms.
The building has been established
as a mix of two tetrahedrons. This is traduced in two
towers, almost at the same high, creating a shadows
game because one of them is always at the background.
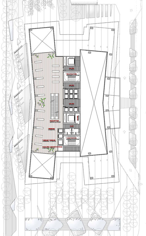
Planos
Realice click en los links para ver los planos.
[1] Planta
principal
[2] Planta
entrepiso
[3] Planta
oficinas
[4] Planta
departamentos
[5] Planta
azotea
[6] Corte
Imágenes
Realice click sobre las imágenes para ampliarlas.
|