Arquimaster - Medio digital de arquitectura, diseño y construccion Estas visitando la version anterior,
para ver la version actual realiza click aca

 

     
       
 
Climanet - Doble Vidrio Hermetico DVH
Matyser - Materiales y servicios para la construccion
Cursos de arquitectura y diseño de espacios
Anclaflex
Curso Introducción a Revit: Modela tus proyectos arquitectonicos
Bara
Casa V (México) - Serrano Monjaraz Arquitectos
Curso Introducción a Revit: modela tus proyectos arquitectónicos
 

Ficha técnica
Nombre: Casa V
Ubicación: México D.F., México
Proyectistas: Serrano Monjaraz Arquitectos
Equipo de diseño: Arq. Juan Pablo Serrano O., Arq. Rafael Monjaraz F., Arq. Loraine Smith
Interiores: Serrano Monjaraz Arquitectos
Tipo de proyecto: Residencial
Iluminación: Brimare SA de CV
Fecha: 2009
Superficie terreno: 740 m2
Superficie construida: 805 m2
Fotógrafo: Jaime Navarro
Sitio web: http://www.serranomonjaraz.com

 

Ver planos de la obra

La luz natural es el elemento central para el diseño y orientación de esta casa.

Las orientaciones fueron pensadas para utilizar el movimiento de la luz y la sombra como parte de la decoración de cada uno de los espacios.

La naturaleza es el elemento que integra el exterior e interior de la casa.

Para la construcción de toda la casa se utilizaron concreto expuesto y madera para garantizar el requerimiento de bajo mantenimiento de todas las áreas, así como el correcto envejecimiento del espacio con la pátina natural de ambos elementos.


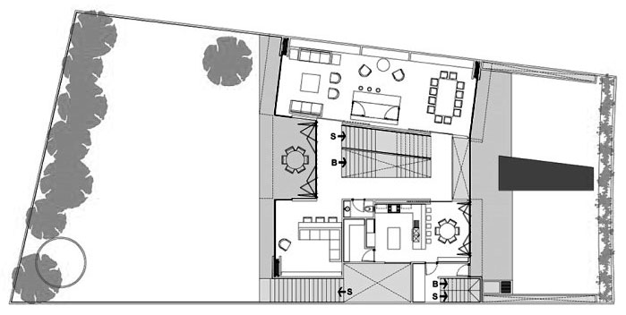
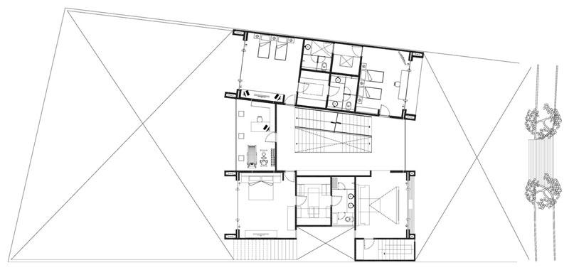
Planos
Realice click en los links para ver los planos.

[1] Planta baja
[2] Planta alta
[3] Corte
[4] Vista


Imágenes

Realice click sobre las imágenes para ampliarlas.


Acerca de los proyectistas
Serrano Monjaraz Arquitectos es una firma fundada en la Ciudad de México en 1992. Su objetivo es el desarrollo de espacios arquitectónicos en los que la calidad se logra por el adecuado uso de materiales y la luz como elemento creativo.

Siendo el espacio su materia prima, los arquitectos Juan Pablo Serrano Orozco y Rafael Monjaraz Fuentes, demuestran su capacidad y desempeño en todos los campos de la arquitectura contando siempre con el apoyo de equipos interdisciplinarios. Un importante número de sus proyectos han sido reconocidos con importantes premios tanto en México como en el extranjero.

Su estructura y profesionalismo les ha dado la oportunidad de trabajar en asociación con importantes firmas y arquitectos. Han sido invitados a concursos nacionales e internacionales y participan activamente en la formación y difusión del quehacer arquitectónico.


Juan Pablo Serrano Orozco
Arquitecto

Nació en 1969 en la Ciudad de México. En el año de 1987 inicia sus estudios de arquitectura y urbanismo en la Universidad Iberoamericana, con intercambios en la Universidad de Texas en Austin y la Universidad de California en Los Ángeles. Recibe Mención Honorífica de la Universidad Iberoamericana en 1991. Cuarta generación de arquitectos en su familia. Catedrático de la Universidad Iberoamericana desde el año de 1993 a la fecha. Trabajó en los talleres de Teodoro González de León, J. Francisco Serrano, Augusto H. Álvarez y Ricardo Legorreta. Su obra ha participado en distintas exposiciones en importantes ciudades como: México, Estados Unidos, París, Singapur Hong Kong, Francia, Grecia y España. Entrevistas y publicación de sus proyectos en diversas revistas nacionales e internacionales. Ha recibido un gran número de distinciones y reconocimientos tanto en México como en el extranjero.


Rafael Monjaraz Fuentes
Arquitecto
Nació en 1969 en la ciudad de México, en 1988, estudia artes plásticas en la Academia Dante Alighieri e inicia sus estudios en la Facultad de Arquitectura en la Universidad de los Estudios de Roma "La Sapienza". En 1992 comienza su especialización en urbanismo y comienza su práctica profesional en la ciudad de Roma fundando su firma: Monjaraz Arquitectos. Durante sus estudios trabaja para la revista L'Arca especializada en arquitectura, así como para diversos despachos de arquitectos como Boni & Nervi Arquitectos Asociados. En 1995 regresa a México, continua con encargos y concursos, diseña su casa estudio "LAU". Ha impartido cátedra y conferencias en la Universidad de Estudios de Roma "La Sapienza", el Politécnico de Milán, así como en distintas universidades en México. Ha realizado trabajos en colaboración con distintos grupos desarrolladores y ha participado en proyectos con firmas de arquitectos en México e Italia. Ha recibido importantes reconocimientos nacionales e internacionales.

 
Curso Diseño y modelado arquitectónico 3D con Revit
 
 
Si usted es profesional, este es su espacio para publicar su obra o proyecto (en forma gratuita). Para más información visitar la sección contacto: click aquí.
   
   

Noticias
informes especiales
bienal de arquitectura BA11
bienal de arquitectura BA09
publicaciones

Artículos
notas y artículos de interés
arquitectura legal
diseño de iluminación
software de arquitectura y diseño

Recursos
curso de decoracion (gratis/online)
archivo temático
descargas externas
curso de croquis (gratis/online)

Precios y costos
precios de materiales, indices y
costos m2 de construcción

Proyecto
obras construidas
proyectos para concursos
proyectos de estudiantes
arquitectos destacados
obras destacadas

Diseño
diseño industrial y mobiliario
diseño interior y decoración
Casa FOA 2009
Casa FOA 2010
Casa FOA 2011
Casa FOA 2012
Casa FOA 2013
Casa FOA 2014
Estilo Pilar 2010
Estilo Pilar 2012

Construcción
materiales y tecnologías
novedades de empresas
sector inmobiliario

Agenda
cursos y seminarios
congresos y bienales
charlas y eventos
exposiciones y muestras
concursos

Facultad
becas y subsidios
posgrados y maestrías
donde estudiar

Varios
ofertas laborales arquitectura, diseño y construccion
suscripcion newsletter (gratis)
redes sociales
publicidad

Arquimaster en Facebook
Arquimaster en Twitter
Arquimaster en LinkedIn
Arquimaster en Pinterest