Arquimaster - Medio digital de arquitectura, diseño y construccion Estas visitando la version anterior,
para ver la version actual realiza click aca

 

     
       
 
Climanet - Doble Vidrio Hermetico DVH
Matyser - Materiales y servicios para la construccion
Cursos de arquitectura y diseño de espacios
Anclaflex
Curso Introducción a Revit: Modela tus proyectos arquitectonicos
Bara
Casa BA (Ituzaingó, Pcia. Buenos Aires) - BAK arquitectos
Curso Introducción a Revit: modela tus proyectos arquitectónicos
 

Ficha técnica
Obra: Casa BA
Ubicación: Villa Udaondo, Ituzaingó, Pcia. de Buenos Aires, Argentina
Proyecto: María Victoria Besonías y Guillermo de Almeida
Dirección: María Victoria Besonías, Guillermo de Almeida y Luciano Kruk
Superficie del terreno: 418.53 m2
Superficie construida: 190.50 m2
Año de construcción: 2011
Fotos: Gustavo Sosa Pinilla

 

Ver planos de la obra

El lugar

Se trata de un terreno dentro de un pequeño condominio de 16 lotes ubicado en una zona del conurbano bonaerense, tradicionalmente de quintas, que con la traza de la Autopista del Oeste se ha ido, paulatinamente transformando, en lugar de vivienda permanente. Ubicado frente a los terrenos del Instituto Nacional de Tecnología Agropecuaria (INTA) esta localización tiene garantido a largo plazo seguir manteniendo una situación de privilegio respecto a su calidad de vida y su valor paisajístico.


El encargo

Una casa para ser usada como vivienda permanentemente de los arquitectos Besonías y Almeida que traía como condicionante fundamental, resolver las cuestiones relacionadas con la seguridad de la misma en ese lugar apartado y con pocos habitantes permanentes. Se sumaba a esta dificultad el hecho de que iban a ser de los primeros vecinos en habitar el pequeño condominio. Por supuesto la cuestión del cierre seguro tenía que ser resuelta sin que se resintiera la integración interior exterior tema irrenunciable en todas las obras del estudio. La otra cuestión a considerar era la flexibilidad de uso ya que si bien sólo la iban a habitar el matrimonio tenía que estar preparada para recibir muchos visitantes y alojar ocasionalmente a sus hijos. Por último era condición que la casa se desarrollara totalmente en planta baja.


La propuesta

El estudio siempre encara cada nuevo proyecto como una oportunidad de investigación en el campo teórico-práctico de la arquitectura. En esta ocasión ya que resolución de la seguridad de la vivienda resultaba tan relevante, pareció interesante ver hasta dónde este fuerte condicionante podía ser tomado como generador del proyecto. Hasta dónde la formalización se hacía dependiente de la solución del problema, y hasta dónde se podía tensar esa dependencia sin afectar el buen resultado estético, siempre operando dentro de costos standars para una vivienda.

Revertir una supuesta condición negativa propia de este encargo y transformarla en motor de una búsqueda de soluciones que no desperdiciaran el potencial que ese problema encierra, fue una decisión que llevó a los proyectistas a proponer una casa que se extendiera hasta las medianeras para sólo tener dos frentes vulnerables. De esta manera las dos fachadas de casi 14 m de largo se transformaron en elementos esenciales de este proyecto. De esta primer decisión y de la necesidad de resolver el proyecto en planta baja surge casi naturalmente la propuesta de crear patios internos y así poder llegar con la luz natural y posibilitar ventilación cruzada a todos los espacios de uso.

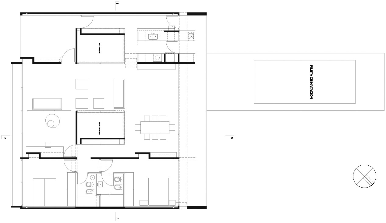
Se propuso entonces una casa resuelta en una planta dividida en 12 módulos espaciales (cuatro de frente y tres de fondo) de 3.30 metros de lado. Dos de ellos están vaciados y se proponen como pequeños patios interiores, con la vegetación como protagonista en uno, y el agua en el otro. Estos espacios sin techo se suman a los locales contiguos otorgándole una sensación de mayor amplitud y una atmósfera cambiante por los efectos que produce la luz entrando a través de ellos y la contemplación de vida que allí se desarrolla. Además ofrecen un recorte del cielo y del paisaje circundante desde los más variados ángulos de la planta.

La fachada hacia el frente se proyectó como un plano compuesto por piezas de madera de quebracho apiladas que otorga intimidad a los ambientes que dan hacia dicho frente, además de resolver la hermeticidad de la casa. Hacia el fondo el sistema elegido para otorgarle seguridad de la vivienda debía resultar de rápido accionamiento y un costo razonable. La propuesta fue entonces una cortina metálica enrollable que cuando se abre queda totalmente oculta dentro de unas vigas invertidas del techo y que se acciona pulsando una tecla.


La organización funcional

La casa está retirada de la calle interna del condominio por un jardín y un solado apto para estacionar un auto, realizado con durmientes de quebracho enterrados en la tierra.
Como la vivienda llega de medianera a medianera fue necesario proponer, además de la entrada principal, otra de servicio que posibilitara una entrada directa al fondo del lote de manera de poder resolver las actividades de mantenimiento de mismo.
Se accede a las dos puertas por un semicubierto. La puerta principal se abre a un único espacio, con el patio de agua y el patio verde como protagonistas principales. Allí se pueden desarrollar las actividades de reunión de una manera flexible, sólo determinadas por su equipamiento. Hacia un lado de este espacio, y protegidos de las vistas detrás de un tabique colgante, se encuentran los dormitorios y los baños y hacia el opuesto, la entrada de servicio, la cocina (que se insinúa apenas a través del patio verde) y el lavadero. Hacia el fondo las diferentes actividades de la casa se extienden en un semicubierto que va de medianera a medianera, haciendo muy indefinidos los límites entre interior y exterior. La casa se vincula con la piscina a través de un solárium el resto del lote está libre para que empiece a ocuparlo la vegetación proyectada.


La solución estructural

La planta de la casa, de 13.70x13.00 metros, está cubierta por una serie de losas de hormigón armado, con vigas invertidas en todo su perímetro que esconden el contrapiso de pendiente y la membrana hidrófuga. Estas losas descansan en los dos laterales medianeros y en una serie de tabiques internos dispuestos según la grilla modular y "con espesor" como para funcionar también como lugares de guardado.


La construcción

Como ya se señaló, la solución constructiva del plano de cierre de fachada es un elemento que requirió de un estudio detallado ya que de esto dependía la presentación de esta vivienda. Debía ser un elemento que permitiera la entrada de luz pero que a la vez asegurara la hermeticidad de la casa. Se decidió, por razones estéticas y de facilidad de construcción, apilar in situ durmientes de quebracho cortados al medio y encolados y enhebrados, entre sí y con piezas separadoras del mismo material, mediante varillas roscadas de hierro.

En el resto de la casa el hormigón armado, el protagonista exclusivo, fue dejado a la vista sin ningún tipo de tratamiento superficial, salvo en los dos tabiques medianeros ya que por su exposición a la intemperie se consideró necesario aplicar del lado interior un revestimiento de placas de MDF enchapadas en madera de guatambú con una cámara de aire que resolviera la aislación térmica. Hay sólo tres tabiques internos de mampostería rodeando los baños para resolver el pasado de cañerías. Los pisos, tanto los interiores como los exteriores son de paños de alisado de cemento separados por planchuelas de acero inoxidable. Las mesadas de baños y cocina son losas de hormigón con su superficie alisada y protegida por una laca. Las aberturas son de aluminio anodinado color bronce oscuro con vidrios con cámara de aire. La calefacción es por piso radiante. Los muebles de cocina y todas las puertas de los diferentes guardados son de placas de MDF enchapadas en madera de guatambú.


Planos
Realice click en los links para ver los planos.

[1] Planta
[2] Corte 1
[3] Corte 2
[4] Vista NE
[5] Vista NO
[6] Vista SE
[7] Vista SO


Imágenes

Realice click sobre las imágenes para ampliarlas.

 
Curso Diseño y modelado arquitectónico 3D con Revit
 
 
Si usted es profesional, este es su espacio para publicar su obra o proyecto (en forma gratuita). Para más información visitar la sección contacto: click aquí.
   
   

Noticias
informes especiales
bienal de arquitectura BA11
bienal de arquitectura BA09
publicaciones

Artículos
notas y artículos de interés
arquitectura legal
diseño de iluminación
software de arquitectura y diseño

Recursos
curso de decoracion (gratis/online)
archivo temático
descargas externas
curso de croquis (gratis/online)

Precios y costos
precios de materiales, indices y
costos m2 de construcción

Proyecto
obras construidas
proyectos para concursos
proyectos de estudiantes
arquitectos destacados
obras destacadas

Diseño
diseño industrial y mobiliario
diseño interior y decoración
Casa FOA 2009
Casa FOA 2010
Casa FOA 2011
Casa FOA 2012
Casa FOA 2013
Casa FOA 2014
Estilo Pilar 2010
Estilo Pilar 2012

Construcción
materiales y tecnologías
novedades de empresas
sector inmobiliario

Agenda
cursos y seminarios
congresos y bienales
charlas y eventos
exposiciones y muestras
concursos

Facultad
becas y subsidios
posgrados y maestrías
donde estudiar

Varios
ofertas laborales arquitectura, diseño y construccion
suscripcion newsletter (gratis)
redes sociales
publicidad

Arquimaster en Facebook
Arquimaster en Twitter
Arquimaster en LinkedIn
Arquimaster en Pinterest