Arquimaster - Medio digital de arquitectura, diseño y construccion Estas visitando la version anterior,
para ver la version actual realiza click aca

 

     
       
 
Climanet - Doble Vidrio Hermetico DVH
Matyser - Materiales y servicios para la construccion
Cursos de arquitectura y diseño de espacios
Anclaflex
Curso Introducción a Revit: Modela tus proyectos arquitectonicos
Bara
Casa Casuarinas (Santiago de Surco, Lima, Perú) - Arq. José Orrego
Curso Introduccion a Autocad
 

Ficha técnica
Nombre: Casa Casuarinas
Ubicación: Casuarinas, Santiago de Surco, Lima, Perú
Proyectista: Arq. José Orrego
Superficie construida: 238.82 m2 (PB), 330.75m2 (PA)
Superficie total: 569.57 m2
Materiales: piedra, madera, mármol, vidrio
Fotos: Juan Solano
Sitio web: http://www.metropolisperu.com

 

Ver planos de la obra

El proyecto se encuentra ubicado en la, Urbanización Las Casuarinas, en la base de los Andes en la ciudad de Lima, Departamento de Lima, dentro de un lote de 1,080.10 m2.

La casa ha sido conceptuada como un contenedor moderno de la primera generación de proyectos lecorbusianos, donde se ha utilizado materiales naturales como la piedra, el mármol y la madera para evitar tener referentes temporales realizados con materiales de una manufactura especifica.

El primer piso se trabajó como una caja de vidrio que permite proyectar la casa sobre los exteriores, de allí que se ha privilegiado el tratamiento paisajista y la Iluminación exterior que puede ser modulada para atender distintas situaciones sociales.

El segundo piso se pensó como un contenedor perforado, con un techo más alto para favorecer la sensación interior a diferencia del primer piso que se proyecta al exterior.

La intención fue crear una propuesta distinta que albergara una serie de códigos que fueran de difícil reconocimiento en un tiempo futuro de manera que la propia casa, pudiera envejecer con sus propietarios.

Toda la casa tiene referentes de distintos tipos logrando un eclecticismo tanto moderno pero con buscando pertenecer a un futuro alternativo.

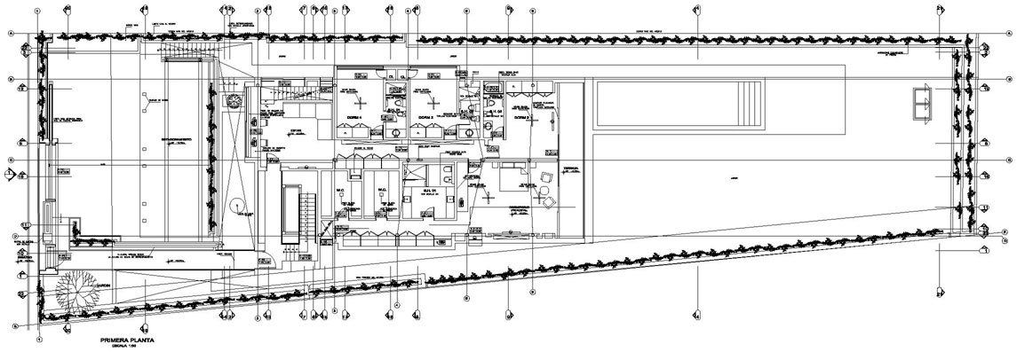
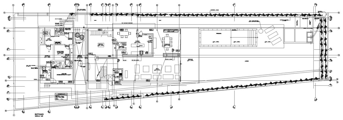
La propuesta contempla el desarrollo de una residencia de dos pisos con un acceso por el piso superior.

El estacionamiento se encuentra en el nivel -0.70 metros y se llega a él desde el nivel +0.00 (nivel de la calle). Cuenta con 5 estacionamientos.

Al primer piso se accede a través de un puente a la primera planta, está distribuida de la siguiente manera: un estar con una escalera secundaria hacia el estar del sótano; dormitorio principal con 2 walking closet, baño y terraza; dormitorio con baño y terraza; dormitorio con baño; dormitorio con baño.

En el nivel inferior se accede por una escalera principal desde el primer piso y consta de un hall de distribución de doble altura, un segundo estar, baño de visitas, sala, comedor principal, cocina, comedor de diario.

El área de servicio se encuentra separada del resto de la casa y cuenta con un acceso independiente y consta de: lavandería, dormitorio de servicio.

El jardín se encuentra en el nivel y está cercado con 2 niveles de jardineras de piedra dispuestas a manera de contrafuerte alrededor del perímetro del lote. Esto es debido al volumen de excavación.

Además todo el lote está cercado con cerco vivo hasta la altura de 3.00 metros, desde el nivel de la calle, según el reglamento de la asociación.


Planos
Realice click en los links para ver los planos.

[1] Planta baja
[2] Planta alta
[3] Corte 1
[4] Corte 2
[5] Corte 3
[6] Corte 4
[7] Corte 5
[8] Corte 6


Imágenes

Realice click sobre las imágenes para ampliarlas.


Acerca de los proyectistas
Metrópolis es una oficina de arquitectura liderada por el Arquitecto José Orrego que trabaja con proyectos de Arquitectura tanto como con proyectos de Diseño Interior, Paisajismo y Urbanismo.

La oficina propone soluciones creativas e innovadoras para sus clientes y es uno de los estudios de arquitectura más reconocidos de Perú.

 
Curso Visualización arquitectónica con V-Ray Next para SketchUp
 
 
Si usted es profesional, este es su espacio para publicar su obra o proyecto (en forma gratuita). Para más información visitar la sección contacto: click aquí.
   
   

Noticias
informes especiales
bienal de arquitectura BA11
bienal de arquitectura BA09
publicaciones

Artículos
notas y artículos de interés
arquitectura legal
diseño de iluminación
software de arquitectura y diseño

Recursos
curso de decoracion (gratis/online)
archivo temático
descargas externas
curso de croquis (gratis/online)

Precios y costos
precios de materiales, indices y
costos m2 de construcción

Proyecto
obras construidas
proyectos para concursos
proyectos de estudiantes
arquitectos destacados
obras destacadas

Diseño
diseño industrial y mobiliario
diseño interior y decoración
Casa FOA 2009
Casa FOA 2010
Casa FOA 2011
Casa FOA 2012
Casa FOA 2013
Casa FOA 2014
Estilo Pilar 2010
Estilo Pilar 2012

Construcción
materiales y tecnologías
novedades de empresas
sector inmobiliario

Agenda
cursos y seminarios
congresos y bienales
charlas y eventos
exposiciones y muestras
concursos

Facultad
becas y subsidios
posgrados y maestrías
donde estudiar

Varios
ofertas laborales arquitectura, diseño y construccion
suscripcion newsletter (gratis)
redes sociales
publicidad

Arquimaster en Facebook
Arquimaster en Twitter
Arquimaster en LinkedIn
Arquimaster en Pinterest