Arquimaster - Medio digital de arquitectura, diseño y construccion Estas visitando la version anterior,
para ver la version actual realiza click aca

 

     
       
 
Climanet - Doble Vidrio Hermetico DVH
Matyser - Materiales y servicios para la construccion
Cursos de arquitectura y diseño de espacios
Anclaflex
Curso Introducción a Revit: Modela tus proyectos arquitectonicos
Bara
Restaurante Jaso (México) - Serrano Monjaraz Arquitectos
Curso Introduccion a Autocad
 

Ficha técnica
Nombre: Restaurante Jaso
Ubicación: México DF, México
Diseño interior: Serrano Monjaraz Arquitectos
Juan Pablo Serrano Orozco
Rafael Monjaraz Fuentes
Año: 2006
Fotografía: Pedro Hiriart
Sitio web: http://www.serranomonjaraz.com

 

Ver planos de la obra

El concepto fue diseñado basado en los elementos sensoriales: fuego, aire, agua y sonido.

Los materiales desempeñan un papel muy importante en este proyecto: madera, mármol y el hierro se mezcla en diversas combinaciones en la búsqueda de una atmósfera muy natural.

Los clientes son bienvenidos en la recepción con un gran tronco de árbol que fue rescatado e incorporado al proyecto.

Siendo una casa de los 40s, el proyecto tuvo que ser adaptado para caber en esta construcción de dos niveles.

En el piso principal hay un salón y el área de la barra, ambos utilizados para la recepción y para los clientes que paran solamente para las bebidas.

Después, un salón grande de doble altura se funde y termina en un jardín interior fantástico.

Este amplio comedor tiene una atmósfera muy cálida creada por la combinación de las paredes cubiertas de madera de zebrado y de caoba en el techo.

Para los pisos fue alcanzada una combinación muy interesante de piedra y madera.


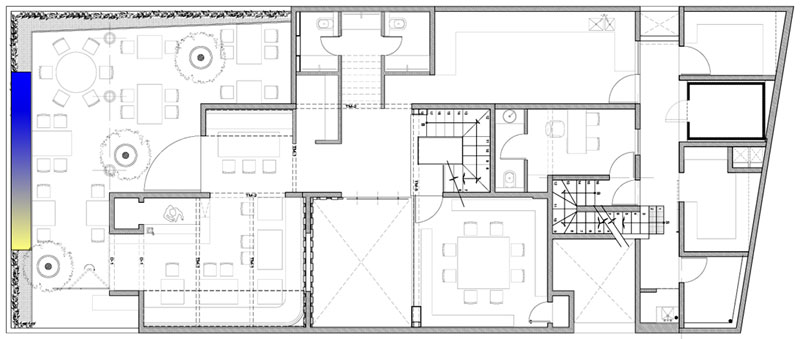
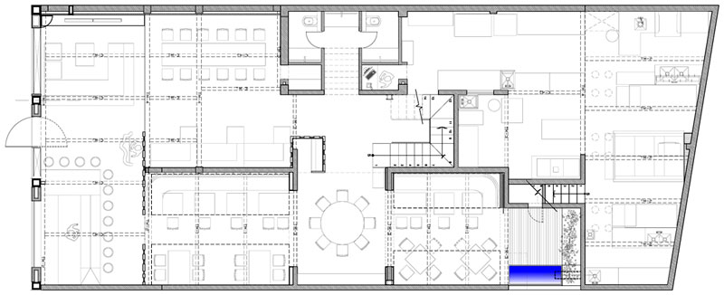
Planos
Realice click en los links para ver los planos.

[1] Planta baja
[2] Planta alta


Imágenes

Realice click sobre las imágenes para ampliarlas.


Acerca de los proyectistas
Serrano Monjaraz Arquitectos es una firma fundada en la Ciudad de México en 1992. Su objetivo es el desarrollo de espacios arquitectónicos en los que la calidad se logra por el adecuado uso de materiales y la luz como elemento creativo.

Siendo el espacio su materia prima, los arquitectos Juan Pablo Serrano Orozco y Rafael Monjaraz Fuentes, demuestran su capacidad y desempeño en todos los campos de la arquitectura contando siempre con el apoyo de equipos interdisciplinarios. Un importante número de sus proyectos han sido reconocidos con importantes premios tanto en México como en el extranjero.

Su estructura y profesionalismo les ha dado la oportunidad de trabajar en asociación con importantes firmas y arquitectos. Han sido invitados a concursos nacionales e internacionales y participan activamente en la formación y difusión del quehacer arquitectónico.

 
Curso Visualización arquitectónica con V-Ray Next para SketchUp
 
 
Si usted es profesional, este es su espacio para publicar su obra o proyecto (en forma gratuita). Para más información visitar la sección contacto: click aquí.
   
   

Noticias
informes especiales
bienal de arquitectura BA11
bienal de arquitectura BA09
publicaciones

Artículos
notas y artículos de interés
arquitectura legal
diseño de iluminación
software de arquitectura y diseño

Recursos
curso de decoracion (gratis/online)
archivo temático
descargas externas
curso de croquis (gratis/online)

Precios y costos
precios de materiales, indices y
costos m2 de construcción

Proyecto
obras construidas
proyectos para concursos
proyectos de estudiantes
arquitectos destacados
obras destacadas

Diseño
diseño industrial y mobiliario
diseño interior y decoración
Casa FOA 2009
Casa FOA 2010
Casa FOA 2011
Casa FOA 2012
Casa FOA 2013
Casa FOA 2014
Estilo Pilar 2010
Estilo Pilar 2012

Construcción
materiales y tecnologías
novedades de empresas
sector inmobiliario

Agenda
cursos y seminarios
congresos y bienales
charlas y eventos
exposiciones y muestras
concursos

Facultad
becas y subsidios
posgrados y maestrías
donde estudiar

Varios
ofertas laborales arquitectura, diseño y construccion
suscripcion newsletter (gratis)
redes sociales
publicidad

Arquimaster en Facebook
Arquimaster en Twitter
Arquimaster en LinkedIn
Arquimaster en Pinterest