Arquimaster - Medio digital de arquitectura, diseño y construccion Estas visitando la version anterior,
para ver la version actual realiza click aca

 

     
       
 
Climanet - Doble Vidrio Hermetico DVH
Matyser - Materiales y servicios para la construccion
Cursos de arquitectura y diseño de espacios
Anclaflex
Curso Introducción a Revit: Modela tus proyectos arquitectonicos
Bara
Edificio residencial Campos Elíseos 104 (Colonia Polanco, México) - Pascal Arquitectos
Curso Introduccion a Autocad
 

Ficha técnica
Nombre: Edificio residencial Campos Elíseos 104
Ubicación: Colonia Polanco, México
Arquitectura y diseño de interiores: Carlos Pascal y Gerard Pascal (Pascal Arquitectos)
Desarrollador: Cittark, Isaac Chayo
Construcción: Pascal Arquitectos
Fecha: 2006- 2007
Sitio web: http://www.pascalarquitectos.com

 

Ver planos de la obra

En una de las esquinas más elegantes de la Colonia Polanco, Campos Elíseos y Schiller, se desarrolló un edificio residencial que retoma el lujo de lo que fue esta Colonia en su época dorada y el cual permitirá gozar de una calidad de vida que hoy en día resulta difícil de encontrar en la Ciudad de México.

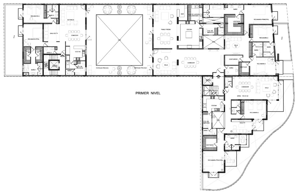
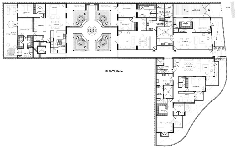
El edificio se plantea en tres pequeñas torres de tres niveles cada una, quedando dos hacia Campos Elíseos y una interior a la cual se accede por un patio interior, espacio diseñado para el descanso y con los conceptos clásicos de los patios coloniales con una fuente central y profusa vegetación.

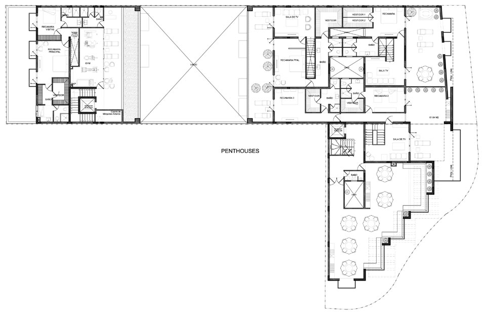
Además, se aprovecharon las azoteas creando terrazas privadas para los penthouses y áreas de uso común.

Las fachadas están recubiertas de cantera importada de la India, la cuál le da al conjunto una imagen sólida y de lujo.


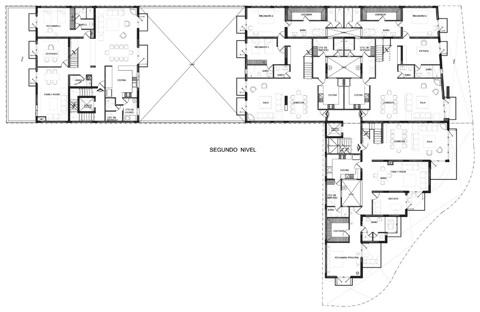
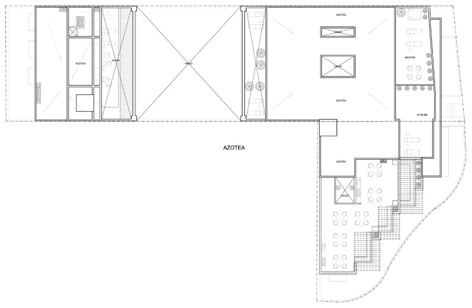
Planos
Realice click en los links para ver los planos.

[1] Planta baja
[2] Planta 1º nivel
[3] Planta 2º nivel
[4] Planta penthouses
[5] Planta azotea
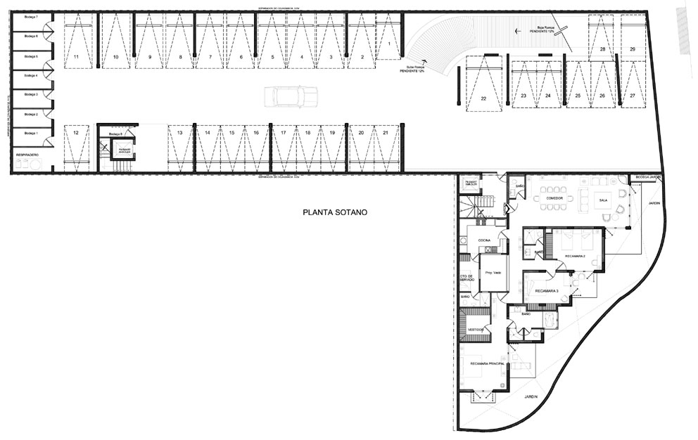
[6] Planta subsuelos
[7] Corte
[8] Fachada


Imágenes

Realice click sobre las imágenes para ampliarlas.

 
Curso Visualización arquitectónica con V-Ray Next para SketchUp
 
 
Si usted es profesional, este es su espacio para publicar su obra o proyecto (en forma gratuita). Para más información visitar la sección contacto: click aquí.
   
   

Noticias
informes especiales
bienal de arquitectura BA11
bienal de arquitectura BA09
publicaciones

Artículos
notas y artículos de interés
arquitectura legal
diseño de iluminación
software de arquitectura y diseño

Recursos
curso de decoracion (gratis/online)
archivo temático
descargas externas
curso de croquis (gratis/online)

Precios y costos
precios de materiales, indices y
costos m2 de construcción

Proyecto
obras construidas
proyectos para concursos
proyectos de estudiantes
arquitectos destacados
obras destacadas

Diseño
diseño industrial y mobiliario
diseño interior y decoración
Casa FOA 2009
Casa FOA 2010
Casa FOA 2011
Casa FOA 2012
Casa FOA 2013
Casa FOA 2014
Estilo Pilar 2010
Estilo Pilar 2012

Construcción
materiales y tecnologías
novedades de empresas
sector inmobiliario

Agenda
cursos y seminarios
congresos y bienales
charlas y eventos
exposiciones y muestras
concursos

Facultad
becas y subsidios
posgrados y maestrías
donde estudiar

Varios
ofertas laborales arquitectura, diseño y construccion
suscripcion newsletter (gratis)
redes sociales
publicidad

Arquimaster en Facebook
Arquimaster en Twitter
Arquimaster en LinkedIn
Arquimaster en Pinterest