Arquimaster - Medio digital de arquitectura, diseño y construccion Estas visitando la version anterior,
para ver la version actual realiza click aca

 

     
       
 
Climanet - Doble Vidrio Hermetico DVH
Matyser - Materiales y servicios para la construccion
Cursos de arquitectura y diseño de espacios
Anclaflex
Curso Introducción a Revit: Modela tus proyectos arquitectonicos
Bara
PPN House (Parque Leloir, Ituzaingó, Pcia. Buenos Aires, Argentina) - Vanguarda Architects
Curso Postproducción de render arquitectónico con SketchUp y Photoshop
 

Ficha técnica
Nombre: PPN House
Ubicación: Parque Leloir, Ituzaingó, Pcia. Buenos Aires, Argentina
Proyecto: Vanguarda Architects
Dirección General: Arq. Alejandro Amoedo
Director de Proyecto: Arq. Lucas D'Adamo Baumann
Director de Obra: Luis Brazzola
Colaboradores: Arq. Clara Tarulla
Año: 2012
Superficie total: 293 m2
Fotos: Eugenio Valentini

 

Ver planos de la obra

Sobre una fracción en esquina, en el corazón de Parque Leloir, esta vivienda se recuesta sobre el lateral del lote, dando la espalda a la fracción vecina, para abrirse por completo al noreste disfrutando de las vistas al parque y la extensa arboleda que posee y se logró conservar.

El acceso a la vivienda no se realiza de forma convencional ya que la puerta principal se ubica del mismo lado hacia donde la casa se abre, a la que se llega cruzando un puente por sobre la piscina.

Por el lateral de la vivienda, desde uno de los frentes del lote, se accede a la cochera, la cual desde el parque queda escondida detrás del volumen revestido en piedra.

La cochera está en directa relación con la cocina comedor, para funcionar como extensión de la misma en grandes reuniones, y la conecta con las áreas de servicio.

A continuación, se ubica el estar, completamente vidriado para integrar al parque a su interior y disfrutar de las vistas hacia la piscina.

La planta se organiza en dos áreas dividas por una pequeña doble altura que se vivencia desde el acceso a la casa.

Estos sectores están conectados a través de un puente de madera al que llega la escalera principal.

Hacia un lado del mismo se ubica la suite, con su baño y vestidor, y hacia el otro los dormitorios de los niños con un baño entre medio.


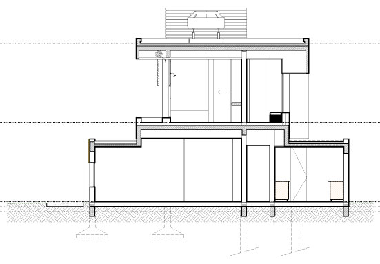
Planos
Realice click en los links para ver los planos.

[1] Planta baja
[2] Planta alta
[3] Corte A
[4] Corte B
[5] Corte C
[6] Corte D
[7] Corte E
[8] Vista 1
[9] Vista 2
[10] Vista 3
[11] Vista 4


Imágenes

Realice click sobre las imágenes para ampliarlas.

 
Curso Visualización arquitectónica con V-Ray Next para SketchUp
 
 
Si usted es profesional, este es su espacio para publicar su obra o proyecto (en forma gratuita). Para más información visitar la sección contacto: click aquí.
   
   

Noticias
informes especiales
bienal de arquitectura BA11
bienal de arquitectura BA09
publicaciones

Artículos
notas y artículos de interés
arquitectura legal
diseño de iluminación
software de arquitectura y diseño

Recursos
curso de decoracion (gratis/online)
archivo temático
descargas externas
curso de croquis (gratis/online)

Precios y costos
precios de materiales, indices y
costos m2 de construcción

Proyecto
obras construidas
proyectos para concursos
proyectos de estudiantes
arquitectos destacados
obras destacadas

Diseño
diseño industrial y mobiliario
diseño interior y decoración
Casa FOA 2009
Casa FOA 2010
Casa FOA 2011
Casa FOA 2012
Casa FOA 2013
Casa FOA 2014
Estilo Pilar 2010
Estilo Pilar 2012

Construcción
materiales y tecnologías
novedades de empresas
sector inmobiliario

Agenda
cursos y seminarios
congresos y bienales
charlas y eventos
exposiciones y muestras
concursos

Facultad
becas y subsidios
posgrados y maestrías
donde estudiar

Varios
ofertas laborales arquitectura, diseño y construccion
suscripcion newsletter (gratis)
redes sociales
publicidad

Arquimaster en Facebook
Arquimaster en Twitter
Arquimaster en LinkedIn
Arquimaster en Pinterest