Arquimaster - Medio digital de arquitectura, diseño y construccion Estas visitando la version anterior,
para ver la version actual realiza click aca

 

     
       
 
Climanet - Doble Vidrio Hermetico DVH
Matyser - Materiales y servicios para la construccion
Cursos de arquitectura y diseño de espacios
Anclaflex
Curso Introducción a Revit: Modela tus proyectos arquitectonicos
Bara
Casa La Loma II (México) - Garduño Arquitectos
Curso Introducción a Revit: modela tus proyectos arquitectónicos
 

Ficha técnica
Proyectista: Juan Garduño, Garduño Arquitectos
Obra: Casa La Loma II
Ubicación: Av. Bernardo Quintana 595, Lote 23-A. La Loma Santa Fe, Álvaro Obregón. México DF, México
Fecha de terminación: agosto 2004
Plazo de ejecución: 11 meses
Superficie del terreno: 667,68 m2
Superficie construida: 666,22 m2
Empresa constructora: Alen Construcc., Arq. Enrique Álvarez Balbas
Fotografía: Paul Czitron
Premios: Mención de Honor en la VII Bienal de Arquitectura de Costa Rica, Octubre 2004. Obra Finalista en el XIV Premio Obras Cemex, 2005. Segundo lugar del Premio Amdi, Premio Nacional de Interiorismo 2005.
Sitio web: http://www.gardunoarquitectos.com

La Loma II es un proyecto que cohabita con los elementos naturales como el agua y la madera siendo estos protagonistas de la plaza de acceso que conforma el vestibulo de la casa.

El agua se muestra como un elemento ornamental de forma cilíndrica contenido por paredes de acero, y una celosía de madera tropical que actúa como piel protectora para aislar a la vivienda del exterior.

La gran mayoría de los servicios se ubican en el sótano, bajo el nivel de la calle, para dar la sensación de una casa en dos niveles y poder mantener 260 m2 de áreas verdes.

Las áreas complementarias de la casa son desarrolladas en 705 metros cuadrados e integradas al jardín en forma de L.

Mediante la separación de dos volúmenes que desplantan la construcción en diferentes ángulos, se forma un vestíbulo de doble altura, y un túnel de cristal flotando en el centro une a los dos cuerpos de la edificación.

La composición de planos, volúmenes, formas y texturas en las fachadas es logrado a través de diferentes elementos compuestos e interconectados.

El uso del cristal continuo hacia el jardín habla de la transparencia sin sacrificar privacía, por lo que en su ala norte, el comedor es contenido solamente por vidrio y su losa sostenida por columnas expuestas en V, fundiéndose este espacio con el agua y el jardín.

Un desafío, fue la losa-tapa curva, que se dibuja de extremo a extremo de la casa, colada de una sola pieza en concreto de color y expuesta como acabado final aparente en sus dos caras.


Imágenes
[1] Fachada
[2] Vista plaza de acceso, celosía de madera tropical y espejo de agua
[3] Vista exterior comedor
[4] Vista exterior comedor
[5] Vista estar hacia acceso
[6] Vista estar hacia jardín
[7] Vista hacia jardín desde vestíbulo principal
[8] Vista hacia cubierta desde vestíbulo principal
[9] Vista desayunador
[10] Vista cocina


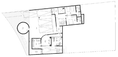
Planos
[1] Planta baja
[2] Planta alta
[3] Planta subsuelo
[4] Sección longitudinal

Realice click sobre los planos para ampliarlos.

Información técnica y de contacto al pie de página.


Acerca del proyectista
Juan Garduño (1964) es arquitecto titulado en 1995 por la Universidad de Anáhuac.

 
Curso ArchViz avanzada con Cinema 4D y Corona Renderer
 
Si usted es profesional, este es su espacio para publicar su obra o proyecto (en forma gratuita). Para más información visitar la sección contacto: click aquí.
   
   

Noticias
informes especiales
bienal de arquitectura BA11
bienal de arquitectura BA09
publicaciones

Artículos
notas y artículos de interés
arquitectura legal
diseño de iluminación
software de arquitectura y diseño

Recursos
curso de decoracion (gratis/online)
archivo temático
descargas externas
curso de croquis (gratis/online)

Precios y costos
precios de materiales, indices y
costos m2 de construcción

Proyecto
obras construidas
proyectos para concursos
proyectos de estudiantes
arquitectos destacados
obras destacadas

Diseño
diseño industrial y mobiliario
diseño interior y decoración
Casa FOA 2009
Casa FOA 2010
Casa FOA 2011
Casa FOA 2012
Casa FOA 2013
Casa FOA 2014
Estilo Pilar 2010
Estilo Pilar 2012

Construcción
materiales y tecnologías
novedades de empresas
sector inmobiliario

Agenda
cursos y seminarios
congresos y bienales
charlas y eventos
exposiciones y muestras
concursos

Facultad
becas y subsidios
posgrados y maestrías
donde estudiar

Varios
ofertas laborales arquitectura, diseño y construccion
suscripcion newsletter (gratis)
redes sociales
publicidad

Arquimaster en Facebook
Arquimaster en Twitter
Arquimaster en LinkedIn
Arquimaster en Pinterest