 |
 |
|
|
|
 |
 |
|
|
|
|
|
|
|
|
| |
Ficha técnica
Nombre: Iglesia
parroquial de la Consolación
Ubicación: Cordoba, Cordoba,
España
Autores: Ignacio Vicens y Hualde, José Antonio
Ramos Abengózar
Colaboradores: Fernando Gil, Pablo Gutiérrez,
Joaquín Esperón, Desirée González,
Romina Barbieri, Raúl Rodríguez,
Tibor Martín, Patricia de Elena, Javier
Margarit
Fecha de proyecto: 2006-2011
Fotos: Vicens + Ramos
Sitio web: http://www.vicens-ramos.com
|
|
Ver
planos de la obra
English
version
El centro parroquial se sitúa en una parcela
de esquina en zona residencial entre las calles Historiador
Dozy y Francisco Azorín, el lateral largo se sitúa
frente a una zona verde y el lateral corto frente a edificios
de viviendas. El resto de medianeras aún están
sin edificar. Al norte y al oeste de la parcela la construcción
se retranquea cuatro metros de los linderos. Al norte,
toda la superficie del retranqueo que coincide en longitud
con la edificación está ocupada por un
patio inglés a la altura de la planta sótano,
para permitir la iluminación y la ventilación
de esta planta y dotarla al mismo tiempo de un patio
accesible por el público.
El conjunto parroquial se encierra en un sencillo
prisma con la particularidad
de que la fachada corta de la esquina se eleva hasta buscar
la luz lo más alto posible,
uniendo tres conceptos históricamente separados:
la torre campanario, la fachada
singular y la entrada
de luz o lucernario. El prisma es blanco de hormigón
prefabricado con un zócalo estriado capaz de introducir
luz horizontal.
En el prisma único está incluido el
atrio situado en el extremo opuesto al testero alto
del presbiterio, desde él se accede al templo,
al sótano de locales parroquiales y a las viviendas
de planta primera. En el acceso al templo se encuentra
la sacristía, la subida al coro, el acceso a
la nave principal y a la capilla del Santísimo.
El
espacio interior se une a través de una
nube en forma de plano convexo que
encierra en el prisma, discurre por todo el templo
hasta perderse en las alturas
del lucernario. La luz se desvanece por el plano curvo
al tiempo que chorrea por el testero del presbiterio.
Solamente una tenue luz baja completa la iluminación
del templo. En la capilla del Santísimo el plano
curvo de la cubierta coincidente con el de la nave,
pero en vez de elevarse desciende hasta acoger el Sagrario.
La
unidad del conjunto como la unidad a la que aspira
la arquitectura sacra permite integrar en la idea del
templo el arte sacro de su interior. Numerosos artistas
se han sumado con sus obras a la configuración
final del espacio sacro. Fernando Pagola ha realizado
el altar, la sede y el ambón del templo, el
altar de la capilla del Santísimo es obra de
Cesar Barrio, el Viacrucis es de José Antonio
Ramos, la Virgen de la Consolación de Javier
Martínez, los Cristos tanto de la nave principal
como de la capilla del Santísimo son obra de
Javier Margarit y la pintura de los techos de Pablo
y Jaime Ramos.
English
version
Parish church of Solace
The parish center is
located on a corner plot in a residential area between
Historiador Dozy and Francisco Azorín streets.
The extended side is situated in front of a green zone
and the lateral side faces residential buildings. The
rest of the surroundings are still undeveloped. To
the north and west of the plot the structure is set
back four meters off the boundaries. On the north side,
the entire surface which coincides with the length
of the structure is occupied by an English style garden
at the height of the basement, to allow light and ventilation
and give a courtyard that can be accessible by the
public.
The complete parish is enclosed by a single
prism with the peculiarity that the short facade on
the corner rises
to seek the utmost possible light, fusing three concepts
that are historically separate, the bell-tower, singular
facade and light entrance or skylight. The prism is white
prefabricated concrete with a fluted base able to introduce
horizontal light.
The prism consists of the vestibule
on the opposite end of the front wall of the presbytery,
from where one enters
the temple, the local parish basement and the first floor
dwellings. The entrance of the church has access to the
sacristy, the chorus, the main hall and the chapel of
the Blessed.
The interior space is unified by a cloud
with a convex plain form locked in by the structure.
The cloud circulates
around the space until it is lost in the heights of
the skylight. The light fades on the curved plane while
dripping the headwall of the presbytery. This diffused
light illuminates the entire temple. In the chapel
of the Blessed a similar cloud forms the ceiling, like
in the main hall, but instead it rises and the bends
down to accommodate the altar.
The unity of the composition
like the unit to which sacred architecture aspires
allows the integration on the idea of a temple a sacred
art inside. Many artists have added their work to the
final configuration of the sacred space.
The contributing artists are: Fernando Pagola the altar,
ambo and the seat of the temple, Cesar Barrio the altar
of the Blessed Sacrament, Jose Antonio the Viacrusis,
Javier Martinez made Our Lady of Consolation of Javier
Martinez, Javier Margarit both the Christ in the nave
and the Christ in chapel of the Blessed are the and
the roof paintings are by Pablo and Jaime Ramos.
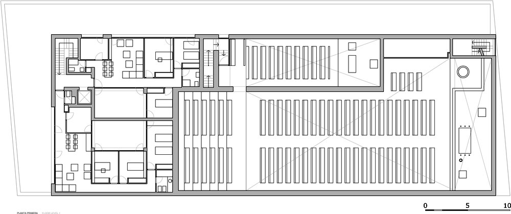
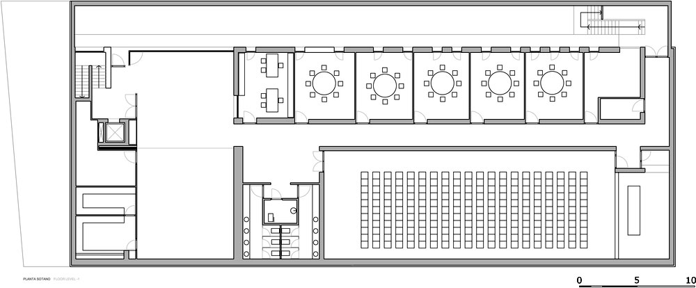
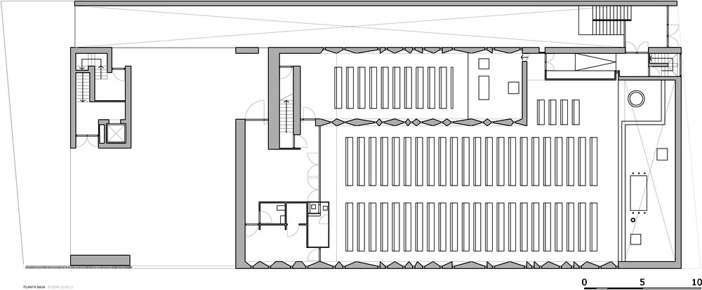
Planos
Realice click en los links para ver los planos.
[1] Planta
baja
[2] Planta
alta
[3] Planta
subsuelo
[4] Planta
de techos
[5] Corte
A
[6] Corte
B
[7] Vista
sur
[8] Vista
norte
[9]
Vista
este
[10]
Vista
oeste
Imágenes
Realice click sobre las imágenes para ampliarlas.
|