Arquimaster - Medio digital de arquitectura, diseño y construccion Estas visitando la version anterior,
para ver la version actual realiza click aca

 

     
       
 
Climanet - Doble Vidrio Hermetico DVH
Matyser - Materiales y servicios para la construccion
Cursos de arquitectura y diseño de espacios
Anclaflex
Curso Introducción a Revit: Modela tus proyectos arquitectonicos
Bara
Hostal La Buena Vida (Colonia Condesa, Mexico) - ARCO Arquitectura Contemporánea
Curso Visualización arquitectónica con V-Ray Next para SketchUp
 

Ficha técnica
Nombre: Hostal La Buena Vida
Ubicación: México DF
Proyecto interior: ARCO Arquitectura Contemporánea, Arq. José Lew Kirsch y Arq. Bernardo Lew Kirsch
Colaboradores: Arq. Oscar Sarabia, Arq. Jonathan Herrejón, Arq. Miguel Ocampo, Arq. Yuritza Gonzalez, Arq. Adrian de Lucio, Arq. Nahela Hinojosa, Arq. Gabriela Pineda, Arq. Federico Teista, Arq. Jorge Tapia, Beatriz Canuto
Diseño Gráfico y branding: Ernesto Moncada
Renders: ARCO Arquitectura Contemporánea, Arq. Jonathan Herrejón, Arq. Miguel Ocampo
Fecha de realización: 2011
Superficie construida: 360 m2
Fotografías: Jaime Navarro
Sitio web: http://www.ar-co.com.mx

 

Ver planos de la obra

La Colonia Condesa fue una zona residencial de la Ciudad de México que se desarrolló a principios del siglo XX, actualmente, su privilegiada ubicación y el importante crecimiento económico que ha tenido la han puesto en la mira de todos los que visitan la ciudad.

Por lo anterior y muchas otras razones se decidió que el Hostal La Buena Vida se localizara en esta zona y se encontró un espacio idóneo en la calle de Mazatlán.

En toda la zona la arquitectura responde a un estilo típico de la época y con el objetivo de sobresalir de esta tendencia, el equipo de ARCO Arquitectura Contemporánea propuso como fachada principal una doble piel -para minimizar el ruido exterior- llena de color y textura que hace que el hostal llame la atención desde cualquier punto de la calle respetando las tolerancias y proporciones de los edificios aledaños.

En la fachada resaltan las atractivas formas geométricas, en una intrépida combinación de varios tonos de magenta o mejor conocido como el famoso rosa mexicano, que se mueven en una alegoría arquitectónica que recuerda las envolturas de los dulces y se complementa con la serenidad y calidez de la celosía de madera de Ipe.

El hostal se presenta como una atractiva alternativa para el viajero urbano contemporáneo y lo invita a pasar a un espacio que sabe que definitivamente no será como los demás.

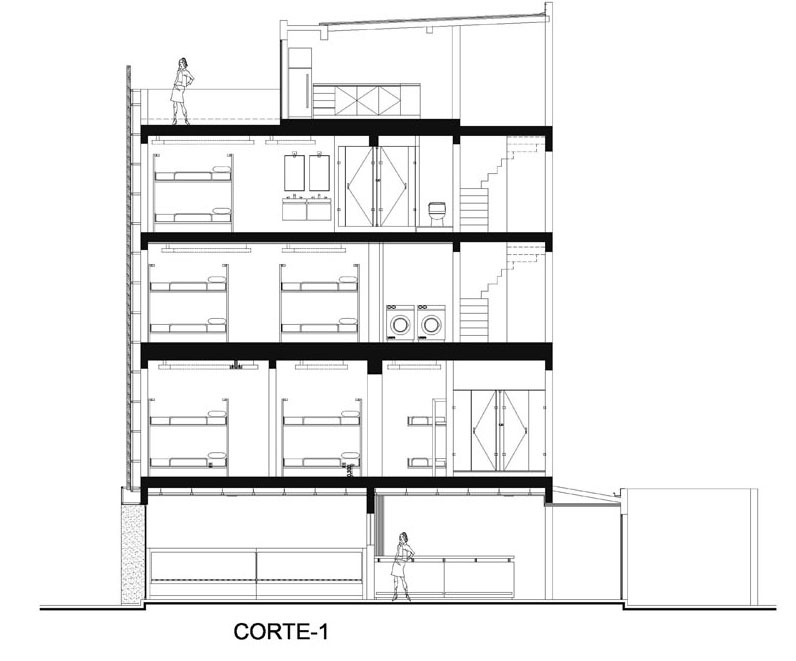
En el ingreso a nivel de calle se localizan un pequeño lobby donde se ubica la recepción y se sube a los diferentes espacios del hostal distribuidos en dos niveles que son: el área de lavado, cocineta-comedor comunal, espacio lounge con internet, la terraza con lugar para asolearse y las habitaciones.

Las 8 habitaciones compartidas dan un total de 48 camas en acomodo de literas. La capacidad de las recámaras va desde 4 hasta 10 camas.

Cada una de ellas tiene su módulo de baño integrado y cada una de las camas cuenta con un locker para que los viajeros estén seguros de que sus pertenencias estarán seguras durante toda su estancia.

El color es un elemento muy importante de todo el proyecto y para los interiores se seleccionó una paleta con 5 diferentes.

Los acentos de color, tanto en los muros como en el mobiliario, se combinaron con grandes murales con grecas y calaveras en un estilo sincrónico con todo el concepto y que mantiene la tradición mexicana en uno de sus elementos más representativos.

El Hostal la Buena Vida sorprende al visitante con una experiencia completa en una atmósfera que combina la mejor propuesta en su tipo en un contexto que define la Ciudad de México que se vive hoy.


Planos
Realice click en los links para ver los planos.

[1] Planta nivel 1
[2] Planta nivel 2
[3] Planta nivel 3
[4] Planta nivel 4
[5] Corte longitudinal
[6] Fachada frente


Imágenes

Realice click sobre las imágenes para ampliarlas.

 
Curso Diseño arquitectónico de exteriores con V-Ray
 
 
Si usted es profesional, este es su espacio para publicar su obra o proyecto (en forma gratuita). Para más información visitar la sección contacto: click aquí.
   
   

Noticias
informes especiales
bienal de arquitectura BA11
bienal de arquitectura BA09
publicaciones

Artículos
notas y artículos de interés
arquitectura legal
diseño de iluminación
software de arquitectura y diseño

Recursos
curso de decoracion (gratis/online)
archivo temático
descargas externas
curso de croquis (gratis/online)

Precios y costos
precios de materiales, indices y
costos m2 de construcción

Proyecto
obras construidas
proyectos para concursos
proyectos de estudiantes
arquitectos destacados
obras destacadas

Diseño
diseño industrial y mobiliario
diseño interior y decoración
Casa FOA 2009
Casa FOA 2010
Casa FOA 2011
Casa FOA 2012
Casa FOA 2013
Casa FOA 2014
Estilo Pilar 2010
Estilo Pilar 2012

Construcción
materiales y tecnologías
novedades de empresas
sector inmobiliario

Agenda
cursos y seminarios
congresos y bienales
charlas y eventos
exposiciones y muestras
concursos

Facultad
becas y subsidios
posgrados y maestrías
donde estudiar

Varios
ofertas laborales arquitectura, diseño y construccion
suscripcion newsletter (gratis)
redes sociales
publicidad

Arquimaster en Facebook
Arquimaster en Twitter
Arquimaster en LinkedIn
Arquimaster en Pinterest