Arquimaster - Medio digital de arquitectura, diseño y construccion Estas visitando la version anterior,
para ver la version actual realiza click aca

 

     
       
 
Climanet - Doble Vidrio Hermetico DVH
Matyser - Materiales y servicios para la construccion
Cursos de arquitectura y diseño de espacios
Anclaflex
Curso Introducción a Revit: Modela tus proyectos arquitectonicos
Bara
Oficinas Corporativas y Almacén CMF - Mtro. Arq. J. Fernández Acosta
Curso Introducción a Revit: modela tus proyectos arquitectónicos
 

Ficha técnica
Obra: Oficinas Corporativas y Almacén
Propietario: Comercializadora Médica Farmacéutica (CMF)
Ubicación: Volcán Jorullo 4600 Col. El Colli Urbano. Zapopan, Jalisco.
Año de construcción: 2005
Superficie del terreno: 2,825.00 m2
Área construida: 2,150.00 m2
Construcción: Desarrollos Inmobiliarios FASO SA de CV (DIFASO). Ing. Javier Salcedo Murillo, Director General
Colaboradores: Ing. José Didier Hernández Castañeda.
Proyecto: Mtro. Arq. Jorge Fernández Acosta.
Colaboradores: Arq. David González Díaz. LDCG. María Georgina Castillo Jiménez.
Cálculo: Dr. Manuel López

La arquitectura corporativa se manifiesta en la voluntad expresiva de los volúmenes envolventes. Se pretende evocar una tipología edilicia de connotaciones vanguardistas lejana y ajena a cualquier pretensión minimalista pero cercana a la elegante estética de la simplicidad.

La geometría de la solución arquitectónica tiene sus fundamentos en la racionalidad euclidiana. Se aprovechó la forma trapezoidal del terreno para optimizar las áreas funcionales.

El ejercicio proyectual surge de la disposición en equilibrio de un eje que a su vez conforma un triángulo cuasi-equilátero, entre la colindancia a la calle Etna y el vecino, que luego define un centro general de trazo que funciona como pivote para generar la curva que rige la composición general del conjunto en donde se dispusieron las áreas de oficina y accesos principales.

Se intersecta después un volumen que sirve como referencia formal para identificar la zona de suministros y se definió la zona para estacionamientos como un espacio abierto también trapezoidal, ambos con acceso desde la calle Jorullo.

Para los espacios de oficina se requirió que se tuviese control visual al máximo posible sobre todos los espacios de la bodega y la zona administrativa y para tal efecto se colocó un ventanal circular con cristal reflectasol a hueso y un espacio a doble altura hacia la zona de venta al público. Otro de los conceptos fue el de la transparencia entre los espacios y para ello se instalaron grandes ventanales como muro divisorio.

El proyecto plantea soluciones con economía de recursos formales pero con materiales y sistemas producto de la época actual: Concreto armado aparente, acero estructural, paneles de aluminio marca Alucobond, cristal Tintex sobre perfiles de PVC arquitectónico, mármoles y porcelanatos de calidad mundial, sistemas de control ambiental y luminotecnia, marca Lutron, sistema de control contra incendios, sistema de correo neumático, sistemas de comunicación, telefonía y cómputo inteligentes, sistema de almacenamiento modular, pavimento especializado Cemex. En el interior de la bodega, planta de generación eléctrica auto-sustentable, sistemas prefabricados modulares para paneles de concreto externos, marca Napresa, concreto estampado y en general insumos para la construcción de la más alta calidad.

La obra coadyuva con la preservación ambiental al propender al uso racional de los recursos que demanda la operatividad propia de la empresa. Una de las ideas rectoras de la propuesta fue la de procurar el mínimo mantenimiento mediante la disposición de materiales como el concreto marterinado aparente, los paneles de Alucobond y el barandal de acero con aplicación de pintura electrostática color acero inoxidable.

Conceptos

Creatividad, sobriedad, simplicidad, expresividad, fluidez, transparencia, solidez, dinamismo, estabilidad, equilibrio, funcionalidad, racionalidad, eficacia, seguridad, capacidad, inteligencia, armonía, elegancia, calidad arquitectónica, belleza, vanguardia inconfundible.

Programa de dependencias

- Plazoleta de ingreso

Caseta de vigilancia, fuente, ingreso controlado, áreas verdes.

- Área de Oficinas
Planta baja
Recepción, intendencia, papelería y archivo muerto, estancia, sanitarios H y M (discapacitados), control de personal, guardarropa.
Área de venta al público
Exhibición, mostrador de atención, acceso al almacén.
Planta alta
Espacio escultórico para escalera helicoidal, vestíbulo distribuidor y deambulatorio, oficinas ejecutivas para cada uno de los 3 propietarios, área administrativa 7 cubículos, sala de juntas, sala ejecutiva, sanitarios H y M (ejecutivos), sanitarios (empleados), sanitario directivos, comedor.

- Área de almacén
Oficina almacenista, control de acceso y salida de producto, escalera de acceso a oficinas, escalera de mantenimiento (acceso a equipos de aire acondicionado), andamiaje modular para almacenamiento en 3 niveles, almacén de productos especiales, área de suministros y provisión de pedidos, acceso a oficinas, acceso a estacionamiento.

- Área estacionam. privado
Estacionamiento 20 autos, casas de máquinas (subestación y bombeo), cisterna (20.000 litros), área mantenimiento.

- Área estacionam. público
Estacionamiento 20 autos.

- Área servicio y vigilancia
Casa de velador.


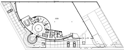
Planos
[1] Planta baja
[2] Planta alta
[3] Vistas y cortes

Realice click sobre los planos para ampliarlos.

Información técnica y de contacto al pie de página.


Acerca del proyectista
Jorge Fernández Acosta nació en Guadalajara, Jalisco, México en 1965. Es casado y tiene un hijo e hija. Es arquitecto y tiene el grado de maestría en Procesos y Expresión Gráfica en la Proyectación Arquitectónica-Urbana, por la Universidad de Guadalajara, México y la Universidad de Las Palmas de Gran Canaria, España. Entre sus actividades profesionales y académicas destaca su participación como fundador del Colegio de Arquitectos y Urbanistas del Estado de Jalisco del cual fue secretario y vocal para asuntos culturales; asimismo, fue Oficial Mayor de la Ex Facultad de Arquitectura e integró el Consejo de Planeación del Centro de Arte, Arquitectura y Diseño de la Universidad de Guadalajara.

Ha realizado viajes de estudio a través de Europa, los Estados Unidos de Norteamérica y Suramérica. Ha dictado conferencias y cursos en diversas instituciones educativas de México, tiene publicados entrevistas y artículos de divulgación, investigación y crítica en diversos medios especializados a nivel nacional e internacional. Ha sido ponente en congresos internacionales sobre Conservación de Centros Históricos y Patrimonio Edificado Iberoamericano, en Camagüey, Cuba, 1999; Ciudad y Patrimonio, en Las Palmas de Gran Canaria, España, 2001; Habitabilidad y Medio Ambiente en Concepción, Chile, 2003; de Expresión Gráfica Arquitectónica en Granada, España, 2004 y participó en la I Cumbre Iberoamericana rumbo a la Calidad Educativa en Punta del este, Uruguay, 2005.

Como arquitecto ha desarrollado y construido proyectos en múltiples géneros y varias ciudades de su país e incluso colaboró como asesor privado en el área de Control Físico y Arquitectura en Cali, Colombia, 1996. Fue gestor y promotor de la iniciativa ciudadana para la Donación en especie pura y absoluta para la restauración de la balaustrada suroeste del teatro Degollado en Guadalajara, 2001. Es acuarelista y valuador.

Entre sus reconocimientos destacan: el Premio Iberoamericano a la Excelencia Educativa 2005 que incluye el título de Doctor Honoris Causa, asimismo la presea "Enrique Diáz de León" al Mérito Académico por sus actividades en la Docencia, otorgada en 2005 por el Sindicato de Trabajadores Académicos de la Universidad de Guadalajara; sobresalen el otorgado por el Gobierno de Jalisco al Servicio Social Profesional, 1997 y el Mérito a la Preservación Ambiental, 2002 por la UdeG; ha ganado Estímulos a la Productividad y la Excelencia Académica en el Centro Universitario de Arte, Arquitectura y Diseño (CUAAD) de la Universidad de Guadalajara (UdeG).

En el ámbito del Activismo Ambientalista ha trabajado como miembro del Comité Coordinador del Movimiento Cívico Todos por Chapala y en la Alianza por la Preservación del Lago de Chapala; fue vocal del Uso de Conservación Ecológica ante la Comisión de la Cuenca Propia del Lago de Chapala y el Consejo de Cuenca Lerma-Chapala; es miembro del Comité Técnico para el Análisis del Proyecto de Arcediano de la Universidad de Guadalajara y asimismo se desempeña como consejero ciudadano al Consejo Consultivo para el Desarrollo Sustentable por el Sector Social en el Estado de Jalisco ante la Secretaria del Medio Ambiente y Recursos Naturales (SEMARNAT) del Gobierno de la República Mexicana y es miembro de la Asociación Mexicana de Hidráulica.

En la actualidad se desempeña como Profesor de Estética, Historia de las Culturas y de Historia de la Arquitectura y del Urbanismo, fue secretario de la academia de Historias de la Arquitectura y el Urbanismo del Departamento de Teorías e Historias; es Secretario del Centro de Investigaciones sobre Centros Históricos del CUAAD de la UdeG; funge como Delegado proporcional ante el Sindicato de Trabajadores Académicos de la UdeG en donde además colaboró como Coordinador del Consejo Universitario Interinstitucional en Defensa del Ambiente (CUIDA); recién terminó su desempeño como Presidente del Comité Editorial de la revista Expresiones del Departamento de Representación en la División de Tecnología y Procesos del CUAAD de la UdeG.

Hoy continúa con su desarrollo personal, profesional y académico.

 
Curso ArchViz avanzada con Cinema 4D y Corona Renderer
 
Si usted es profesional, este es su espacio para publicar su obra o proyecto (en forma gratuita). Para más información visitar la sección contacto: click aquí.
   
   

Noticias
informes especiales
bienal de arquitectura BA11
bienal de arquitectura BA09
publicaciones

Artículos
notas y artículos de interés
arquitectura legal
diseño de iluminación
software de arquitectura y diseño

Recursos
curso de decoracion (gratis/online)
archivo temático
descargas externas
curso de croquis (gratis/online)

Precios y costos
precios de materiales, indices y
costos m2 de construcción

Proyecto
obras construidas
proyectos para concursos
proyectos de estudiantes
arquitectos destacados
obras destacadas

Diseño
diseño industrial y mobiliario
diseño interior y decoración
Casa FOA 2009
Casa FOA 2010
Casa FOA 2011
Casa FOA 2012
Casa FOA 2013
Casa FOA 2014
Estilo Pilar 2010
Estilo Pilar 2012

Construcción
materiales y tecnologías
novedades de empresas
sector inmobiliario

Agenda
cursos y seminarios
congresos y bienales
charlas y eventos
exposiciones y muestras
concursos

Facultad
becas y subsidios
posgrados y maestrías
donde estudiar

Varios
ofertas laborales arquitectura, diseño y construccion
suscripcion newsletter (gratis)
redes sociales
publicidad

Arquimaster en Facebook
Arquimaster en Twitter
Arquimaster en LinkedIn
Arquimaster en Pinterest