Arquimaster - Medio digital de arquitectura, diseño y construccion Estas visitando la version anterior,
para ver la version actual realiza click aca

 

     
       
 
Climanet - Doble Vidrio Hermetico DVH
Matyser - Materiales y servicios para la construccion
Cursos de arquitectura y diseño de espacios
Anclaflex
Curso Introducción a Revit: Modela tus proyectos arquitectonicos
Bara
Vivienda unifamiliar La Residencia (San Lorenzo de El Escorial, Madrid, España) - Estudio de Arquitectura y Urbanismo de A+U = LMH (Arq. Luis I. Martin y Herrero)
Curso Visualización arquitectónica con V-Ray Next para SketchUp
 

Ficha técnica
Nombre: Vivienda unifamiliar La Residencia
Ubicacion: C/ La Residencia Nº 35, San Lorenzo de El Escorial, Madrid, España
Proyectista: Estudio de Arquitectura y Urbanismo de A+U = LMH (Arq. Luis I. Martin y Herrero)
Comitente: D. Javier Cuesta García
Estado: por comenzar la construccion
Año de proyecto: septiembre de 2009

 

Ver planos de la obra

Las especificaciones dadas por la propiedad, aparte del programa, la orientación de la vivienda, accesos, comportamiento ecológico y desarrollo de la misma fueron las siguientes:

La interacción del volumen interior con el espacio exterior debe producirse de forma sutil, fácil, sencilla como si el transito del interior al exterior no fuera tal. Estar dentro es estar fuera, simplemente protegido. La luz solar persigue el movimiento dentro de la casa o más bien, la vida interior fluye y se alimenta en un continuo de luz exterior.

Los espacios se conciben para vivirse en la luz y el calor natural. La casa se orienta y distribuye en función de los ciclos de la vida y la vida en función de la luz solar. Del orto al ocaso la vida fluye desde el dormitorio en el momento preciso del amanecer, pasando por la cocina o comedor en el desayuno, la comida en el comedor, sobremesa en el salón para concluir con la lectura o el trabajo en el momento justo del ocaso.

A la puesta del sol la vida fluye en sentido inverso tras los pasos de una luz distinta, más tenue, mas fría que invade la noche y volvemos sobre nuestros pasos desde el estudio hacia el ocio en el salón, la cena en el comedor o cocina y el descanso en el dormitorio. En todo este desandar lo andado no dejamos de ver la noche, la luna, las estrellas, las luces en el horizonte. Todo tiene un sentido, nada se deja al azar la Consciencia esta presente en todo momento en la vida interior de la casa.

Idea arquitectonica

De las premisas dadas por la propiedad acerca de la orientación de la vivienda para dotarla de la mayor proporción de vistas, desde la parte alta de la parcela se observa la ciudad de Madrid con sus majestuosas torres de la zona norte, y soleamiento para el ahorro económico, se optó por disponer la vivienda en la parte alta de la parcela, que presenta un gran desnivel como se puede observar por el plano topográfico y las secciones, de modo que ninguna otra construcción interfiriera las vistas.

Para obtener el máximo de metros con orientación sur y vistas nos decantamos por una forma curva que nos permitía un mayor desarrollo. Siendo esta pieza que corresponde a la planta principal de la vivienda completamente traslúcida al sur y prácticamente opaca en su orientación norte que da al Monte Abantos que la cobija y donde no se puede ubicar ninguna construcción más.

Se pretendió que la planta principal diera la sensación de estar completamente volada, por lo que para obtener ese efecto se recurrió a darle un vuelo por su lado este de 6 metros que corresponde a la cocina y bajo la cual, en la planta sótano se produce el acceso de vehículos al garaje. Por el lado oeste se procedió a volar la planta pero recurriendo en este caso a disponer un pilar de gran sección circular a modo de pilón que contribuye a sujetar esta zona. Las plantas sótano y primera son las que dan la sensación de engarzar la planta principal de modo que parezca levitar a lo que también contribuye su distinto acabado de fachada y color.

Estructuralmente la planta principal es una viga caja de hormigón, que se apoya en la planta sótano y se sujeta por la planta primera en su parte superior. Dado el carácter naturalista del cliente se ha dotado a la vivienda de una serie de características para que contribuyan a la sostenibilidad de la misma y el ahorro energético:

La envolvente de la vivienda, incluso en sus zonas planas voladas, se ha encomendado a una fachada ventilada que dispone en contacto con el cerramiento interior de un aislante térmico de gran eficiencia y específico para este tipo de fachadas de 6 cm de espesor.

La envolvente interior tras el cerramiento de la caja de hormigón también se aisla mediante un elemento de lana de roca semirrígido de 4 cm de espesor previa a la disposición del trasdosado doble de placas de cartón yeso y los falsos techos.

La cubierta del edificio se aisla y protege mediante una cubierta ecológica verde de plantas sedum, de bajo porte y que no requiere de mantenimiento, que contribuye de forma muy notable y eficaz a la confortabilidad de la vivienda.

Los acristalamientos de la vivienda se realizan con vidrios laminares de seguridad y con gran cámara de aire con disposición de sistemas para el aislamiento térmico y acústico de los grandes ventanales de las fachadas y dispuestos sobre carpinterías de gran calidad de ruptura térmica.

Dispone la casa para su climatización, de invierno y verano, con un sistema de suelo radiante de tubos de polietileno reticulado, lo que permite disponer de una superficie de circulación diáfana sin radiadores interpuestos. El suelo radiante se alimenta mediante una enfriadora bomba de calor aire-aire, que se ve apoyada por una instalación de geotermia que proporciona a la instalación una temperatura de 18 grados tanto en verano como en invierno.

Se ha dispuesto un aljibe enterrado en el jardín de la vivienda, que recupera las aguas de lluvia procedentes de la cubierta de la vivienda con una capacidad de 20.000 litros, para ser utilizadas como riego del jardín tipo japonés de menores requerimientos para su mantenimiento y llenado de la piscina interior.

Programa

La construcción se compone de dos construcciones. Una que constituye la propia vivienda, situada en la parte norte y más elevada de la parcela, y otra dedicada a clínica terapéutica prácticamente enterrada salvo por su frente sur, ubicada en la parte baja de la parcela. Dispone la edificación principal de dos plantas sobre rasante y una planta bajo rasante. El acceso a la parcela se produce, el peatonal por el punto medio de la calle y el rodado por el extremo este de la calle. El acceso peatonal a la vivienda se produce por el norte de la parcela en su parte más elevada. El acceso de vehículos a la vivienda se produce por la planta sótano, bajo el espacio volado de la cocina.

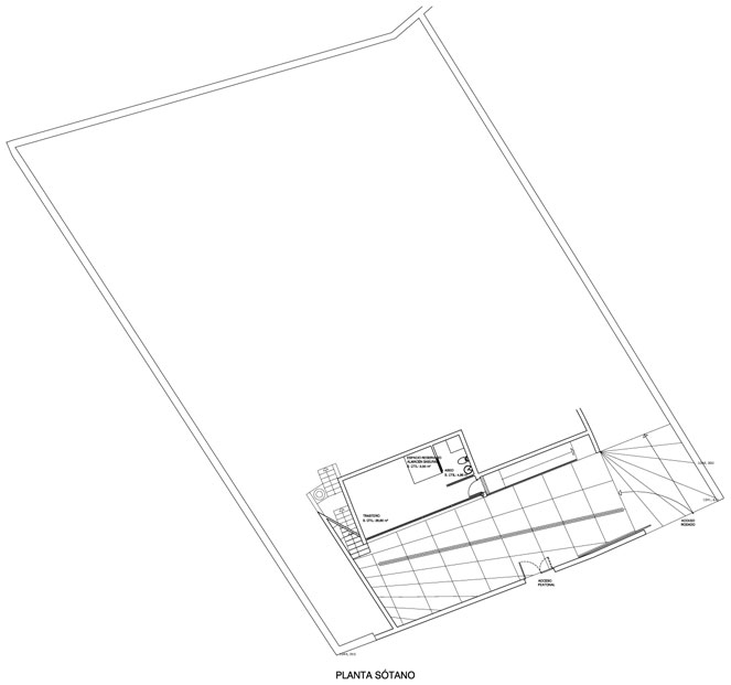
Planta sótano: La planta sótano cuenta con una superficie construida de 182,44 m2 ubicados bajo la vivienda y de 38,71 m2 en la zona de clínica junto al lindero que da a la calle, para un total de 221,15 m2. El programa que presenta es el siguiente: Zona de caja de escalera con escalera a planta de acceso, armario empotrado y puertas de acceso a garaje y cuarto office-instalaciones y gimnasio. Zona de garaje con 3 plazas de aparcamiento, cuarto de office-instalaciones, gimnasio, aseo vestuario y piscina. Cercano a la calle, retranqueada de ella 6 m y totalmente enterrado aparece un espacio dedicado a clínica con un aseo.

Planta de acceso: La planta de acceso tiene una superficie construida total de 200,50 m2. El programa que presenta es el siguiente: Vestíbulo con armario empotrado, puertas de acceso a zona vividera, zona de servicio y escalera de acceso a planta primera y sótano. Tras el vestíbulo aparecen en continuidad de espacios la zona de día compuesta de salón-comedor con acceso a terraza y cocina. La zona de noche está compuesta de dormitorio principal con acceso a terraza, baño completo y vestidor y dormitorio 1 con acceso a terraza, vestidor y aseo con ducha. En la zona de servicio tenemos el dormitorio 2 con acceso a terraza y armario empotrado y aseo con ducha independiente.

Planta primera: La planta primera tiene una superficie construida total de 37,67 m2. El programa que presenta es el siguiente: Estudio con acceso a cubierta y escalera de acceso a planta de acceso.


Planos
Realice click en los links para ver los planos.

[1] Planta acceso
[2] Planta primera
[3] Planta sotano 1
[4] Planta sotano 2
[5] Planta de techos
[6] Corte longitudinal
[7] Vista norte
[8] Vista sur
[9] Vista este
[10] Vista oeste


Imágenes

Realice click sobre las imágenes para ampliarlas.


Acerca de los proyectistas
El Estudio de Arquitectura y Urbanismo de A+U = LMH se fundó en 1993. Está ubicado en la C/ Zurbano nº 10, Ático, 28010 Madrid, España, siendo su ámbito de actuación geográfica España e Hispanoamérica.

Cuenta el Estudio de Arquitectura y Urbanismo con una tecnología de primera línea en la realización de proyectos de arquitectura de toda índole. Para ello se dispone de software y hardware de última generación, actualizándose continuamente para poder aplicar las últimas innovaciones que puedan afectar al sector de la construcción.

El ámbito de actuación constructiva abarca diversos sectores de la construcción que incluye desde la tipología edificatoria residencial en sus grados de edificación comunitaria y unifamiliar, hasta el diseño de colegios, polideportivos, oficinas, naves industriales, restaurantes, etc.

El Estudio de Arquitectura y Urbanismo de A+U = LMH cuenta entre sus colaboradores Arquitectos, Aparejadores y Arquitectos Técnicos, Ingenierías de Instalaciones, Ingenieros de Telecomunicaciones, gabinetes de estudios geotécnicos y estudiantes de último curso de arquitectura como delineantes proyectistas.

 
Curso Diseño arquitectónico de exteriores con V-Ray
 
 
Si usted es profesional, este es su espacio para publicar su obra o proyecto (en forma gratuita). Para más información visitar la sección contacto: click aquí.
   
   

Noticias
informes especiales
bienal de arquitectura BA11
bienal de arquitectura BA09
publicaciones

Artículos
notas y artículos de interés
arquitectura legal
diseño de iluminación
software de arquitectura y diseño

Recursos
curso de decoracion (gratis/online)
archivo temático
descargas externas
curso de croquis (gratis/online)

Precios y costos
precios de materiales, indices y
costos m2 de construcción

Proyecto
obras construidas
proyectos para concursos
proyectos de estudiantes
arquitectos destacados
obras destacadas

Diseño
diseño industrial y mobiliario
diseño interior y decoración
Casa FOA 2009
Casa FOA 2010
Casa FOA 2011
Casa FOA 2012
Casa FOA 2013
Casa FOA 2014
Estilo Pilar 2010
Estilo Pilar 2012

Construcción
materiales y tecnologías
novedades de empresas
sector inmobiliario

Agenda
cursos y seminarios
congresos y bienales
charlas y eventos
exposiciones y muestras
concursos

Facultad
becas y subsidios
posgrados y maestrías
donde estudiar

Varios
ofertas laborales arquitectura, diseño y construccion
suscripcion newsletter (gratis)
redes sociales
publicidad

Arquimaster en Facebook
Arquimaster en Twitter
Arquimaster en LinkedIn
Arquimaster en Pinterest