Arquimaster - Medio digital de arquitectura, diseño y construccion Estas visitando la version anterior,
para ver la version actual realiza click aca

 

     
       
 
Climanet - Doble Vidrio Hermetico DVH
Matyser - Materiales y servicios para la construccion
Cursos de arquitectura y diseño de espacios
Anclaflex
Curso Introducción a Revit: Modela tus proyectos arquitectonicos
Bara
Vivienda unifamiliar Jauke II (Kentucky Club de Campo, Funes, Prov. Santa Fe, Argentina) - Estudio Guarq
Curso Técnica de presentación para proyectos arquitectónicos
 

Ficha técnica
Nombre: Vivienda unifamiliar Jauke II
Ubicación: Kentucky Club de Campo, Funes, Prov. Santa Fe, Argentina
Fecha proyecto: marzo 2010
Fecha finalización obra: agosto 2011
Equipo de proyecto: arq. Martín Guarneri, Arq. José Rabasedas, Arq. Leonardo Dalla Pace, Arq. Romina Lassalle, Arq. Erica González
Promotor: Jauke Desarrollos
Empresa constructora: Guarq SRL
Superficie del terreno: 1248 m2
Superficie de la obra: 261.93 m2

 

Ver planos de la obra

El concepto fundamental del proyecto se basó en generar un edificio que se adapte al entorno existente, controlando las visuales y la iluminación natural, generando una fuerte imagen arquitectónica que resuelva la relación con el medio de implantación.

Todas las decisiones de proyecto se afirman en este concepto, que define una materialidad homogénea exterior a través de muros, losas compactas y cerramientos vidriados que generan un luminoso espacio interior.

El proyecto se organiza alrededor de un patio central interior-exterior que articula los distintos espacios de la casa, separando lo público de lo privado y generando visuales e ingresos de luz controlados.

El edificio se desarrolla en un solo nivel, utilizando un sector de la cubierta como una terraza accesible para uso recreativo social, de donde se dominan las vistas del entorno llegando a este por una escalera exterior vinculada al patio central.

Los interiores fueron concebidos desde su materialidad, como espacios puros, de uniformidad tectónica, jerarquizando la luz natural sobre los diferentes espacios.

La materialidad elegida es fundamentalmente el hormigon llaneado, los muros blancos, el aluminio natural, vidrio y algunos detalles en madera que aportan calidez.


Planos
Realice click en los links para ver los planos.

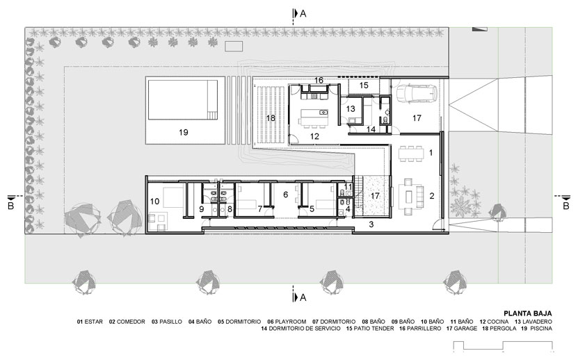
[1] Planta baja
[2] Planta de techos
[3] Corte longitudinal
[4] Corte transversal
[5] Vista frente
[6] Vista lateral


Imágenes

Realice click sobre las imágenes para ampliarlas.

 
Curso Diseño arquitectónico de exteriores con V-Ray
 
 
Si usted es profesional, este es su espacio para publicar su obra o proyecto (en forma gratuita). Para más información visitar la sección contacto: click aquí.
   
   

Noticias
informes especiales
bienal de arquitectura BA11
bienal de arquitectura BA09
publicaciones

Artículos
notas y artículos de interés
arquitectura legal
diseño de iluminación
software de arquitectura y diseño

Recursos
curso de decoracion (gratis/online)
archivo temático
descargas externas
curso de croquis (gratis/online)

Precios y costos
precios de materiales, indices y
costos m2 de construcción

Proyecto
obras construidas
proyectos para concursos
proyectos de estudiantes
arquitectos destacados
obras destacadas

Diseño
diseño industrial y mobiliario
diseño interior y decoración
Casa FOA 2009
Casa FOA 2010
Casa FOA 2011
Casa FOA 2012
Casa FOA 2013
Casa FOA 2014
Estilo Pilar 2010
Estilo Pilar 2012

Construcción
materiales y tecnologías
novedades de empresas
sector inmobiliario

Agenda
cursos y seminarios
congresos y bienales
charlas y eventos
exposiciones y muestras
concursos

Facultad
becas y subsidios
posgrados y maestrías
donde estudiar

Varios
ofertas laborales arquitectura, diseño y construccion
suscripcion newsletter (gratis)
redes sociales
publicidad

Arquimaster en Facebook
Arquimaster en Twitter
Arquimaster en LinkedIn
Arquimaster en Pinterest