Arquimaster - Medio digital de arquitectura, diseño y construccion Estas visitando la version anterior,
para ver la version actual realiza click aca

 

     
       
 
Climanet - Doble Vidrio Hermetico DVH
Matyser - Materiales y servicios para la construccion
Cursos de arquitectura y diseño de espacios
Anclaflex
Curso Introducción a Revit: Modela tus proyectos arquitectonicos
Bara
Vivienda Unifamiliar AM50 (Barrio Cerrado Las Palmas, Tigre, Pcia. de Buenos Aires, Argentina) - Arq. Nicolas Mieres
Curso Técnica de presentación para proyectos arquitectónicos
 

Ficha técnica
Nombre: Vivienda Unifamiliar AM50
Ubicacion: Barrio Cerrado Las Palmas, Rincón de Milberg, Tigre, Pcia. de Buenos Aires, Argentina
Arquitecto: Arq. Nicolas Mieres
Diseno interior: Rosario Garcia Coni DECORO
Empresa constructora: Di Cio Hnos
Fotografías: Florencia Bouza
Area del terreno: 630 m2
Area del proyecto: 270m2
Año del proyecto: 2009
Año de construcción: 2010

 

Ver planos de la obra

La obra ha sido seleccionada y exhibida en la Bienal de Arquitectura Buenos Aires 2011 (Centro Cultural Recoleta).

Diseño interior por Rosario Garcia Coni (DECORO).

La vivienda está ubicada en un barrio cerrado en las afueras de Buenos Aires (Tigre), sobre un lote de geometría regular, fuerte proporción longitudinal, buena orientación y visuales hacia la laguna sobre el fondo del mismo.

Se propone distanciar a los propietarios de sus agitadas profesiones, lentificando los rituales de la vida cotidiana, permitiendo que la presencia de la laguna empape cada actividad.

A partir de un programa de necesidades tradicional, se acordó proyectar la vivienda con un fuerte lenguaje contemporáneo, de volúmenes puros, líneas rectas y techos planos.

En relación con su entorno, invitando a la naturaleza (agua, cielo y sol) a ser protagonistas, enriqueciendo los espacios con diferentes sensaciones.

El concepto de privacidad, la relación con su propio entorno y la relación con la laguna fueron directrices que forjaron la idea de la casa en relación con su implantación, generando un equilibrio entre intimidad y paisaje.

Se propuso una volumetria simple y contundente, con poca permeabilidad hacia la calle y con apertura hacia el interior del jardín, acentuando la presencia del espejo de agua en cada uno de los ambientes.

Se pensó en una vivienda donde la vida social se diferenciara de la vida privada.

A partir de dos niveles autónomos que trabajan en forma horizontal, con una sola relación vertical a través de la escalera.

Se dispusieron las áreas con funciones publicas y de servicio en planta baja y las áreas privadas en planta alta, otorgándole a estos espacios cierta flexibilidad entre si y la posibilidad de tener una relación directa interior/exterior a través de carpinterías vidriadas de paso o, simplemente mediante relaciones visuales, adecuando la galería como nexo entre los ambientes públicos de la vivienda y el jardín.

El ingreso a la vivienda se realiza por el centro de la planta jerarquizando así la amplia fachada, desde el cual se puede contemplar el juego volumétrico de la casa.

Interiormente se resolvió agrupar las áreas de servicio sobre el lateral a medianera (unificando instalaciones) como las áreas sociales sobre el fondo y lateral.

En el segundo nivel, donde se proponen los ambientes privados, se cuenta con tres dormitorios y dos baños, como también un dormitorio principal en suite, con su baño y vestidor, rematando en una expansión aterrazada.

La necesidad de oscurecimiento de los dormitorios sirvió como tema de diseño de fachada, generando una vista dinámica de distintas configuraciones a través de postigones de madera en forma vertical.

A la simplicidad con la que se resolvió la estructura circulatoria en ambas plantas, se le suma la decidida intención de vincular la cocina con la galería y con el exterior, garantizando de esta forma una correcta conexión entre lo artificial y lo natural.

Escasos materiales, pero cuidadosamente seleccionados y utilizados en sus diversas formas, generan variadas texturas y colores tanto en el interior como en el exterior.

Si bien es un proyecto simple y claro en cuanto a su funcionamiento e idea de partido, es una obra de arquitectura plagada de detalles, donde se apunto a la sensibilidad de los materiales y los espacios que ellos generan.


Planos
Realice click en los links para ver los planos.

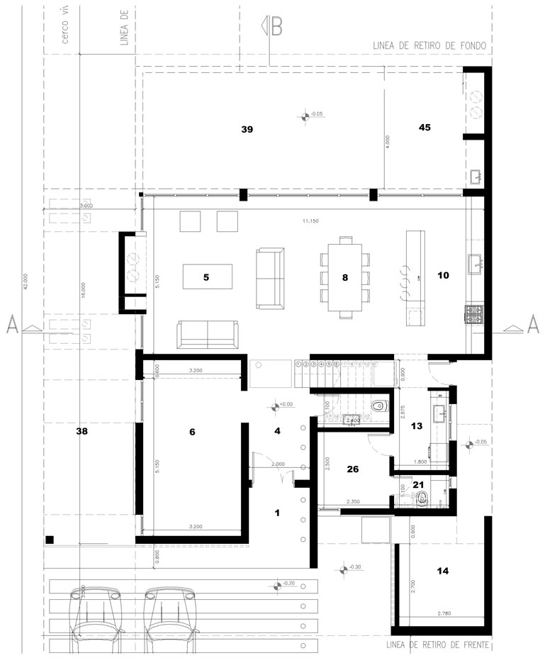
[1] Planta baja
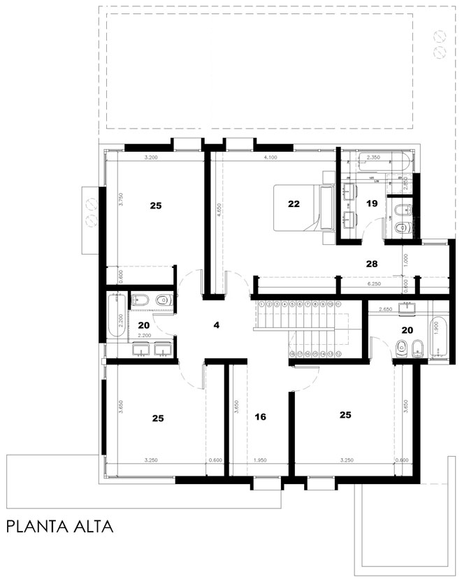
[2] Planta alta
[3] Planta de techos
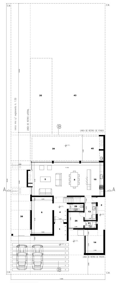
[4] Implantacion
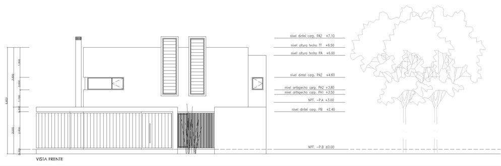
[5] Vista frente
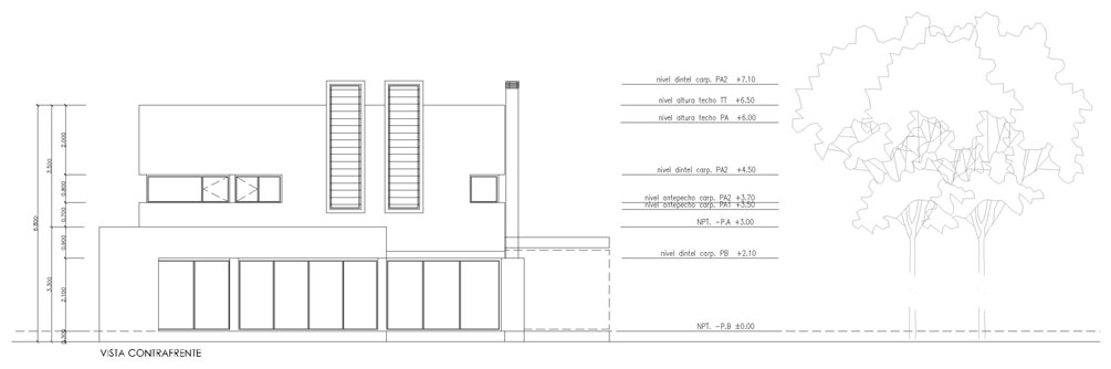
[6] Vista contrafrente
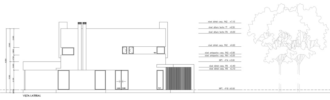
[7] Vista lateral 1
[8] Vista lateral 2
[9] Croquis 1
[10] Croquis 2
[11] Modelo 1
[12] Modelo 2
[13] Modelo 3
[14] Modelo 4
[15] Modelo 5


Referencias
1. Acceso
2. Acceso de servicio
3. Vestibulo
4. Hall/recepcion
5. Estar/salon
6. Estar familiar
7. Jardin de invierno
8. Comedor
9. Comedor diario
10. Cocina
11. Despensa
12. Bodega
13. Lavadero/tendedero/plancha
14. Deposito/trastero
15. Biblioteca
16. Estudio/escritorio/atelier
17. Sala de musica
18. Sala de juegos
19. Baño principal
20. Baño
21. Baño de servicio
22. Dormitorio principal
23. Dormitorio niños
24. Dormitorio de huespedes
25. Dormitorio
26. Dormitorio de servicio
27. Guardarropa
28. Vestidor
29. Hueco/vacio
30. Balcon
31. Terraza
32. Mirador
33. Sauna
34. Solarium
35. Piscina
36. Vestuario
37. Sala de maquinas
38. Garaje/cochera
39. Galeria
40. Expansion
41. Patio
42. Portico
43. Jardin
44. Fuente
45. Parrilla/barbacoa
46. Atico/desvan
47. Sotano/subsuelo


Imágenes

Realice click sobre las imágenes para ampliarlas.

 
Curso Diseño arquitectónico de exteriores con V-Ray
 
 
Si usted es profesional, este es su espacio para publicar su obra o proyecto (en forma gratuita). Para más información visitar la sección contacto: click aquí.
   
   

Noticias
informes especiales
bienal de arquitectura BA11
bienal de arquitectura BA09
publicaciones

Artículos
notas y artículos de interés
arquitectura legal
diseño de iluminación
software de arquitectura y diseño

Recursos
curso de decoracion (gratis/online)
archivo temático
descargas externas
curso de croquis (gratis/online)

Precios y costos
precios de materiales, indices y
costos m2 de construcción

Proyecto
obras construidas
proyectos para concursos
proyectos de estudiantes
arquitectos destacados
obras destacadas

Diseño
diseño industrial y mobiliario
diseño interior y decoración
Casa FOA 2009
Casa FOA 2010
Casa FOA 2011
Casa FOA 2012
Casa FOA 2013
Casa FOA 2014
Estilo Pilar 2010
Estilo Pilar 2012

Construcción
materiales y tecnologías
novedades de empresas
sector inmobiliario

Agenda
cursos y seminarios
congresos y bienales
charlas y eventos
exposiciones y muestras
concursos

Facultad
becas y subsidios
posgrados y maestrías
donde estudiar

Varios
ofertas laborales arquitectura, diseño y construccion
suscripcion newsletter (gratis)
redes sociales
publicidad

Arquimaster en Facebook
Arquimaster en Twitter
Arquimaster en LinkedIn
Arquimaster en Pinterest