Arquimaster - Medio digital de arquitectura, diseño y construccion Estas visitando la version anterior,
para ver la version actual realiza click aca

 

     
       
 
Climanet - Doble Vidrio Hermetico DVH
Matyser - Materiales y servicios para la construccion
Cursos de arquitectura y diseño de espacios
Anclaflex
Curso Introducción a Revit: Modela tus proyectos arquitectonicos
Bara
Central Hidroeléctrica Guayacán / Hydroelectric Guayacán (Fundo El Toyo, San José de Maipo, Región Metropolitana, Chile) - Pedro Pérez y Asociados
Curso Técnica de presentación para proyectos arquitectónicos
 

Ficha técnica
Nombre: Central Hidroeléctrica Guayacán
Ubicación: Fundo El Toyo, San José de Maipo, Región Metropolitana, Chile
Desarrolladores: Pedro Pérez y Asociados
Mandante(s): Energía Coyanco
Arquitecto: Pedro Pérez Guillon
Colaboradores: Jean Petitpas, Miguel Eyquem, Felipe Valenzuela
Planimetría: Pia Mastrantonio, Felipe Valenzuela
Materialidad: estructura metálica y muros cortina termopanel
Calculo estructural: Valgesta Energia SA + Mauricio Tardon
Ingeniería hidráulica: Ecofys & Valgesta
Ingeniería eléctrica: Ecofys & Valgesta
Proyecto de iluminación: Alan Fox + Enclave
Proyecto de paisajismo: Antonia Claro
Constructora: Ovalle Moore
Planimetría: Felipe Valenzuela y Pia Mastrantonio
Graficas explicativas: Rene Benavente
Calculo energitermico: B-Green
Superficie construida: 1.800 m2
Año del proyecto: 2009
Inauguración: 2012

Fotos
Gian Franco Costa
Pedro Pérez
Sebastian Lavados

 

Ver planos de la obra

English version

La Central Hidroeléctrica Guayacán es el primer ejemplo de arquitectura industrial sostenible en la comuna.

Se trata de una Central Hidroeléctrica de pasada de 10,4 KW (energías renovables) de 1800 m2. La planta esta pensada como un museo de sitio, con un programa de visitas guiadas.

El edificio ha sido especialmente diseñado para cumplir con un optimo estándar de eficiencia energetica, utilizando las energías naturales del lugar y generando una integración medioambiental y paisajística con su entorno.

Central Hidroeléctrica Guayacán
, es la primera central hidroeléctrica de Energía Coyanco S.A. una empresa dedicada a la generación de energías limpias. Este primer proyecto cuenta con una capacidad instalada de 10,4 KW.

El proyecto, desarrollado por Pedro Pérez y Asociados Ltda, se inscribe dentro de una iniciativa llamada Parque de las Energías propuesta dentro de la Agenda de Innovación en Turismo para el Cajón del Maipo y Pirque (Proyecto Innova Corfo, desarrollado por el arquitecto junto a la Asistencia Técnica de la Facultad de Arquitectura de la Escuela de Arquitectura y Diseños de la PUCV. Proyecto encargado por las municipalidades y Cámaras de turismo de San José de Maipo y Pirque).

Central Guayacán se propone como el primer eslabón de este Parque de las Energías (Museo abierto de Educación Ambiental, tecnológica e histórica), generando un nuevo espacio donde la gente podrá aprender más sobre el desafío de las Energías Renovables, el Patrimonio y Tradición Hidroeléctrica del Cajón del Maipo y de las Nuevas Tecnologías "limpias"). Promoviendo la integración del desarrollo energético y turístico de la comuna.

Esta Central se propone como un museo de sitio, en contacto con la naturaleza, la montaña, los canales y el Río.

Siendo la primera Central Hidroeléctrica en Chile pensada desde su dimensión turística (como hace algunos años comenzó a hacerse con las principales viñas del país).

Este proyecto nace de la convicción de que desarrollo y conservación pueden ser iniciativas complementarias.

En este sentido, el Turismo y la Educación Medioambiental, resultan ser elementos claves para conseguir una "Preservación Productiva" del Patrimonio Natural de la Precordillera Chilena.

El edificio alcanza un total de 1.800 m2, de áreas de trabajo, inspección, oficinas operativas y administrativas, además de un area de servicios y zonas de circulación y servicios para las visitas guiadas a la Central.

Consiste en una gran cubierta con forma alar con dos grandes agallas de ventilación y dos grandes fachadas de muro cortina de vidrios dobles laminados, que además de generar una gran luminosidad interior, permiten a la central tener vista a los cordones montañosos que la rodean y permite a los transeúntes ver la sala de generación desde la calle pública incluso desde el otro lado del río, cumpliendo con su rol de museo incluso a un nivel urbano.

El proyecto Hidroeléctrica Guayacán se propone como el primer ejemplo de arquitectura industrial sostenible en esta comuna, promoviendo no solo la generación de energías renovables sino también un nuevo estándar de edificación ecológica y consciente del medioambiente.

Todos los sistemas de climatización y confort interior del edificio fueron diseñados en base a las energías naturales del lugar y sistemas pasivos.

Este diseño fue sometido al software de modelamiento energitérmico Ecotec, para optimizar y evaluar la eficiencia energética de las soluciones de climatización natural utilizadas.


English version

Hydroelectric Guayacán

Hydroelectric Guayacán, is the first hydroelectric Coyanco Energy SA a company dedicated to clean energy generation. This first project has an installed capacity of 10.4 KW.

The project, developed by Pedro Perez and Associates Ltd., is part of an initiative called "Park Energies" proposal within the Innovation Agenda for Tourism and Pirque Maipo (CORFO Innova Project, developed by architect together Technical Assistance to the Faculty of Architecture at the School of Architecture and Design of PUCV. Project commissioned by the municipalities and Chambers of Tourism and San José de Maipo Pirque.

Central Guayacán is proposed as the first link in this park Energies (Open Museum for Environmental Education, technological and historical), creating a new space where people can learn more about the challenge of Renewable Energy, Heritage and Tradition Hydroelectric Maipo Valley and New Technologies "clean"). Promoting the integration of energy development and tourism in the municipality.

This plant is proposed as a "site museum" in touch with nature, mountains and river channels. Being the first hydroelectric plant in Chile tourist thought from its size (as a few years ago began to gain major vineyards in the country).

This project stems from the conviction that development and conservation initiatives can be complementary. In this sense, tourism and environmental education, appear to be key elements to achieve a "Productive Preservation" Natural Heritage of the Chilean Precordillera.

The building totals 1,800 m2, work areas, inspection, operational and administrative offices, as well as a service area and circulation areas and services for guided tours to Central.

It consists of a large deck with two large wing shape with ventilation gills and two great walls of glass curtain wall double laminates, in addition to generating a well-lit interior, allow the plant to have a view of the surrounding mountain ranges and allows passersby see the living generation from the public street even from the other side of the river, fulfilling its role as a museum even city level.

The "Hydro Guayacán" is proposed as the first example of sustainable industrial architecture in this community, promoting not only renewable energy generation, but also a new standard for green building and environmental consents.

All HVAC and comfort inside the building were designed based on the site's natural energies and passive systems. This design was submitted to Ecotec energitérmico modeling software to optimize and evaluate the energy efficiency of air conditioning solutions used unaltered.


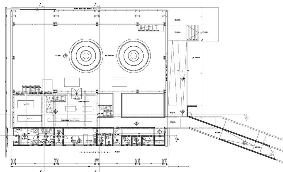
Planos
Realice click en los links para ver los planos.

[1] Planta
[2] Corte transversal
[3] Corte longitudinal
[4] Vista lateral

[5] Vientos predominantes
[6] Despiece cubierta
[7] Niveles ventilación natural
[8] Radiación solar acumulada en cubierta

[9] Comportamiento termico verano ángulo de incidencia solar de 76,2° longitudinal

[10] Comportamiento termico verano ángulo de incidencia solar de 76,2° transversal

[11] Comportamiento termico verano ángulo de incidencia solar de 32° transversal

[12] Axonometrica 1
[13] Axonometrica 2
[14] Axonometrica 3
[15] Axonometrica 4


Imágenes

Realice click sobre las imágenes para ampliarlas.

 
Curso Diseño arquitectónico de exteriores con V-Ray
 
 
Si usted es profesional, este es su espacio para publicar su obra o proyecto (en forma gratuita). Para más información visitar la sección contacto: click aquí.
   
   

Noticias
informes especiales
bienal de arquitectura BA11
bienal de arquitectura BA09
publicaciones

Artículos
notas y artículos de interés
arquitectura legal
diseño de iluminación
software de arquitectura y diseño

Recursos
curso de decoracion (gratis/online)
archivo temático
descargas externas
curso de croquis (gratis/online)

Precios y costos
precios de materiales, indices y
costos m2 de construcción

Proyecto
obras construidas
proyectos para concursos
proyectos de estudiantes
arquitectos destacados
obras destacadas

Diseño
diseño industrial y mobiliario
diseño interior y decoración
Casa FOA 2009
Casa FOA 2010
Casa FOA 2011
Casa FOA 2012
Casa FOA 2013
Casa FOA 2014
Estilo Pilar 2010
Estilo Pilar 2012

Construcción
materiales y tecnologías
novedades de empresas
sector inmobiliario

Agenda
cursos y seminarios
congresos y bienales
charlas y eventos
exposiciones y muestras
concursos

Facultad
becas y subsidios
posgrados y maestrías
donde estudiar

Varios
ofertas laborales arquitectura, diseño y construccion
suscripcion newsletter (gratis)
redes sociales
publicidad

Arquimaster en Facebook
Arquimaster en Twitter
Arquimaster en LinkedIn
Arquimaster en Pinterest