Arquimaster - Medio digital de arquitectura, diseño y construccion Estas visitando la version anterior,
para ver la version actual realiza click aca

 

     
       
 
Climanet - Doble Vidrio Hermetico DVH
Matyser - Materiales y servicios para la construccion
Cursos de arquitectura y diseño de espacios
Anclaflex
Curso Introducción a Revit: Modela tus proyectos arquitectonicos
Bara
Casa Hípico (Coto Club Hípico, Zapopan, Jalisco, México) - Sánchez Angulo Arquitectos
Curso Técnica de presentación para proyectos arquitectónicos
 

Ficha técnica
Nombre: Casa Hípico
Ubicacion: Coto Club Hípico, Zapopan, Jalisco, México
Proyecto: Sánchez Angulo Arquitectos (Arq. Jorge Alberto Sánchez Angulo, Arq. Carlos Iram Sánchez Angulo)
Fecha de proyecto: 2008
Construcción: Sanchez Angulo Arquitectos
Fecha de construcción: 2008
Superficie construida: 160 m2 en 2 niveles
Fotografía: Guillermo Peláez
Sitio web: http://www.sanchezangulo.com

 

Ver planos de la obra

La casa está ubicada en un pequeño coto residencial de una sola calle con 20 lotes de dimensiones pequeñas.

Los lotes son de 6 metros de frente y 15 metros de fondo.

Los clientes, una joven pareja sin niños (cuando iniciamos el proyecto), son coleccionistas, ella colecciona muñecas Barbie y él colecciona "figuras de acción" y es aficionado al aeromodelismo.

Querían un departamento pequeño con taller-patio interior para el aeromodelismo y reuniones sociales .

Buscando una sensación de amplitud, trabajamos con la idea básica de un cubo "ahuecado".

Las plantas se resuelven prácticamente sin muros divisorios, excepto los de los baños.

Con el uso de plataformas en varios niveles, muros bajos, dobles alturas, nichos practicados en las paredes (para las colecciones) y tragaluces, se definieron los diferentes espacios.

Al crecer la familia (llegó una linda niña) creció la casa y la doble altura se cubrió con un entrepiso de tablones de madera y estructura vista.

Insistiendo en la amplitud, se propuso una escalera "transparente" de estructura metálica y escalones de madera.


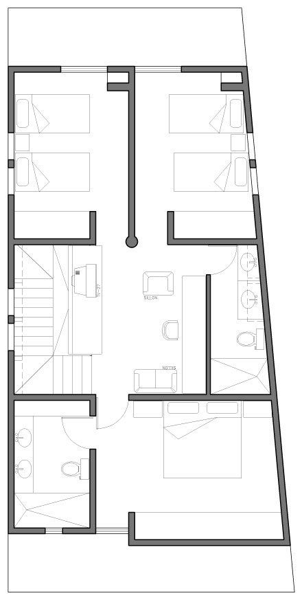
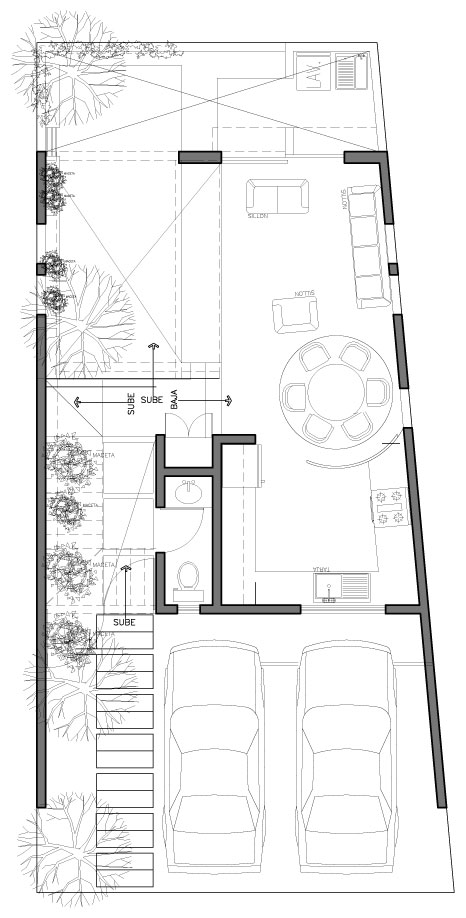
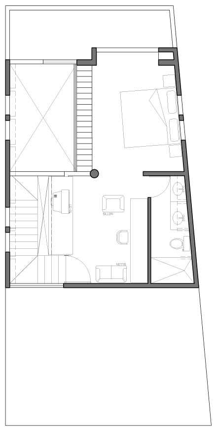
Planos
Realice click en los links para ver los planos.

[1] Planta baja
[2] Planta alta
[3] Planta alta (ampliacion)
[4] Corte


Imágenes

Realice click sobre las imágenes para ampliarlas.

 
Curso Diseño arquitectónico de exteriores con V-Ray
 
 
Si usted es profesional, este es su espacio para publicar su obra o proyecto (en forma gratuita). Para más información visitar la sección contacto: click aquí.
   
   

Noticias
informes especiales
bienal de arquitectura BA11
bienal de arquitectura BA09
publicaciones

Artículos
notas y artículos de interés
arquitectura legal
diseño de iluminación
software de arquitectura y diseño

Recursos
curso de decoracion (gratis/online)
archivo temático
descargas externas
curso de croquis (gratis/online)

Precios y costos
precios de materiales, indices y
costos m2 de construcción

Proyecto
obras construidas
proyectos para concursos
proyectos de estudiantes
arquitectos destacados
obras destacadas

Diseño
diseño industrial y mobiliario
diseño interior y decoración
Casa FOA 2009
Casa FOA 2010
Casa FOA 2011
Casa FOA 2012
Casa FOA 2013
Casa FOA 2014
Estilo Pilar 2010
Estilo Pilar 2012

Construcción
materiales y tecnologías
novedades de empresas
sector inmobiliario

Agenda
cursos y seminarios
congresos y bienales
charlas y eventos
exposiciones y muestras
concursos

Facultad
becas y subsidios
posgrados y maestrías
donde estudiar

Varios
ofertas laborales arquitectura, diseño y construccion
suscripcion newsletter (gratis)
redes sociales
publicidad

Arquimaster en Facebook
Arquimaster en Twitter
Arquimaster en LinkedIn
Arquimaster en Pinterest