Arquimaster - Medio digital de arquitectura, diseño y construccion Estas visitando la version anterior,
para ver la version actual realiza click aca

 

     
       
 
Climanet - Doble Vidrio Hermetico DVH
Matyser - Materiales y servicios para la construccion
Cursos de arquitectura y diseño de espacios
Anclaflex
Curso Introducción a Revit: Modela tus proyectos arquitectonicos
Bara
Departamento Armoni (México) - ARCO Arquitectura Contemporánea
Curso Técnica de presentación para proyectos arquitectónicos
 

Ficha técnica
Nombre: Departamento Armori
Ubicación: México DF
Fecha de realización: 2010
Área construida: 285 m2
Proyecto interior: ARCO Arquitectura Contemporánea (Arq. Bernardo Lew Kirsch, Arq. José Lew Kirsch)
Construcción y supervisión de obra: ARCO Arquitectura Contemporánea (Arq. Jesús Román, Arq. Jonathan Herrejon, Arq. Guillermo Martinez, Arq. Nahela Hinojosa, Arq. Oscar Sarabia, Arq, Federico Teista, Arq. José Ruíz, Beatriz Canuto)
Materiales: Madera, mármol, porcelanato, vidrio
Fotografía: Jaime Navarro
Mobiliario: ARCO Arquitectura Contemporánea, Esrawe Diseño, Natuzzi
Sitio web: http://www.ar-co.com.mx

 

Ver planos de la obra

El interiorismo desarrollado para el departamento Armoni tuvo como objetivo darle una imagen moderna y atemporal manteniendo las áreas y distribución existentes, con ligeros cambios al proyecto original para hacer un espacio más funcional y abierto.

La planta del edificio es semicircular por lo que se hicieron algunas modificaciones para generar espacios más regulares y una atmósfera contemporánea con la adecuada selección de elementos.

El acceso es por medio del elevador, envuelto en una atractiva caja de madera, que se encuentra al centro del espacio y marca las circulaciones interiores. Hacia la derecha se encuentran las zonas públicas y el dormitorio principal.

Todas estas áreas aprovechan las vistas con grandes ventanales y la sala principal cuenta con una terraza. Hacia la izquierda un pasillo lleva hacia la cocina, el family room y los dormitorios secundarios.

La selección de acabados se hizo con miras a tener como resultado un espacio muy elegante de líneas muy simples para lograr el máximo de amplitud y luminosidad.

En los pisos se hizo la combinación con pisos laminados y mármol travertino, en tonos neutros y claros, de acuerdo con la actividad de cada espacio para enfatizar la calidez.

En plafones se busco dar solo acentos de iluminación y un ligero juego con cajillos en algunas zonas que dan un toque original y llevan la atención hacia los puntos que tienen un mayor valor en diseño.

Predominan los muros en un acabado claro y contrastando, como en el caso del comedor, con un muro en un tono más oscuro. Esta combinación de claro obscuro hace juego con los lambrines de madera de teka, ubicados en las zonas más públicas del departamento, como en el elevador, el lambrín que oculta la puerta de acceso al toilet y uno más ubicado en el family room que le dan continuidad y calidez.

El resultado general es un espacio donde la armonía se aprecia a primera vista con un gran número de detalles de alta calidad que le dan un ambiente muy homogéneo a todo el concepto.

Los elementos naturales, como la madera de teka y la base de mármol avejentado de la chimenea, combinada con el fondo recubierto en laja negra, son el perfecto balance junto con la iluminación, el mobiliario y los accesorios que muestran un concepto moderno acorde con las tendencias de interiorismo actual.


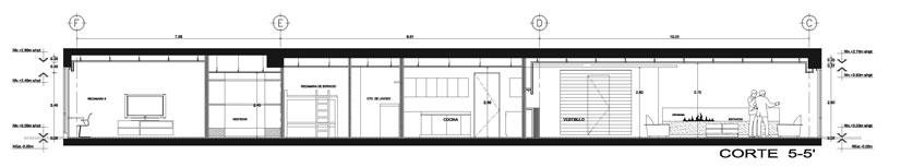
Planos
Realice click en los links para ver los planos.

[1] Planta
[2] Corte 1
[3] Corte 2


Imágenes

Realice click sobre las imágenes para ampliarlas.

 
Curso Diseño arquitectónico de exteriores con V-Ray
 
 
Si usted es profesional, este es su espacio para publicar su obra o proyecto (en forma gratuita). Para más información visitar la sección contacto: click aquí.
   
   

Noticias
informes especiales
bienal de arquitectura BA11
bienal de arquitectura BA09
publicaciones

Artículos
notas y artículos de interés
arquitectura legal
diseño de iluminación
software de arquitectura y diseño

Recursos
curso de decoracion (gratis/online)
archivo temático
descargas externas
curso de croquis (gratis/online)

Precios y costos
precios de materiales, indices y
costos m2 de construcción

Proyecto
obras construidas
proyectos para concursos
proyectos de estudiantes
arquitectos destacados
obras destacadas

Diseño
diseño industrial y mobiliario
diseño interior y decoración
Casa FOA 2009
Casa FOA 2010
Casa FOA 2011
Casa FOA 2012
Casa FOA 2013
Casa FOA 2014
Estilo Pilar 2010
Estilo Pilar 2012

Construcción
materiales y tecnologías
novedades de empresas
sector inmobiliario

Agenda
cursos y seminarios
congresos y bienales
charlas y eventos
exposiciones y muestras
concursos

Facultad
becas y subsidios
posgrados y maestrías
donde estudiar

Varios
ofertas laborales arquitectura, diseño y construccion
suscripcion newsletter (gratis)
redes sociales
publicidad

Arquimaster en Facebook
Arquimaster en Twitter
Arquimaster en LinkedIn
Arquimaster en Pinterest