Arquimaster - Medio digital de arquitectura, diseño y construccion Estas visitando la version anterior,
para ver la version actual realiza click aca

 

     
       
 
Climanet - Doble Vidrio Hermetico DVH
Matyser - Materiales y servicios para la construccion
Cursos de arquitectura y diseño de espacios
Anclaflex
Curso Introducción a Revit: Modela tus proyectos arquitectonicos
Bara
Casa Coco (Nordelta, Pcia. Buenos Aires, Argentina) - Epstein arquitectos
Curso Técnica de presentación para proyectos arquitectónicos
 

Ficha técnica
Nombre: Casa Coco
Ubicación: Nordelta, Partido de Tigre, Pcia. Buenos Aires, Argentina
Proyecto y Dirección: Epstein arquitectos (Arq. Hugo Epstein y Arq. Rocío Folgueira)
Año de ejecución: 2011
Superficie terreno: 725 m2
Superficie construida: 343 m2

 

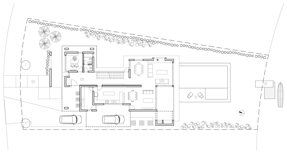
Ver planos de la obra

Esta vivienda se proyectó en un lote de 15 metros de frente, 14 metros de fondo y 44 metros de profundidad con orientación SE hacia la línea de fondo del embarcadero, situada en un barrio cerrado del partido de Tigre.

En la planta baja se ubican los accesos peatonales y vehiculares, los espacios públicos de la vivienda y el servicio.

Se organiza en dos áreas dividas por una pequeña doble altura que se vivencia desde el acceso, donde se encuentra la escalera.

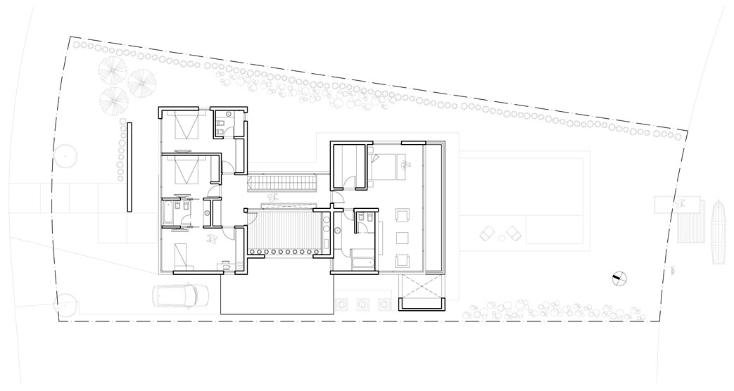
La planta alta se establece en dos áreas conectadas a través de un puente al que llega la escalera principal.

En el volumen del frente se encuentran los dormitorios de los chicos y del otro lado del puente se ubica el dormitorio principal en suite con una terraza que genera visuales amplias hacia el lago.

La casa está retirada de la calle interna del barrio por un jardín y un solado apto para estacionar los autos, realizado en un piso de cemento alisado blanco.

La llegada hasta la puerta principal se transita mediante un camino peatonal donde se proyectó un tabique revestido en placas de mármol travertino que auspicia de recorrido hasta la llegada a la fachada principal, aportando gran luminosidad.

Se accede a la casa por un semicubierto, la puerta principal se abre a un único espacio, donde se encuentra la escalera y un patio verde como protagonistas principales de la vivienda.

La utilización de la escalera como escultura protagónica del recibo y los pisos unifican ambientes sumando a la sensación de amplitud de las plantas, la utilización de grandes paños de vidrios lograron desmaterializar la envolvente de la vivienda convirtiendo al paisaje en un elemento más.

La fachada posterior, plena de imágenes interiores y exteriores en un mismo gran juego visual, regala las visuales cambiantes de la totalidad del lago.

La galería se vincula con la piscina a través de un solárium, el resto del lote está libre ocupando la vegetación proyectada.

La ventilación cruzada en todas las plantas garantiza una aireación óptima en todas las estaciones del año.

La estructura está cubierta por una serie de losas de hormigón armado, con vigas invertidas y ménsulas en todo su perímetro para lograr desprender la volumetría superior de la inferior.

Esto permitió liberar totalmente la planta baja de la alta mediante rajas horizontales de vidrios, generando un juego volumétrico donde la planta superior se encuentra "suspendida" en el espacio.

Fue premisa la elección de materiales nobles, mármol travertino para el revestimiento de la escalera, tabiques exteriores e interiores, barandas de vidrio, puertas interiores de madera de piso a cielorrasos para evitar dinteles, aberturas exteriores de aluminio anodizado natural con vidrios con cámara de aire y de seguridad, pisos de cemento alisado blanco para los solados exteriores.

El acento está puesto en la construcción tectónica del espacio, la materialización de los bordes y la valorización de la luz como generadora de diferentes sensaciones dentro de la vivienda. 

Se trabajó sobre una relación fluida entre el interior y el exterior. Para generar mayor continuidad espacial logrando una mejor forma de percibir los espacios.


Planos
Realice click en los links para ver los planos.

[1] Planta baja
[2] Planta alta


Imágenes

Realice click sobre las imágenes para ampliarlas.

 
Curso Diseño arquitectónico de exteriores con V-Ray
 
 
Si usted es profesional, este es su espacio para publicar su obra o proyecto (en forma gratuita). Para más información visitar la sección contacto: click aquí.
   
   

Noticias
informes especiales
bienal de arquitectura BA11
bienal de arquitectura BA09
publicaciones

Artículos
notas y artículos de interés
arquitectura legal
diseño de iluminación
software de arquitectura y diseño

Recursos
curso de decoracion (gratis/online)
archivo temático
descargas externas
curso de croquis (gratis/online)

Precios y costos
precios de materiales, indices y
costos m2 de construcción

Proyecto
obras construidas
proyectos para concursos
proyectos de estudiantes
arquitectos destacados
obras destacadas

Diseño
diseño industrial y mobiliario
diseño interior y decoración
Casa FOA 2009
Casa FOA 2010
Casa FOA 2011
Casa FOA 2012
Casa FOA 2013
Casa FOA 2014
Estilo Pilar 2010
Estilo Pilar 2012

Construcción
materiales y tecnologías
novedades de empresas
sector inmobiliario

Agenda
cursos y seminarios
congresos y bienales
charlas y eventos
exposiciones y muestras
concursos

Facultad
becas y subsidios
posgrados y maestrías
donde estudiar

Varios
ofertas laborales arquitectura, diseño y construccion
suscripcion newsletter (gratis)
redes sociales
publicidad

Arquimaster en Facebook
Arquimaster en Twitter
Arquimaster en LinkedIn
Arquimaster en Pinterest