Arquimaster - Medio digital de arquitectura, diseño y construccion Estas visitando la version anterior,
para ver la version actual realiza click aca

 

     
       
 
Climanet - Doble Vidrio Hermetico DVH
Matyser - Materiales y servicios para la construccion
Cursos de arquitectura y diseño de espacios
Anclaflex
Curso Introducción a Revit: Modela tus proyectos arquitectonicos
Bara
Edificio ProFuturo (Lima, Perú) - Arq. José Orrego
Curso Introducción a Revit: modela tus proyectos arquitectónicos
 

Ficha técnica
Nombre: Edificio ProFuturo
Ubicación: San Isidro, Lima, Perú
Proyecto: Arq. José Orrego
Sitio web: http://www.metropolisperu.com

La propuesta para la nueva sede corporativa de la AFP Profuturo partió de la evaluación de un antiguo edificio ubicado en la Av. Riverra Navarrete en San Isidro, Lima, Peru.

Teniendo en cuenta el entorno circundante se propuso una aplicación que permitiera una mejor inserción dentro de la manzana, proponiendo un nuevo tratamiento para los bordes y ganando altura para tener la escala de los edificios vecinos.

El frente principal se trató con un muro de vidrio pantalla que ayudó a completar la nueva volumetría propuesta.

Al ser una construcción existente, se tuvo que evaluar las limitaciones estructurales y la factibilidad de aplicar la solución de recubrimientos que formaran parte de esta nueva visión arquitectónica.

Una vez que se tuvieron en forma clara las consideraciones físicas del edificio, se procedió a crear un exo esqueleto metálico que permitiera construir la nueva forma del edificio sin tener que intervenir en la edificación existente.

A partir de allí se propusieron distintos recubrimientos que crearan una imagen distintiva y contemporánea del edificio.

El edificio se dividió en tres partes:

La base, que era parte del edificio original, pero se perforó para crear nuevas ventanas para vincular el primer piso con su entorno urbano.

Este volumen se recubrió con planchas de aluminio compuesto permitiendo mostar una fachada actualizada.

El cuerpo central donde se propuso una estructura curva que permite actuar como un espacio central de múltiple altura que conectara en forma interior los pisos existentes.

Esta estructura permitió desarrollar una gran pantalla de vidrio traslúcido con un detalle de pasarelas previstos para recibir una propuesta de iluminación innovadora.

Esta pantalla además fue concebida para llevar iluminación inteligente y crear un efecto dinámico en base a la aplicación de LEDS que articulados bajo un software permiten un cambio en las escenas de iluminación del conjunto creando un efecto espectacular y único.

La torre que con una nueva estructura apoyada permitió alcanzar una mayor altura.

Este elemento arquitectónico fue desarrollado en estructura metálica Superboard y sirvió como apoyo para los letreros de la empresa.

Otro aporte del edificio consistió en una solución de piletas a nivel de calle que creaban un tratamiento urbano que defendía el proyecto del tránsito peatonal de una forma amigable con espejos y chorros de agua.

Con el tratamiento propuesto, el edificio se ha convertido en una de las propuestas arquitectónicas más innovadoras por su uso de la iluminación y materiales en colores nunca antes aplicados en el medio para un edificio corporativo.

Los volúmenes nuevos ayudaron a crear la base del edificio, y remarcar los dos ingresos al conjunto.

Este edificio es uno de los primeros en reciclar un edificio existente para crear una imagen distintiva de una empresa en base al tratamiento de la fachada con materiales contemporáneos propios de este siglo.


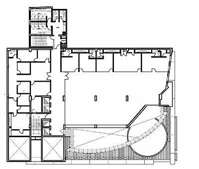
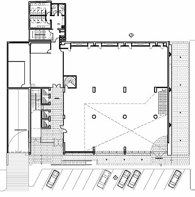
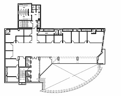
Planos

[1] Planta baja
[2] Planta 4º piso
[3] Planta 10º piso
[4] Planta de techos
[5] Vista calle Andrés Reyes
[6] Vista Av. Rivera Navarrete

Realice click sobre los planos para ampliarlos

Ver planos y datos de contacto al pie de página.


Acerca del proyectista
Arq. José Orrego

Arquitecto por la Universidad Ricardo Palma, Lima, Perú (1997).

Miembro del Colegio de Arquitectos del Perú desde 1998.

Ha recibido distintos premios, tales como la medalla de la Ciudad de Miraflores y el premio Padis 2005 por diseño comercial.

Su trabajo es regularmente publicado en distintos medios locales y extranjeros.

Ha participado en conferencias de arquitectura y diseño comercial.

Como proyectista ha participado en concursos privados y se ha especializado en diferentes áreas proyectuales tales como:

Cementerios y culto
Oficinas corporativas
Restaurantes
Proyectos comerciales (desde arquigrafia, módulos, tiendas, cines, tiendas de departamentos, supermercados y centros comerciales de mediano y gran formato)
Casas de playa
Imagen comercial
Reciclajes

Con más de 20 años dedicado exclusivamente al diseño lleva desarrollado hasta la fecha más de 400 proyectos realizados por encargos privados de distinto tipo. En la actualidad lidera una de los estudios de arquitectura más importantes del Perú.

 
Curso ArchViz avanzada con Cinema 4D y Corona Renderer
 
Si usted es profesional, este es su espacio para publicar su obra o proyecto (en forma gratuita). Para más información visitar la sección contacto: click aquí.
   
   

Noticias
informes especiales
bienal de arquitectura BA11
bienal de arquitectura BA09
publicaciones

Artículos
notas y artículos de interés
arquitectura legal
diseño de iluminación
software de arquitectura y diseño

Recursos
curso de decoracion (gratis/online)
archivo temático
descargas externas
curso de croquis (gratis/online)

Precios y costos
precios de materiales, indices y
costos m2 de construcción

Proyecto
obras construidas
proyectos para concursos
proyectos de estudiantes
arquitectos destacados
obras destacadas

Diseño
diseño industrial y mobiliario
diseño interior y decoración
Casa FOA 2009
Casa FOA 2010
Casa FOA 2011
Casa FOA 2012
Casa FOA 2013
Casa FOA 2014
Estilo Pilar 2010
Estilo Pilar 2012

Construcción
materiales y tecnologías
novedades de empresas
sector inmobiliario

Agenda
cursos y seminarios
congresos y bienales
charlas y eventos
exposiciones y muestras
concursos

Facultad
becas y subsidios
posgrados y maestrías
donde estudiar

Varios
ofertas laborales arquitectura, diseño y construccion
suscripcion newsletter (gratis)
redes sociales
publicidad

Arquimaster en Facebook
Arquimaster en Twitter
Arquimaster en LinkedIn
Arquimaster en Pinterest