Arquimaster - Medio digital de arquitectura, diseño y construccion Estas visitando la version anterior,
para ver la version actual realiza click aca

 

     
       
 
Climanet - Doble Vidrio Hermetico DVH
Matyser - Materiales y servicios para la construccion
Cursos de arquitectura y diseño de espacios
Anclaflex
Curso Introducción a Revit: Modela tus proyectos arquitectonicos
Bara
Pabellón J de la Universidad Científica del Sur (Villa El Salvador, Lima, Perú) - Gomez de la Torre y Guerrero Arqs.
Curso Técnica de presentación para proyectos arquitectónicos
 

Ficha técnica
Nombre: Pabellón J Universidad Científica del Sur
Ubicación: Villa El Salvador, Lima, Perú
Proyectistas: Gomez de la Torre y Guerrero Arqs.
Arquitectos: Cesar Enrique Gomez de la Torre Salas y Maria del Carmen Guerrero Yabar
Año de proyecto: 2011
Sitio web: https://www.gomezdelatorreyguerrero-arquitectos.com

 

Ver planos de la obra

El Pabellón J es el primero de las edificaciones concebidas en el nuevo Campus de la Universidad Científica del Sur, ubicado en el área de amortiguamiento de los Pantanos de Villa, un área natural protegida que se encuentra en el litoral del distrito de Chorrillos en la provincia de Lima, Perú, a orilla del Océano Pacífico.

Estos humedales naturales conforman un área con abundancia de flora y fauna, aves migratorias y conserva una biodiversidad de especies.

Por tal motivo se concibió una arquitectura con cualidades medio ambientales, austera, que no perturbe su entorno natural, manteniendo un ritmo neutral y lineal en la volumetría de dos pisos en la mayoría de las edificaciones, dejando al usuario su protagonismo.

Con una escala urbana agradable se plantean los espacios, donde cada plaza se interconecta con circuitos y paseos ecológicos, aprovechando sus vistas verdes de ciénagas y su cercanía al mar.

Desde su inicio se concibió el diseño para fomentar la interacción social de los alumnos con plazas de características diferentes para definir su ubicación dentro del Campus.

El pabellón se ha dividido en tres plazas: la más cercana al ingreso es un foro para declamaciones públicas o pequeñas piezas teatrales.

En la segunda plaza se habilitaron bancas y un recorrido de agua para el solaz y relajamiento. Rodeando esta plazuela se trabajaron los pasillos aéreos con volúmenes que sobresalen como estaciones de descanso de los estudiantes.

La tercera plaza plantea la idea de un bosquecillo de árboles en el cual se han habilitado bancas y mesas para los alumnos. Los volúmenes inclinados son el único detalle sobresaliente en la idea de propiciar esta arquitectura sencilla y poco perturbadora con la naturaleza y le da una característica especial al conjunto.

Estas inclinaciones de las fachadas, al dejar hundidas las ventanas, encubren una especie de parasoles integrados al volumen, que lo protegen del asoleamiento intenso y de la lluvia. Este además limita con la alameda que organiza el Campus y accede igualmente a todas las plazas.

A un costado, colindando con la alameda y en una zona aparte de las aulas, se vuelve a propiciar el encuentro de los alumnos en un espacio de reunión, donde se han colocado techos Delta y un juego de bancas altas y bajas para repasar una laptop de pie o departir en grupo. A este espacio entregan dos escaleras del pabellón y se comunica con las dos plazas más grandes.

Todo este pabellón, como ya hemos indicado, se desarrolla con una altura máxima de dos pisos, implementando en cada etapa construida un diseño sostenible con sistemas de protección contra el calentamiento solar.

Para esto se ha trabajado un doble techo con ingresos y salidas de aire que protege el impacto del sol sobre el último techo de la edificación, creando un colchón de aire, el cual disipa el calor del ambiente.

La integración amable con el entorno y con la trama existente de esta parte olvidada de la ciudad, ha iniciado, gracias a este planteamiento, una revitalización importante, bajo un concepto y premisas ecológicas propuestas para y por el Campus.

En esencia el concepto de este proyecto es plantear una arquitectura con vocación de ser recorrida, con registros que hagan de ella un objeto animado, cálido y de profundo espíritu integrador.


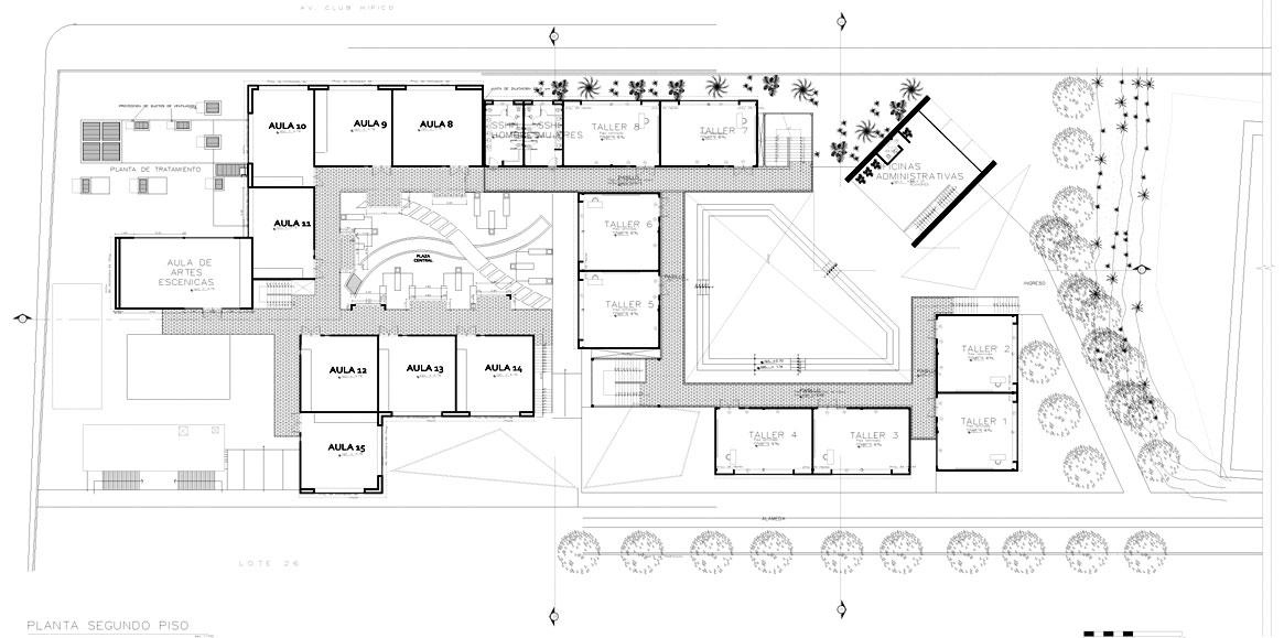
Planos
Realice click en los links para ver los planos.

[1] Planta baja
[2] Planta alta
[3] Corte AA
[4] Corte BB
[5] Corte CC


Imágenes

Realice click sobre las imágenes para ampliarlas.


Acerca de los proyectistas
Estudio de diseño y construccion, fundado en 1983 por Maria Del Carmen Guerrero Yabar y Cesar Enrique Gomez de la Torre Salas, arquitectos egresados de la Universidad Ricardo Palma.

Ganadores de la medalla de oro en la categoria Arquitectural Design: Single Family Housing y de la medalla de bronce en la categoria Arquitectural Design: Multi Family Housing de la Bienal Internacional de Arquitectura y Diseño de Miami 2009.

 
Curso Diseño arquitectónico de exteriores con V-Ray
 
 
Si usted es profesional, este es su espacio para publicar su obra o proyecto (en forma gratuita). Para más información visitar la sección contacto: click aquí.
   
   

Noticias
informes especiales
bienal de arquitectura BA11
bienal de arquitectura BA09
publicaciones

Artículos
notas y artículos de interés
arquitectura legal
diseño de iluminación
software de arquitectura y diseño

Recursos
curso de decoracion (gratis/online)
archivo temático
descargas externas
curso de croquis (gratis/online)

Precios y costos
precios de materiales, indices y
costos m2 de construcción

Proyecto
obras construidas
proyectos para concursos
proyectos de estudiantes
arquitectos destacados
obras destacadas

Diseño
diseño industrial y mobiliario
diseño interior y decoración
Casa FOA 2009
Casa FOA 2010
Casa FOA 2011
Casa FOA 2012
Casa FOA 2013
Casa FOA 2014
Estilo Pilar 2010
Estilo Pilar 2012

Construcción
materiales y tecnologías
novedades de empresas
sector inmobiliario

Agenda
cursos y seminarios
congresos y bienales
charlas y eventos
exposiciones y muestras
concursos

Facultad
becas y subsidios
posgrados y maestrías
donde estudiar

Varios
ofertas laborales arquitectura, diseño y construccion
suscripcion newsletter (gratis)
redes sociales
publicidad

Arquimaster en Facebook
Arquimaster en Twitter
Arquimaster en LinkedIn
Arquimaster en Pinterest