Arquimaster - Medio digital de arquitectura, diseño y construccion Estas visitando la version anterior,
para ver la version actual realiza click aca

 

     
       
 
Climanet - Doble Vidrio Hermetico DVH
Matyser - Materiales y servicios para la construccion
Cursos de arquitectura y diseño de espacios
Anclaflex
Curso Introducción a Revit: Modela tus proyectos arquitectonicos
Bara
Vivienda en Barra de Carrasco (Montevideo, Uruguay) - Arq. Gabriela Pallares & asoc.
Curso Introducción a Revit: modela tus proyectos arquitectónicos
 

Ficha técnica
Nombre: Vivienda unifamiliar
Ubicación: Barra de Carrasco, Montevideo, Uruguay
Proyecto: Estudio arquitect. e interiorismo Gabriela Pallares & asoc.
Superficie: 140 m2

Contacto
Sarmiento 2656 (Montevideo, Uruguay)
Av. Washington esq. Paul Harris (Punta del Este, Uruguay)
Tel/fax: (005982) 712-0057
Email: pallares@netgate.com.uy
Web: http://www.gabrielapallares.com

Agradecimientos
Las imágenes y textos publicados han sido enviados por Arq. Gabriela Pallares

El proyecto, a cargo el estudio de Arquitectura e interiorismo, Gabriela Pallares & asoc. elabora una vivienda unifamiliar en barrio Barra de Carrasco, Montevideo, Uruguay.

El cliente solicita una vivienda con líneas simples, ambientes integrados, flexibilidad, adaptada a normativa de terrenos con retiros.

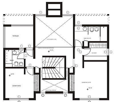
Se desarrolla en dos plantas, planta baja social e integrada en espacios alrededor de núcleo vertical de circulación.

En planta alta se distribuyen dos suites separadas por puente que balconea a doble altura de espacio de living.

El área social se distribuye unificadamente en "U" alrededor del prisma vertical de la escalera, conformando una serie de espacios sociales integrados en sucesión: despacho, living, comedor y cocina con barra.

El sector de la chimenea del living se encuentra centrada en el contrafrente de la vivienda, y se corresponde en el exterior con el parrillero, con lo cual no se anula las vistas hacia el jardín y permite tener un espacio de barbacoa techado eventualmente integrado con el espacio social interior, del comedor y cocina.

La construcción es de tipo tradicional, a cargo de la empresa Eversur SA, se hizo cimentación especial para terreno fácilmente inundable como lo son los de la zona: se levantó sustancialmente el nivel cero de la vivienda y se hizo una cimentación de tipo pilar y patín ciclópeo con vigas o riostras en te.

Se hizo una impermeabilización homogénea y continua de toda la base, los muros dobles con cámara y aislamiento térmico de espuma de poliestireno expandido.

La terminación exterior es de revoque y pintura impermeabilizante. La terminación interior, revoques finos y/o enduídos y pintura.

La vivienda posee un estudio de asoleamiento de dormitorios (al Noreste, en fachada principal) y de detalles constructivos de terminaciones como el mármol juparaná alborada de la mesada de la cocina o los ladrillos picados y cepillados, a la vista, sobre la chimenea en doble altura que de noche se ilumina con un haz rasante.

Se hizo hincapié asimismo en el acondicionamiento lumínico a traves de luminarias de haces concentrados, tanto para el interior como exterior.

En cuanto al acondicionamiento térmico, la vivienda cuenta con una caldereta y un anillo de agua caliente que abastece todas las tomas sanitarias, así como la losa radiante por agua caliente también.

Se complementa con aberturas en aluminio anodizado gris, con vidrios dobles con cámara.

Los pavimentos en planta baja exteriores son de cemento alisado, y en interiores cerámicos de 40x40.

La escalera está revestida totalmente en madera de lapacho, y el área de dormitorio en suite con vestidor principal en moquette. El dormitorio del niño de la casa, en piso flotante de madera.

En planta alta existe una terraza que permite en un futuro, una ampliación a otro dormitorio.

La carpintería de madera, en todos los casos (placards, aberturas) se realizó en cedro terminación lustrado. Las pérgolas exteriores, en lapacho, y los muebles de cocina, en placas de enchapado melamínico cedro.

Importante diseño de puerta de acceso exterior principal en lapacho lustrado a mano, continuado con un paño superior en igual despiezo, aplicado sobre el muro y flanqueado por aberturas de vidrio de doble altura.

Se duplica en el contrafrente de la vivienda con el diseño de las ventanas de doble altura del living entre ellas, la chimenea continuada hasta el cielorraso con un paño de ladrillos a la vista picoteados y cepillados con iluminación rasante por la noche.

La carpintería de hierro es en rejas de aberturas de toda la casa, más la reja y portón corredizo frontal y una puerta doble de acceso, con diseño de líneas horizontales.


Imágenes
[1] Vista frente (1)
[2] Detalle frente
[3] Puerta acceso
[4] Vista contrafrente
[5] Detalle pérgola contrafrente
[6] Chimenea living doble altura
[7] Detalle chimenea
[8] Puente hacia doble altura living y detalle escalera
[9] Vista cocina abierta
[10] Detalle baño
[11] Vista living y comedor
[12] Vista frente (2)


Planos

[1] Planta baja
[2] Planta alta

Realice click sobre los planos para ampliarlos

Ver planos y datos de contacto al pie de página.


Acerca del proyectista
Arq. Gabriela Pallares

Graduada como arquitecta en 1999 por la Facultad de Arquitectura de la Universidad de la República (Montevideo, Uruguay), Gabriela Pallares es titular del estudio de arquitectura e interiorismo Gabriela Pallares & asoc.

Desarrolló su profesión en forma independiente desde 1992 y asociada en obras desde 1996 al 2000, con Arq. Gustavo Bardavid.

En la actualidad el estudio se dedica a la realización de proyectos, asesoramiento, estudios de viabilidades, de obras, comerciales y residenciales administración integral, equipamiento y decoración posterior.

En la última década, han realizado numerosas instalaciones comerciales y reformas de viviendas.

Para obtener mayor información del trabajo realizado por el estudio visite el sitio gabrielapallares.com

 
Curso ArchViz avanzada con Cinema 4D y Corona Renderer
 
Si usted es profesional, este es su espacio para publicar su obra o proyecto (en forma gratuita). Para más información visitar la sección contacto: click aquí.
   
   

Noticias
informes especiales
bienal de arquitectura BA11
bienal de arquitectura BA09
publicaciones

Artículos
notas y artículos de interés
arquitectura legal
diseño de iluminación
software de arquitectura y diseño

Recursos
curso de decoracion (gratis/online)
archivo temático
descargas externas
curso de croquis (gratis/online)

Precios y costos
precios de materiales, indices y
costos m2 de construcción

Proyecto
obras construidas
proyectos para concursos
proyectos de estudiantes
arquitectos destacados
obras destacadas

Diseño
diseño industrial y mobiliario
diseño interior y decoración
Casa FOA 2009
Casa FOA 2010
Casa FOA 2011
Casa FOA 2012
Casa FOA 2013
Casa FOA 2014
Estilo Pilar 2010
Estilo Pilar 2012

Construcción
materiales y tecnologías
novedades de empresas
sector inmobiliario

Agenda
cursos y seminarios
congresos y bienales
charlas y eventos
exposiciones y muestras
concursos

Facultad
becas y subsidios
posgrados y maestrías
donde estudiar

Varios
ofertas laborales arquitectura, diseño y construccion
suscripcion newsletter (gratis)
redes sociales
publicidad

Arquimaster en Facebook
Arquimaster en Twitter
Arquimaster en LinkedIn
Arquimaster en Pinterest