Arquimaster - Medio digital de arquitectura, diseño y construccion Estas visitando la version anterior,
para ver la version actual realiza click aca

 

     
       
 
Climanet - Doble Vidrio Hermetico DVH
Matyser - Materiales y servicios para la construccion
Cursos de arquitectura y diseño de espacios
Anclaflex
Curso Introducción a Revit: Modela tus proyectos arquitectonicos
Bara
Proyecto Colegio de Arquitectos de Tandil (CAPBA 8) - Moirë arqs. (mención especial en Concurso)
Curso Visualización arquitectónica expresiva de exteriores
 

Ficha técnica
Nombre: Sede Delegacion Tandil CAPBA Distrito VIII
Ubicación: Tandil, Pcia. de Buenos Aires
Equipo: Arq. Mariel Cámara, Arq. Ezequiel Muñoz, Arq. Gustavo Aranguren, Arq. Daniel Brucnera
Año: 2012
Superficie cubierta aprox: 180 m2
Premio: Mencion Especial
Concurso: Concurso Distrital de Anteproyectos para la refuncionalizacion y ampliacion de la Sede Delegacion Tandil CAPBA Distrito VIII

Contacto
http://www.moirearqs.com.ar
moirearqs(arroba)gmail.com

Ver planos del proyecto

El proyecto de Moirë arqs. obtuvo Mención Especial en el Concurso Distrital de Anteproyectos para la refuncionalizacion y ampliacion de la Sede Delegacion Tandil CAPBA Distrito VIII.


La ciudad registra un alto grado de obra en construcción, por ende m2 de obra nueva, y a raíz de este dato se ubica como una de las ciudades de mayor índice de crecimiento de la región.

Esto se debe a factores como, su posición estratégica en el centro de la Provincia de Buenos Aires, su producción intensiva, la metalmecánica y agropecuaria y la explosión turística, debido al enclave de la ciudad entre sierras que permite el desarrollo de distintos emprendimientos y actividades en relación al paisaje circundante, de manera que la ciudad y su entorno es un fuerte y atractivo estímulo a inversiones inmobiliarias, generando un ámbito propicio para el desarrollo de nuevos desafíos y proyección de futuro.

En este sentido la pregunta que nos surgió fue si deberíamos mantener la casa existente o proponer un edificio nuevo y moderno acorde a las expectativas antes mencionadas. La respuesta fue el diseñar un edificio nuevo, esta decisión se tomo basándonos en las siguientes conclusiones:

a) La casa actual fue proyectada "hace 50 años atrás" con la lógica de una vivienda. Nuestra propuesta es proyectar un edificio "hacia 50 años adelante", con la lógica de edificio público.

b) La casa actual dificulta la posibilidad de flexibilidad y posible crecimiento. Nuestra propuesta promueve la flexibilidad de plantas y de usos, además contempla un ordenado crecimiento a un 3° nivel, si es necesario.

c) La casa actual, sobre línea municipal, no se diferencia del continuo de la cuadra. Nuestra propuesta hace énfasis en la idea de que es un edificio con características distintas a los demás con una fuerte impronta de edificio institucional.

Las ideas rectoras en las cuales se basa el diseño del edificio tienen como objetivo conseguir el mayor aprovechamiento del terreno y desarrollar las mejores estrategias para llevar adelante la idea propuesta:


Dialogo con el entorno

El Atrio

El patio exigido en las bases, por código, está ubicado en el frente del edificio, cumpliendo con una doble función, por un lado ventilar e iluminar y por otro es usado como "atrio", donde se produce el acceso, articulando el espacio urbano con el interior del edificio.

Esta operación define un retiro de la L.M. generando un "espacio intermedio" y a su vez una interrupción en la continuidad de la L.M. de la cuadra causando una particularidad en la misma donde se presenta el edificio institucional.

La Volumetria
Entendimos el programa como dos sectores bien definidos: uno destinado como "espacio de trabajo" en PB y uno destinado a "salón de usos múltiples" en PA.

Estos están contenidos en un "volumen principal" con una altura acorde a la actividad propuesta, sobre el cual se puede crecer con un nivel más, retirado de la L.M. para minimizar el impacto del mismo en el entorno.

Otro destinado como "servicios" en PA, estos están contenidos en un "volumen secundario" que vuela sobre la L.M. con una altura menor que se relaciona con las alturas de las edificaciones linderas.

El Edificio
Se plantea básicamente el concepto de "planta libre", la cual permite distintos tipos de armados funcionales en cualquier planta, haciendo énfasis en "la idea de flexibilidad", y en este sentido se adopto, acompañando la misma, un sistema de construcción simple, una estructura de H° A° y una envolvente de cerramiento la cual unifica en una imagen totalizadora el edificio.


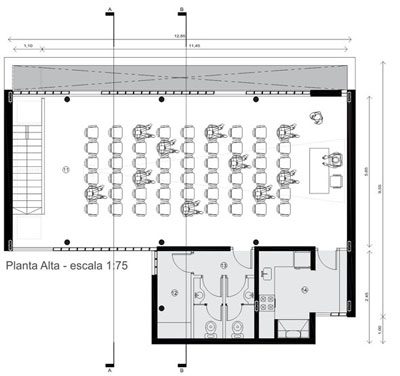
Planos
Realice click en los links para ver los planos.

[1] Planta baja
[2] Planta alta
[3] Corte AA
[4] Corte BB
[5] Vista


Imágenes
Realice click sobre las imágenes para ampliarlas.


Acerca de los proyectistas
Para más información sobre Moirë arqs. visite el sitio web moirearqs.com.ar

 
Curso Diseño arquitectónico de exteriores con V-Ray
 
 
Si usted es profesional, este es su espacio para publicar su obra o proyecto (en forma gratuita). Para más información visitar la sección contacto: click aquí.
   
   

Noticias
informes especiales
bienal de arquitectura BA11
bienal de arquitectura BA09
publicaciones

Artículos
notas y artículos de interés
arquitectura legal
diseño de iluminación
software de arquitectura y diseño

Recursos
curso de decoracion (gratis/online)
archivo temático
descargas externas
curso de croquis (gratis/online)

Precios y costos
precios de materiales, indices y
costos m2 de construcción

Proyecto
obras construidas
proyectos para concursos
proyectos de estudiantes
arquitectos destacados
obras destacadas

Diseño
diseño industrial y mobiliario
diseño interior y decoración
Casa FOA 2009
Casa FOA 2010
Casa FOA 2011
Casa FOA 2012
Casa FOA 2013
Casa FOA 2014
Estilo Pilar 2010
Estilo Pilar 2012

Construcción
materiales y tecnologías
novedades de empresas
sector inmobiliario

Agenda
cursos y seminarios
congresos y bienales
charlas y eventos
exposiciones y muestras
concursos

Facultad
becas y subsidios
posgrados y maestrías
donde estudiar

Varios
ofertas laborales arquitectura, diseño y construccion
suscripcion newsletter (gratis)
redes sociales
publicidad

Arquimaster en Facebook
Arquimaster en Twitter
Arquimaster en LinkedIn
Arquimaster en Pinterest