Arquimaster - Medio digital de arquitectura, diseño y construccion Estas visitando la version anterior,
para ver la version actual realiza click aca

 

     
       
 
Climanet - Doble Vidrio Hermetico DVH
Matyser - Materiales y servicios para la construccion
Cursos de arquitectura y diseño de espacios
Anclaflex
Curso Introducción a Revit: Modela tus proyectos arquitectonicos
Bara
Proyecto para Concurso Edificio 5 de la Universidad Autónoma de Manizales (Colombia) - Arq. Correa Vanegas y equipo
Curso Autodesk Revit para principiantes
 

Ficha técnica
Nombre: Proyecto para Concurso Edificio 5 de la Universidad Autónoma de Manizales
Ubicacion: Colombia
Director del proyecto: Arq. Gustavo Adolfo Correa Vanegas (Docente Arquitectura en Universidad Católica de Pereira, Colombia)
Colaboradores: Estudiantes de Arq. Felipe Martínez Vanegas, Maria Paula Montes Pardo, Sebastían Ching Rivera, Daniel Felipe Flórez Gil
Concurso: Concurso para el diseño del anteproyecto del edificio 5 según el plan maestro de ordenamiento físico de la Universidad Autónoma de Manizales
Año: 2012

Contacto
arqcorr@hotmail.com
http://www.facebook.com/Gustavo-Correa-Vanegas_arquitectos/...

Ver planos del proyecto

Proyecto participante del Concurso para el diseño del anteproyecto del edificio 5 según el plan maestro de ordenamiento físico de la Universidad Autónoma de Manizales.


De lo aereo a lo profundo

En respuesta a la solicitud del programa, a las determinantes del sitio y a las inquietudes surgidas por la actividad llevada a cabo en un edificio que se particulariza por quienes lo habitan y frecuentan asiduamente, se ha propuesto el entendimiento del límite como mediador entre lo colectivo e intimo, entre el debate y la reflexión, aspectos propios de un edificio que se destina para la enseñanza superior.

Este aparente acuerdo entra en tensión por la intensidad de los bordes que controlan la actividad, por el reconocimiento de la topografía que amplía la mirada y por el descubrimiento de espacios intermedios que dilatan o acentúan el recorrido. Es por ello que toda la atención se centra en establecer los bordes del edificio, dejándose en evidencia 3 cuestiones fundamentales: Contener/Ampliar, Enterrar/Flotar, Ocultar/Revelar.


Contener/Ampliar

[Convertir la fachada en un pliegue de la actividad de la plaza, el patio y la calle. Una continuidad entre el plano público exterior y las partes públicas del edificio. Para ello es necesario que ciertas plantas y pasillos aparezcan casi como un espacio exterior]

El reconocimiento de Manizales como una ciudad en estrecha relación con la geografía, ha permitido recurrir a un principio compositivo que valida tanto las condiciones del sitio como la actividad. Es así, que, el edificio 5 para la Universidad Autónoma de Manizales, se compone a partir de la definición de un patio, cuya misión es garantizar la concreción espacial, al tiempo que establece un espacio representativo y simbólico necesario en un ámbito académico.

Este patio se ajusta a los linderos propuestos dentro del área de intervención y permite que la volumetría general se configure en el solar a partir de la concreción de cuatro prismas. Dos de ellos con marcado acento sobre la horizontal, definiendo una escala consecuente con un entorno doméstico cercano. El otro con un desarrollo en altura, proporcionando al conjunto el carácter que le corresponde a un edificio educativo que entra en diálogo con la Antigua Estación. El último, se compone como extensión del anterior, generando un borde grueso que le resta importancia al edificio que no hace parte del campus y subraya la continuidad de una calle interna que se dispone a lo largo del solar. Es así, que la secuencia de actividades queda definida por la concatenación de espacios colectivos que gradualmente encuadran el paisaje.

El patio propuesto se integra al sistema de espacios públicos previstos en el Plan Maestro del campus y reorienta en buena medida al mismo, en tanto, dentro del mismo Plan Maestro se privilegia sólo la presencia de los edificios. Si bien, existe una superficie considerable en espacios libres, este está al servicio de un sistema de movilidad, que hace totalmente permeable al conjunto de edificios propuestos y reducen su representatividad hacia los linderos del Campus. En este sentido, el patio configura de manera definida la disposición de los volúmenes en un entorno de espacios muy abiertos y acota sobre la carrera 19 A, un lugar de entrada común para el conjunto de bloques que se proponen en las distintas fases. Este lugar de entrada actúa como un vestíbulo entre la plaza, el patio y la calle, pasando a través de él por la ausencia de cualquier contenido programático. Por el contrario, sobre el costado interno del solar y de la calle 44 se dispone parte del programa que tiene que ver con los anfiteatros y el área de registro académico para garantizar la presencia continua de estudiantes y el uso activo del patio como escenario para el debate.

El vestíbulo de la planta inferior funciona como espacio colectivo y desde allí se controla el ingreso a las plantas superiores, disponiéndose sobre los costados más cortos tres elementos para la circulación vertical. Ascensores enfrentados a la rampa y una escalera que tiene control sobre la totalidad del espacio. La escalera cumple un papel relevante dentro del vestíbulo puesto que se libera de cualquier cerramiento, y por su desarrollo se alza como espacio adecuado para dirigirse a un colectivo desde un punto elevado. Por otra parte, este vestíbulo contiene o aumenta la proyección visual que se tiene de la plaza, el patio y la calle. Con esta misma intención se dispone en las plantas superiores una serie de estancias que privilegian el encuentro de manera constante aumentando la relación hacia el exterior.

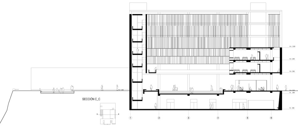
La definición espacial y volumétrica del patio y vestíbulo, tiene como objetivo otorgar unidad al conjunto cuando se realice la segunda fase intervención. Para llevar a cabo esta fase de intervención se propone aumentar una planta en la totalidad del edificio, y ocupar en las restantes el nuevo programa, manteniendo una lectura estable y sólida en la construcción sin disminuir la calidad espacial de la propuesta inicial. Este diálogo estrecho entre las dos fases del proyecto también se hace evidente en la composición de las fachadas, entendiéndose como pliegues de la actividad de la plaza, el patio y la calle. Para ello se aumenta la profundidad del borde y se genera vacios entre los tres primeros niveles que cualifican espacialmente tanto las estancias y recorridos como las actividades administrativas y académicas. En estos bordes se dispone una celosía que se utiliza como mecanismo de control térmico, lumínico y de ventilación, al tiempo que le otorga al edificio unidad y austeridad. Estas celosías se modulan atendiendo a la orientación.


Enterrar/Flotar

[Evocar en este lugar interior y estático, esa otra espacialidad abierta, diáfana y cambiante de la luz solar]

La propuesta se construye a partir del conjunto de circunstancias que caracterizan el solar. Entre ellas, la condición fronteriza del emplazamiento, la presencia indirecta de la antigua Estación del Ferrocarril y la proximidad física con la ciudad, elementos que revelan la sustancia del lugar. Por tanto se asume como tema central el espacio abierto, representado en el patio, capaz de convertirse en lugar para el encuentro e intercambio de los estudiantes con los habitantes de la ciudad, de establecer compromisos entre el tejido urbano y el tejido del Campus. Es así, que se destina un piso inferior para resolver el programa que ocupa mayor superficie, el aula múltiple y las aulas de informática.

El patio organiza y anuncia cuatro volúmenes que se suspenden para liberar buena parte de la primera planta. A cada prisma le corresponde revelar las condiciones del lugar. El de mayor tamaño asume el carácter representativo dentro del Campus, y se presenta como una caja de concreto blanco cerrada en los costados más cortos conteniendo el espacio. Las superficies más abiertas se regulan por medio de una celosía en madera que deja filtrar la luz, al tiempo que genera dos tipos de sombra. Una externa con incidencia directa al patio y la calle. La otra interna, que activa la mirada entre los diferentes espacios. Este volumen contrasta con la horizontalidad de dos prismas que conforman el patio, ambos con una geometría intrínseca al emplazamiento, acentuada por su condición muraria.

Los vínculos hacia la calle sólo se hacen efectivos por un corte realizado en la losa superior, que recorre la totalidad de la planta llenando de luz los pasillos e ingresos a las aulas. Este volumen se concibe como extensión del primero, dando la lectura de un solo cuerpo que flota. Al prisma que se orienta hacia el interior del solar se le reduce su condición de frontera, en tanto se le realizan una serie de perforaciones que revelan parte de lo que ocurre en el interior. El volumen que contiene la rampa refuerza el recorrido a lo largo del campus conectando física y visualmente el conjunto. Se prestó mayor atención a lo que ocurre por dentro que a su soporte físico. Esta premisa llevó a emplear la madera como material de cerramiento que se altera por las condiciones del clima, evidenciando una mutación cromática hacia el patio y una penumbra que refuerza el carácter íntimo, previo a los debates en colectivo. Sólo dos perforaciones permiten establecer vínculos con el exterior, un corte superior y otro inferior.


Ocultar/Revelar

[Descubrir relaciones que no son necesariamente visibles entre los espacios a partir de la detención de singularidades]

La Escuela, como "institución del hombre" al decir de Louis Kahn, es el "lugar" cívico del Conocimiento debiendo por ello componerse sus espacios y formas en vínculo estrecho con la ciudad. Sus espacios son plenas referencias a lo urbano, puntos de encuentro. Para validar lo anterior, se decide concentrar en un único espacio a cielo abierto la cotidianidad de la ciudad con la singularidad de los espacios de conocimiento.

"En el patio todo inicia, pero también todo acaba". Un hundimiento establece cierto grado de solidaridad entre lo íntimo y colectivo. Los recorridos perimetrales están en contacto permanente con la calle. Las escaleras marcan acentos entre lo externo e interno, se separan y cortan el volumen. En todas las plantas se conciben espacios para estar sentados y escuchar. Sentido último de la escuela. Pero también, para dialogar. Ventanas que admiten estar de pie, estar entre ellas.

La luz y la geografía de una ciudad como Manizales deben ser atrapadas en estancias, que se alternen entre lo cerrado y abierto. Por eso algunos espacios no hacen evidente el paisaje en las ventanas, se prefiere orientar la mirada al horizonte. Las losas se perforan en los límites con el muro, revelando así aspectos del propio material que sólo la luz puede alcanzar.

La propuesta sólo busca que la ciudad esté siempre presente.


Planos
Realice click en los links para ver los planos.

[1] Planteamiento urbano
[2] Implantacion
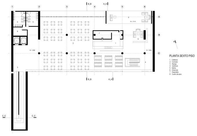
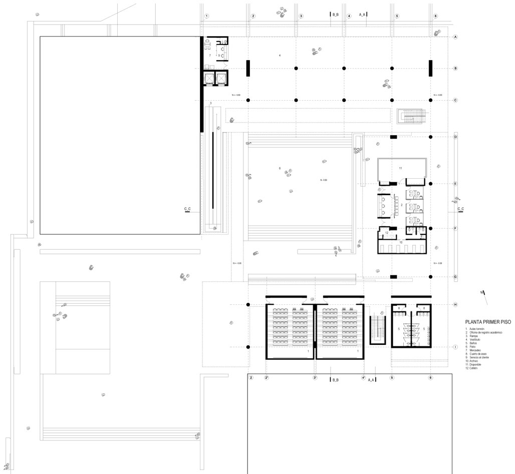
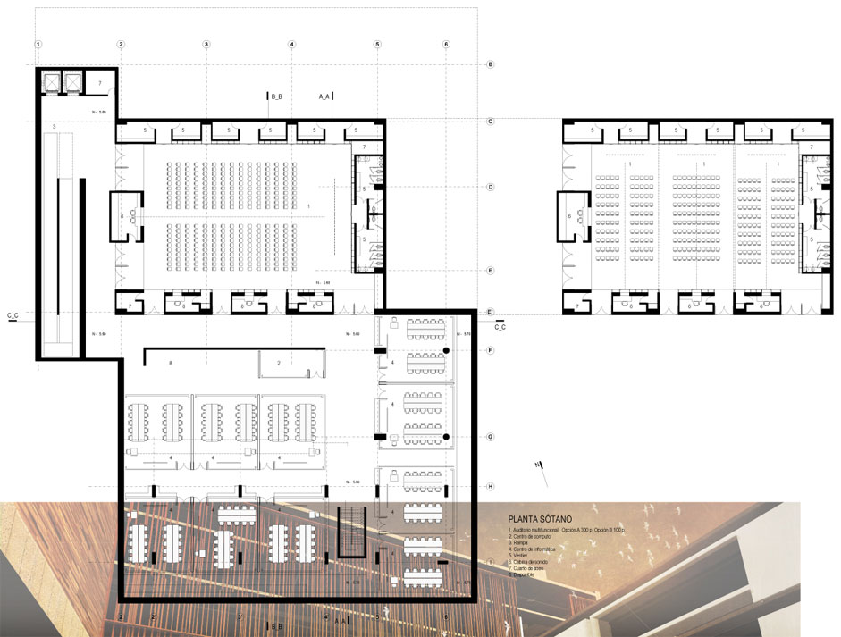
[3] Planta sotano
[4] Planta 1
[5] Planta 2
[6] Planta 3
[7] Planta 4
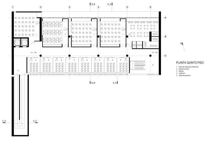
[8] Planta 5
[9] Planta 6
[10] Corte A
[11] Corte B
[12] Corte C
[13] Vista 1
[14] Vista 2
[15] Vista 3
[16] Vista 4


Imágenes
Realice click sobre las imágenes para ampliarlas.

 
Curso Diseño arquitectónico de exteriores con V-Ray
 
 
Si usted es profesional, este es su espacio para publicar su obra o proyecto (en forma gratuita). Para más información visitar la sección contacto: click aquí.
   
   

Noticias
informes especiales
bienal de arquitectura BA11
bienal de arquitectura BA09
publicaciones

Artículos
notas y artículos de interés
arquitectura legal
diseño de iluminación
software de arquitectura y diseño

Recursos
curso de decoracion (gratis/online)
archivo temático
descargas externas
curso de croquis (gratis/online)

Precios y costos
precios de materiales, indices y
costos m2 de construcción

Proyecto
obras construidas
proyectos para concursos
proyectos de estudiantes
arquitectos destacados
obras destacadas

Diseño
diseño industrial y mobiliario
diseño interior y decoración
Casa FOA 2009
Casa FOA 2010
Casa FOA 2011
Casa FOA 2012
Casa FOA 2013
Casa FOA 2014
Estilo Pilar 2010
Estilo Pilar 2012

Construcción
materiales y tecnologías
novedades de empresas
sector inmobiliario

Agenda
cursos y seminarios
congresos y bienales
charlas y eventos
exposiciones y muestras
concursos

Facultad
becas y subsidios
posgrados y maestrías
donde estudiar

Varios
ofertas laborales arquitectura, diseño y construccion
suscripcion newsletter (gratis)
redes sociales
publicidad

Arquimaster en Facebook
Arquimaster en Twitter
Arquimaster en LinkedIn
Arquimaster en Pinterest