Arquimaster - Medio digital de arquitectura, diseño y construccion Estas visitando la version anterior,
para ver la version actual realiza click aca

 

     
       
 
Climanet - Doble Vidrio Hermetico DVH
Matyser - Materiales y servicios para la construccion
Cursos de arquitectura y diseño de espacios
Anclaflex
Curso Introducción a Revit: Modela tus proyectos arquitectonicos
Bara
Concurso de Arquitectura San Isidro 2007: Proyecto Edificio de Apartamentos (Lima, Perú) - Arq. María Lucía Rivera Fernández
Curso Diseño arquitectónico de exteriores con V-Ray
 

Ficha técnica
Nombre: Edificio de Apartamentos
Autor: Arq. María Lucía Rivera Fernández
Ubicación: San Isidro, Lima, Perú
Concurso: Concurso privado de arquitectura San Isidro 2007, organizado por Arquitectum para Arquía, una empresa inmobiliaria interesada en realizar concursos de anteproyectos

Contacto
http://www.arquitectum.com

Agradecimientos
Las imágenes y textos publicados han sido enviados por Ana María Castro para Arquitectum

El proyecto de la Arq. María Lucía Rivera Fernández ha resultado ganador del Concurso de Arquitectura San Isidro 2007.

El objetivo del concurso fue la búsqueda de la propuesta arquitectónica más original, creativa y contemporánea para una edificio de lofts a ubicarse en una esquina privilegiada en el distrito de San Isidro, en Lima, Perú.

El edificio de departamentos a proyectarse intenta ser un nuevo modelo de prototipo para una de las zonas residenciales más importante de Lima.

Es decir que este proyecto deberá aportar a la imagen urbana de San Isidro, al mismo tiempo que enfatiza en el carácter contemporáneo de un edificio del siglo XXI destinado no sólo para el distrito sino para la Aldea Global.

Es por esto que el proyecto deberá ser capaz de reflejar no sólo las tendencias actuales en arquitectura contemporánea sino también sentar un precedente en lo que a vivienda unifamiliar se refiere.

Para tal efecto el edificio de departamentos -de una inversión del orden de tres millones de de dólares- contará con un programa básico de 28 lofts que ocuparán un área construida de 5,000 m2 dentro de una extensión de terreno de 670 m2.

Proyecto ganador
El edificio, en su concepción general, presenta la imagen de un edificio moderno y contemporáneo aportando significativo valor al entorno desde su aspecto formal, en su lenguaje arquitectónico, en el uso de los materiales y tratamiento de conjunto, distinguiéndose por ello del contexto en el que se ubica.

Además de la imagen contemporánea, se destaca su carácter de transparencia, manteniendo el énfasis en la visual que tendrá cada uno de los "lofts" hacia la Huaca Hallamarca.

Se incorporó en la propuesta, la opción de "lofts" duplex, además de los flats inicialmente propuestos, de manera tal que pueda contarse con diferentes opciones de departamentos.

En ambos casos propuestos, tanto flats como duplex, el tratamiento espacial y de materiales refleja siempre la imagen de modernidad.

La mayoría de los departamentos tienen una terraza a la que se accede desde las salas.

En el caso de los duplex, se prefirió ganar dicho espacio en área interior incorporando dobles alturas en cada uno de ellos, lo que los enriquece espacialmente.

Todos los frentes con cristales, tienen en su interior barandas con marcos de acero inoxidable y cables trenzados en el mismo material, de manera tal que desde el interior de cada "loft", nada impida la libre visión hacia el exterior.

El mismo tratamiento se mantiene en la mayoría de las terrazas.

Se incluyeron en algunos "lofts" jardineras exteriores, de manera que se incorpore la naturaleza a la edificación.

Se consideró que un aspecto de suma importancia, ligado a la imagen del edificio, es el lobby de ingreso, el cual también refleja la imagen de un edificio contemporáneo y moderno, tanto por sus proporciones, tratamiento espacial y uso de materiales, además del sistema de iluminación propuesto.

Cumpliendo con la totalidad del programa solicitado, logramos además un lobby de doble altura, lo que le da mayor importancia al ingreso y enriquece el tratamiento espacial en esquina, marcando una clara diferenciación con el contexto en el que se encuentra.

Un espejo de agua creado en el exterior, ingresa hacia al lobby.

También la vegetación está presente en este elemento, de manera tal de integrar siempre la naturaleza a la edificación.

La terraza en el último piso, mantiene los espacios necesario de uso común para los propietarios (deck techado, terraza sin techar, área para BBQ, área de servicios, áreas verdes, jardines y jardineras), y como remate orientado hacia la Huaca, la piscina elevada circundada por un deck sin techar y jardines en el mismo nivel, de manera tal que la vista y el paisaje sean apreciados desde toda esta área.

En cuanto al aspecto estructural, se ha hecho un estudio sísmico preliminar con el asesor estructural, con el cual se confirma que se están controlando los desplazamientos establecidos en la norma sismo resistente E 030-2003.

El empleo de los materiales en el tratamiento propuesto para el edificio en su conjunto, mantiene su característica de materiales en su estado natural, es decir, el concreto expuesto, piedras y mármoles naturales, estructuras de acero inoxidable, aluminio, cristales translúcidos, pintura en color blanco, etc. incorporando vegetación natural en las diferentes plantas, así como vegetación natural que circunda la edificación en el primer piso.

El sistema de iluminación propuesto abarca el tratamiento exterior.

Por ello de noche, el edificio también marcará un hito dentro de su contexto.


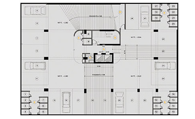
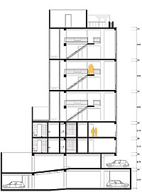
Planos
[1] Planta estacionamientos
[2] Planta 1 (PB)
[3] Planta 2 (1º piso)
[4] Planta 3 (2º piso)
[5] Planta 4 (3º piso)
[6] Planta 5 (4º, 6º, 8º piso)
[7] Planta 6 (5º, 7º piso)
[8] Planta azotea
[9] Corte longitudinal A-A'
[10] Corte transversal B-B'
[11] Corte transversal C-C'

Realice click sobre los planos para ampliarlos

Ver ficha técnica y datos de contacto al pie de página


Para más información sobre el concurso, el proyecto ganador, los proyectos finalistas, las menciones honrosas y otros proyectos participantes visitar arquitectum.com

 
Curso ArchViz avanzada con Cinema 4D y Corona Renderer
 
Si usted es profesional, este es su espacio para publicar su obra o proyecto (en forma gratuita). Para más información visitar la sección contacto: click aquí.
   
   

Noticias
informes especiales
bienal de arquitectura BA11
bienal de arquitectura BA09
publicaciones

Artículos
notas y artículos de interés
arquitectura legal
diseño de iluminación
software de arquitectura y diseño

Recursos
curso de decoracion (gratis/online)
archivo temático
descargas externas
curso de croquis (gratis/online)

Precios y costos
precios de materiales, indices y
costos m2 de construcción

Proyecto
obras construidas
proyectos para concursos
proyectos de estudiantes
arquitectos destacados
obras destacadas

Diseño
diseño industrial y mobiliario
diseño interior y decoración
Casa FOA 2009
Casa FOA 2010
Casa FOA 2011
Casa FOA 2012
Casa FOA 2013
Casa FOA 2014
Estilo Pilar 2010
Estilo Pilar 2012

Construcción
materiales y tecnologías
novedades de empresas
sector inmobiliario

Agenda
cursos y seminarios
congresos y bienales
charlas y eventos
exposiciones y muestras
concursos

Facultad
becas y subsidios
posgrados y maestrías
donde estudiar

Varios
ofertas laborales arquitectura, diseño y construccion
suscripcion newsletter (gratis)
redes sociales
publicidad

Arquimaster en Facebook
Arquimaster en Twitter
Arquimaster en LinkedIn
Arquimaster en Pinterest