Arquimaster - Medio digital de arquitectura, diseño y construccion Estas visitando la version anterior,
para ver la version actual realiza click aca

 

     
       
 
Climanet - Doble Vidrio Hermetico DVH
Matyser - Materiales y servicios para la construccion
Cursos de arquitectura y diseño de espacios
Anclaflex
Curso Introducción a Revit: Modela tus proyectos arquitectonicos
Bara
Proyecto 1º Premio en Concurso Distrital de Anteproyectos para la Nueva Delegacion Quilmes del CAPBA 2 - Arq. Álvaro Javier Míguez y Arq. Leonardo Vega
Curso Postproducción de planimetría arquitectónica en Photoshop
 

Ficha técnica
Proyecto: Nueva Delegacion Quilmes del CAPBA 2
Ubicacion: Sarmiento 276, Quilmes, Pcia. Buenos Aires, Argentina
Autores: Arq. Álvaro Javier Míguez y Arq. Leonardo Vega
Concurso: Concurso Distrital de Anteproyectos para la Nueva Delegacion Quilmes del CAPBA 2
Premio: 1º Premio
Superficie cubierta total: 400 m2
Año: 2013

Contacto
alvaromiguez@yahoo.com.ar

Ver planos del proyecto

El proyecto obtuvo el 1º Premio en el Concurso Distrital de Anteproyectos para la Nueva Delegacion Quilmes del CAPBA 2.

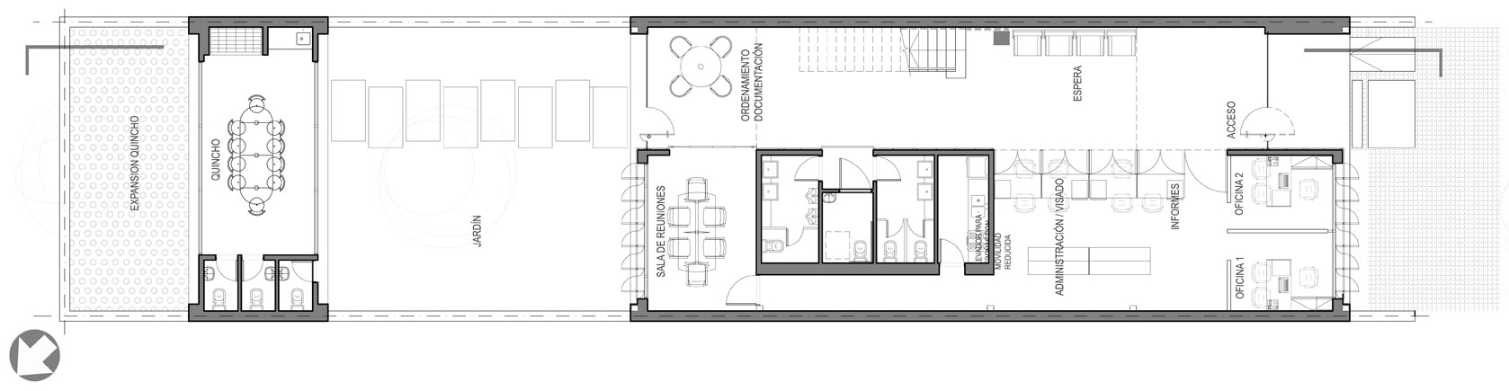
El proyecto plantea la realización de la nueva sede de la delegación del Capba 2 en la localidad de Quilmes bajo las premisas de una intervención que construya una fuerte imagen institucional y una renovada espacialidad, pero con una eficiente utilización de recursos.

Formalmente el edificio se presenta como una gran caja blanca hueca con otra interna ciega de expresión madera.

El acceso se resuelve a través de un espacio de transición semicubierto.

Pasado el ingreso, el edificio se plantea como dos grandes áreas, una de recepción, circulatoria e institucional, en doble altura, y otra dedicada a las actividades propiamente dichas, (administración, visado, servicios y aulas), acotadas a las funciones, tanto en sus límites verticales como en la altura de sus cielorrasos.

Las áreas de servicio quedaron circunscriptas a la única caja muraria existente y cerrada que posee toda la obra.

La escalera de un tramo cose ambos niveles y ofrece una verdadera promenade vertical. La misma está destacada espacialmente a través de una apertura del cielorraso y un ventanal de cierre que proporciona vista e iluminación.

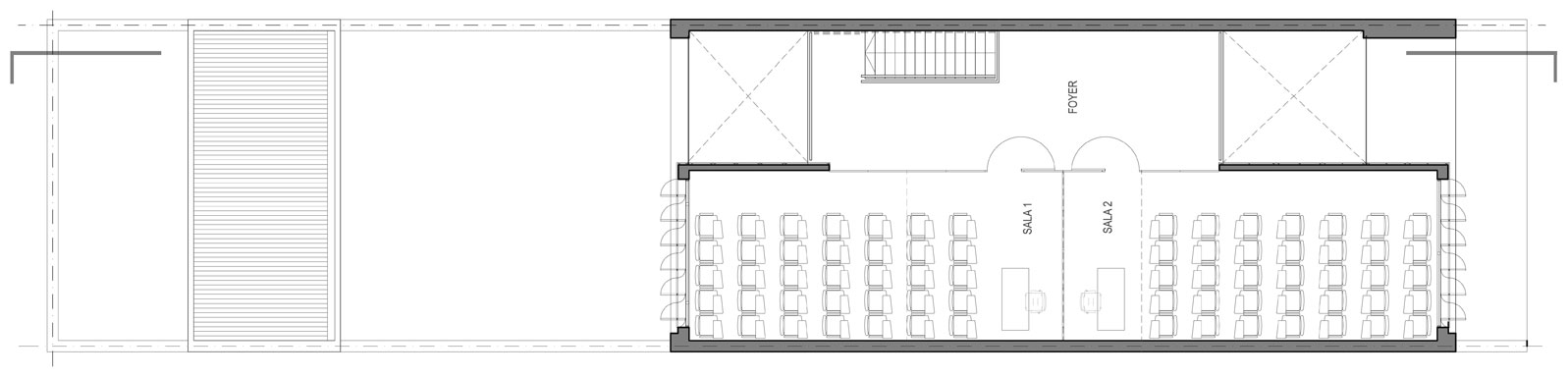
La clara división en dos grandes sectores permite el cierre del área administrativa o la apertura de la sala de reuniones para otros usos como espacios expositivos o de conferencias.

Las salas de planta alta también posibilitan su uso con diferentes envergaduras, y su apertura total para grandes actos o muestras.

Frente y contrafrente se resolvieron con grandes paños de carpintería y su control lumínico por medio de paneles de expresión madera.

Estos pivotan sobre ejes que permiten distintos grados de apertura o su cierre total, en relación a las actividades del edificio.

Para el quincho se recurre a los mismos valores formales del edificio. Se lo sitúa a una distancia de 3.50 del fondo para mantener la palmera y para generar además una expansión o patio con capacidad para comer afuera o realizar reuniones sobre un piso que no sea totalmente vegetal.

Los saltos de nivel se resolvieron con rampas y con un elevador para personas con capacidades motrices reducidas en la escalera. Todo el edificio está pensado para ofrecer una obra de bajo mantenimiento.

Si bien las condiciones del proyecto permiten una restricción de la incidencia de los rayos solares a través de los parasoles, y de un efectivo movimiento del aire a través de la ventilación cruzada, se previó climatización artificial.

La misma se soluciona mediante equipos splits independientes colocados sobre la medianera izquierda en ambos niveles y con los equipos exteriores en la misma medianera en el sector del muro de carga que se desarrolla entre la cubierta de chapa y el final de dichos muros, para evitar su desagradable visualización.

En los aspectos contructivos, se ponderó mantener la losa existente sin demoler, con el doble objetivo de no provocar excesiva demolición, con su concurrente retiro y acarreo de escombros, y de construir la nueva sede manteniendo las funciones administrativas del edificio.

Lo primero fue desdibujar los límites propios de la vivienda, a traves del adintelamiento de una serie de muros.

Con el propósito explicado de mantener sin demoler la losa existente se mantuvieron ciertos muros donde se alojaron todas las áreas húmedas.

Se optó por colocar la zona de acceso por donde hoy está el área de visado para poder construir toda la sede, y por último desarmar ese sector, sin necesidad de armar losa en esa zona.

La estructura independiente (columnas y vigas de sostén de las losas y medianeras) se pensó a través de perfilería de acero; la elevación de las medianeras en mampostería, y la tabiquería interior en seco.

El techo se resolvió a dos aguas, una hacia el frente y otra hacia el contrafrente, a modo de dividir el caudal de agua y tener más diámetro de evacuación (dos desagües de 110 por frente y dos por contrafrente) y para que la elevación del mismo debido a la pendiente (9%) no obligara a la realización de un volumen de excesiva altura.

La estructura se resolvió con perfiles de chapa galvanizada que cubren la totalidad de la luz del terreno, y por encima las aislaciones térmicas, acústicas y la chapa sinusoidal.

Se logra con la continuación de un sector de uno de los faldones de techo, una claraboya que da luz y destaca el motivo de la escalera, la cual se pensó en estructura metálica y con escalones en madera.

Las nuevas losas, apoyadas en la estructura independiente de acero se resolvieron mediante losetas de hormigón pretensado tipo shap 30, manejables en obra por la mano de operarios y sin necesidad de capa de compresión, sólo tomado de juntas.

Los pisos se pensaron en microalisado que puedan cubrir tanto antiguas superficies como las nuevas losas.

Los carpinterías están resueltas en perfilería de aluminio anodizado natural.

Los parasoles se resolvieron con placas de material fenólico visto, resistentes a la intemperie y con una relación estética-costo aceptable.

En el patio del quincho se colocó una cisterna enterrada con una bomba de presión tipo Rowa que ofrece la posibilidad del depósito de agua y de tener activo el sistema de agua corriente en los meses de verano cuando la presión en el área disminuye.

Junto a este, se colocó un reservorio de agua de lluvia abastecido por los desagües del patio y del techo del quincho, para ser usado como agua de riego y lavado de veredas.

El proyecto acepta también la colocación de paneles solares en el nivel de la cubierta que posibiliten energía para calentar el agua de uso en la sede.


Planos
Realice click en los links para ver los planos.

[1] Planta baja
[2] Planta alta
[3] Corte longitudinal
[4] Vista frente
[5] Detalle constructivo


Imágenes

Realice click sobre las imágenes para ampliarlas.

 
Curso Diseño arquitectónico de exteriores con V-Ray
 
 
Si usted es profesional, este es su espacio para publicar su obra o proyecto (en forma gratuita). Para más información visitar la sección contacto: click aquí.
   
   

Noticias
informes especiales
bienal de arquitectura BA11
bienal de arquitectura BA09
publicaciones

Artículos
notas y artículos de interés
arquitectura legal
diseño de iluminación
software de arquitectura y diseño

Recursos
curso de decoracion (gratis/online)
archivo temático
descargas externas
curso de croquis (gratis/online)

Precios y costos
precios de materiales, indices y
costos m2 de construcción

Proyecto
obras construidas
proyectos para concursos
proyectos de estudiantes
arquitectos destacados
obras destacadas

Diseño
diseño industrial y mobiliario
diseño interior y decoración
Casa FOA 2009
Casa FOA 2010
Casa FOA 2011
Casa FOA 2012
Casa FOA 2013
Casa FOA 2014
Estilo Pilar 2010
Estilo Pilar 2012

Construcción
materiales y tecnologías
novedades de empresas
sector inmobiliario

Agenda
cursos y seminarios
congresos y bienales
charlas y eventos
exposiciones y muestras
concursos

Facultad
becas y subsidios
posgrados y maestrías
donde estudiar

Varios
ofertas laborales arquitectura, diseño y construccion
suscripcion newsletter (gratis)
redes sociales
publicidad

Arquimaster en Facebook
Arquimaster en Twitter
Arquimaster en LinkedIn
Arquimaster en Pinterest