Arquimaster - Medio digital de arquitectura, diseño y construccion Estas visitando la version anterior,
para ver la version actual realiza click aca

 

     
       
 
Climanet - Doble Vidrio Hermetico DVH
Matyser - Materiales y servicios para la construccion
Cursos de arquitectura y diseño de espacios
Anclaflex
Curso Introducción a Revit: Modela tus proyectos arquitectonicos
Bara
Guardería municipal "Els Daus" (Barcelona) - AIA Salazar-Navarro
Curso Diseño y modelado arquitectónico 3D con Revit
 

Ficha técnica
Nombre: Guardería municipal "Els Daus" en Cardedeu
Arquitectos: AIA Salazar-Navarro arquitectos
Localizacion: c/Puig i Cadafalch, c/Doctor Fleming. Barri La Granada, Cardedeu, Barcelona
Superficie construida: 670 m2
Promotor: Ayuntamiento de Cardedeu
Constructora: Barbany Edificación y obras públicas
Estructuras: BIS arquitectes
Instalaciones: Instal·lacions Arquitectòniques
Arquitecto técnico: Xavier Esteve, arq. técnico
Dirección de obra: AIA Salazar-Navarro arquitectos

Contacto
Web: http://www.aia.cat

Agradecimientos
Las imágenes y textos publicados han sido enviados por Arq. Enrico Gaggia

Concepción arquitectonica "Els Daus"

Finalizadas las obras del proyecto ganador del concurso de ideas de la nueva guardería municipal en Cardedeu promocionado por el ayuntamiento de la misma localidad.

Los arquitectos AIA Salazar-Navarro plantearon el proyecto como un juego de volúmenes arquitectónicos dispuestos aparentemente al azar sobre una tabla de juego, como una metáfora del significado propio del edificio.

Es un proyecto construído con altos conceptos de sostenibilidad que tiene como elemento principal la fachada ventilada de los cubos que está realizada con paneles de caucho reciclado, siendo una fachada completamente elástica y al mismo tiempo blanda.

El objetivo más importante a la hora de plantearnos este edificio, ha estado el analizar qué significa y qué importancia tiene una guardería como primer lugar donde los niños se relacionarán con otros niños y en un entorno que no es el de su casa.

En segundo lugar, analizar la tipología que el edificio debería tener, teniendo en cuenta los primeros puntos y evidentemente el emplazamiento escogido.

Por eso nos hemos planteado una edificación aislada donde el programa se desarrolla totalmente en planta baja.

Además, y aprovechando la existencia del jardín urbano que tenemos al lado, se ha provocado el acceso a la guardería desde él, con la posibilidad de utilizar los juegos infantiles y convertirlo en una gran sala de espera y lugar de relaciones sociales, tanto para los niños como para los padres a la hora de ir a recoger a los niños.

El objetivo es conseguir que los niños y niñas no se sientan cerrados en un espacio, es decir, mantener siempre la prioridad de espacios abiertos sin vallas aparentes, pero manteniendo la seguridad.

La posición de los módulos cúbicos que contienen las aulas de una manera aparentemente aleatoria, como si estuvieran diseminados por la parcela, nos provoca la aparición de espacios interiores que al estar comunicados con el exterior nos permiten su utilización como un gran patio exterior pero cubierto.

De esta manera, los niños disfrutan de un patio exterior al aire libre y de una gran sala comunicada con el exterior por dos lados, que se puede considerar un exterior cubierto para los días que la metereología no les permita salir a fuera.

Los cubos que contienen las aulas, dada su posición mantienen una estrecha relación entre el espacio exterior y el espacio central interior, que acoge la sala de psicomotricidad.

En este espacio interior, tal y como hemos destacado anteriormente mediante unas cortinas encontramos la sala de descanso de los maestros y la sala de psicomotricidad.

Estos espacios definidos perfectamente mediante estas cortinas y cambios en los materiales de pavimento, pueden incorporarse en el espacio central cuando las necesidades lo requieran.

Cada uno de estos cubos acoge una línea de escuela.

El más pequeño de dimensiones, acoge a los bebés de 0 a 1 año, en dos aulas que se pueden comunicar entre sí mediante una persiana enrollable de lamas que permitan mantener la intimidad entre las dos aulas o convertirlas en una grande.

Los otros dos cubos acogen respectivamente a los niños de 1 a 2 años y de 2 a 3 años.

Estos módulos gozan de visuales directas y acceso a los espacios exteriores e interiores controlados.

Estos espacios están pensados y dimensionados para el Juego y actividades relacionadas con el conocimiento y la imaginación, para la Vida Social y Afectiva, Sensorial y de Lenguaje y para la Psicomotricidad.

El módulo de administración se encuentra ubicado cerca del acceso, dónde encontramos administración y dirección, junto con la sala de profesores y la enfermería.

El módulo de servicios situado justo al lado del módulo administración contiene la cocina: equipada con almacén, tratamiento y preparación de alimentos, Biberonería y también zona para la limpieza de la vajilla; habitación para los utensilios de limpieza, lavandería con lavadora y secadora de ropa; almacén para los elementos de psicomotricidad; y Servicios Sanitarios Adaptados con ducha.

Finalmente, es importante destacar la importancia que se le ha dado al conseguir un edificio lo más sostenible posible.

Por eso, se utilizan materiales que nos garantizan un grado de sostenibilidad mínimos o procedentes de sistemas de reciclaje e incluso la utilización de sistemas constructivos que mejoran el comportamiento energético del edificio, como la fachada ventilada de caucho reciclado o los aprovechamientos y potenciación de los sistemas de ventilaciones cruzadas.

Además, la instalación de colectores de agua para conseguir el 100% del ACS y que nos ayuden a minimizar el consumo por calefacción del suelo radiante en un 30%.


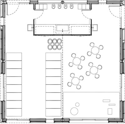
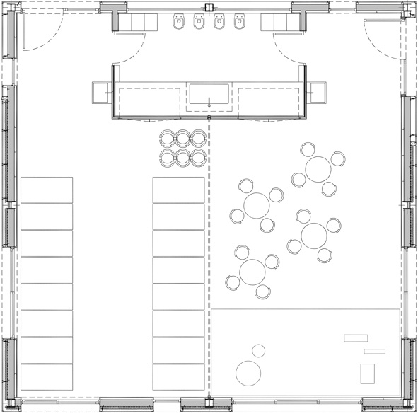
Planos
Realice click sobre los planos para ampliarlos.

Imágenes
Realice click sobre las imágenes para ampliarlas.

Ver ficha técnica y datos de contacto al pie de página.

Para más información, fotografías y planos de la obra descargar presentación.


Acerca de los proyectistas

AIA Salazar-Navarro

Albert Salazar Junyent
Joan Carles Navarro Casamitjana

AIA Activitats Instal·lacions Arquitectòniques es un equipo multidisciplinar compuesto por arquitectos e ingenieros, que desde finales de los años ochenta desarrollan proyectos de arquitectura e ingeniería, tanto propios como para otros arquitectos, administraciones públicas o empresas privadas. Una gran parte de su trabajo corresponde a la investigación y posterior desarrollo arquitectónico y técnico de sistemas de sostenibilidad medioambiental, así como de todos los elementos de última generación tecnológica aplicables a la construcción. Para AIA, el resultado final del proceso debe ser un equilibrio entre todos los aspectos técnicos, estéticos, culturales y sociales que intervienen en el proceso arquitectónico, con una elevada dosis de compromiso personal.

AIA está estructurada en tres áreas:

Arquitectura: Proyectos de arquitectura, interiorismo, arquitectura bioclimatica y urbanismo.
Ingeniería: Diseño cálculo de instalaciones, proyectos de iluminación y proyectos ambientales.
Research: Diseño industrial y aplicación de nuevas tecnologías a las instalaciones.

Seleccionados para representar al Colegio Superior de Arquitectos de España en el Green Building Challenge España 2005 SB05 de Tokio con los proyectos Escuela de enseñanza primaria Gitanjali y Piscina cubierta de Bellvitge y salas polivalentes.

Para más información visite el sitio web http://www.aia.cat

 
Curso Ilustración digital de proyectos arquitectónicos
 
Si usted es profesional, este es su espacio para publicar su obra o proyecto (en forma gratuita). Para más información visitar la sección contacto: click aquí.
   
   

Noticias
informes especiales
bienal de arquitectura BA11
bienal de arquitectura BA09
publicaciones

Artículos
notas y artículos de interés
arquitectura legal
diseño de iluminación
software de arquitectura y diseño

Recursos
curso de decoracion (gratis/online)
archivo temático
descargas externas
curso de croquis (gratis/online)

Precios y costos
precios de materiales, indices y
costos m2 de construcción

Proyecto
obras construidas
proyectos para concursos
proyectos de estudiantes
arquitectos destacados
obras destacadas

Diseño
diseño industrial y mobiliario
diseño interior y decoración
Casa FOA 2009
Casa FOA 2010
Casa FOA 2011
Casa FOA 2012
Casa FOA 2013
Casa FOA 2014
Estilo Pilar 2010
Estilo Pilar 2012

Construcción
materiales y tecnologías
novedades de empresas
sector inmobiliario

Agenda
cursos y seminarios
congresos y bienales
charlas y eventos
exposiciones y muestras
concursos

Facultad
becas y subsidios
posgrados y maestrías
donde estudiar

Varios
ofertas laborales arquitectura, diseño y construccion
suscripcion newsletter (gratis)
redes sociales
publicidad

Arquimaster en Facebook
Arquimaster en Twitter
Arquimaster en LinkedIn
Arquimaster en Pinterest