Arquimaster - Medio digital de arquitectura, diseño y construccion Estas visitando la version anterior,
para ver la version actual realiza click aca

 

     
       
 
Climanet - Doble Vidrio Hermetico DVH
Matyser - Materiales y servicios para la construccion
Cursos de arquitectura y diseño de espacios
Anclaflex
Curso Introducción a Revit: Modela tus proyectos arquitectonicos
Bara
Casa MA34 (C. de Campo Estancia Abril) - de Jauregui Salas arquitectos
Curso Diseño y modelado arquitectónico 3D con Revit
 

Ficha técnica
Nombre: Casa MA34
Proyectistas: de Jauregui Salas arquitectos (Germán Salas, Nicolás de Jauregui)
Colaboradores: Ignacio Antón Aguilar
Fotografías: Daniel Tejo, Eugenio Valentín
Ubicación: Club de Campo Estancia Abril, Barrio La Quinta, Lote 34, Hudson, Buenos Aires, Argentina
Área de terreno: 1183 m2
Área de proyecto: 386 m2
Año de proyecto: 2004
Año de construcción: 2006

Contacto de Jauregui Salas arquitectos
México 947 Of. 1 (1640) Martinez, Buenos Aires, Argentina
Teléfono: (54-11) 4717-6911
Fax: (54-11) 4717-6911
Email: info@dejaureguisalas.com.ar
Web: http://www.dejaureguisalas.com.ar

Agradecimientos
Las imágenes y textos publicados han sido enviados por Arq. Germán Salas

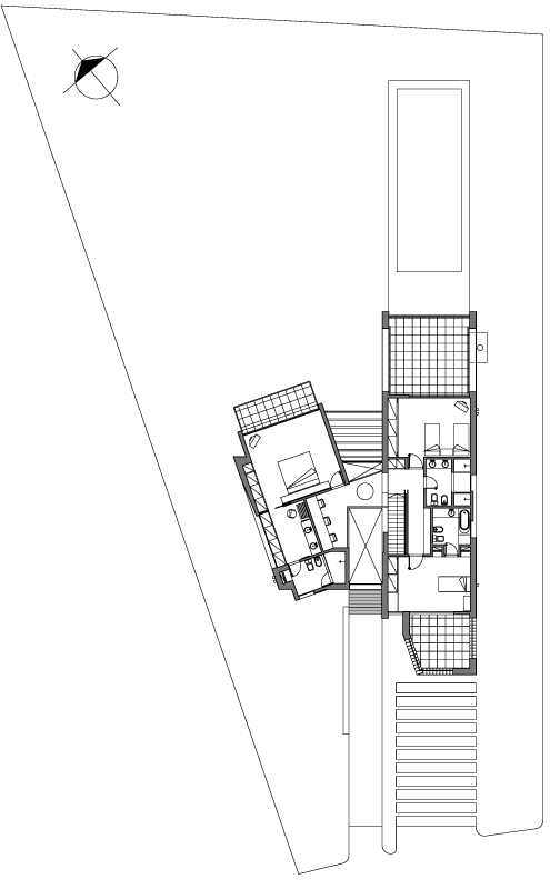
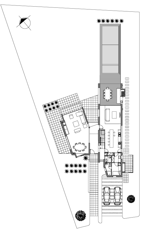
Esta casa se encuentra emplazada en las afueras de la ciudad, sobre un lote muy bien orientado, con privilegiadas visuales a un campo de golf, pero de una geometría irregular.

A partir de las premisas planteadas por los comitentes, se acordó que debía ser una vivienda de carácter monumental pero de fuerte lenguaje contemporáneo.

Así fue que, teniendo en cuenta las particularidades del lote y los requerimientos de los comitentes, se pensó en un partido de dos fuertes volúmenes, ligados por un gran espacio central que hiciera de nexo y permitiera el quiebre entre ellos, logrando de esta manera, acompañar la difícil forma del terreno.

La casa se resuelve hacia el frente con una fachada más introvertida, controlando sus vistas, y la orientación más desfavorable, y otra muy abierta hacia el jardín donde predomina el vidrio sobre el muro, favoreciendo una plena conexión con el exterior, el verde, y las buenas visuales.

Los volúmenes debían ser bien diferenciados entre sí, al igual que su materialidad, sin dejar de componer una unidad.

De esta manera se optó por realizar un cuerpo de la vivienda con bloque de hormigón visto, y otro con terminación en revoque color blanco.

El acceso a la a la casa está enfatizado con un espacio central de doble altura, totalmente vidriado, en donde la luz invade el corazón de la casa.

Este hall es interrumpido únicamente por un puente de hierro, vidrio y madera que cose ambos cuerpos de la construcción.

Si bien es un proyecto simple y claro en cuanto a su funcionamiento e idea de partido, es una obra de arquitectura plagada de detalles, donde se trató de buscar la sensibilidad de los materiales y los espacios que ellos generan.


Planos
Realice click en los links para ver los planos.

[1] Planta baja
[2] Planta alta
[3] Planta techos
[4] Corte 1
[5] Corte 2
[6] Corte 3
[7] Corte 4
[8] Vista frente
[9] Vista contrafrente
[10] Vista lateral 1
[11] Vista lateral 2


Imágenes
Realice click sobre las imágenes para ampliarlas.

Ver ficha técnica y datos de contacto al pie de página.


Acerca de los proyectistas
El Estudio, formado por los arquitectos Nicolás de Jauregui y Germán Salas, se dedica al diseño y construcción de obras de arquitectura.

Sus trabajos se caracterizan por la constante búsqueda de soluciones creativas para los distintos requerimientos de sus Clientes, realizando proyectos en un amplio rango que cubre lo residencial, comercial e institucional, incursionando permanentemente en nuevas tendencias de diseño y tecnología.

Cumplir con las expectativas y las particularidades proyectuales de cada encomienda, son aspectos esenciales de sus objetivos.

A su entender, la idea de partido y la síntesis son elementos fundamentales a la hora de proyectar.

Mantener una permanente inquietud por evolucionar en este proceso creativo es lo que alienta al equipo de trabajo.

Para más información visite el sitio dejaureguisalas.com.ar

 
Curso Ilustración digital de proyectos arquitectónicos
 
Si usted es profesional, este es su espacio para publicar su obra o proyecto (en forma gratuita). Para más información visitar la sección contacto: click aquí.
   
   

Noticias
informes especiales
bienal de arquitectura BA11
bienal de arquitectura BA09
publicaciones

Artículos
notas y artículos de interés
arquitectura legal
diseño de iluminación
software de arquitectura y diseño

Recursos
curso de decoracion (gratis/online)
archivo temático
descargas externas
curso de croquis (gratis/online)

Precios y costos
precios de materiales, indices y
costos m2 de construcción

Proyecto
obras construidas
proyectos para concursos
proyectos de estudiantes
arquitectos destacados
obras destacadas

Diseño
diseño industrial y mobiliario
diseño interior y decoración
Casa FOA 2009
Casa FOA 2010
Casa FOA 2011
Casa FOA 2012
Casa FOA 2013
Casa FOA 2014
Estilo Pilar 2010
Estilo Pilar 2012

Construcción
materiales y tecnologías
novedades de empresas
sector inmobiliario

Agenda
cursos y seminarios
congresos y bienales
charlas y eventos
exposiciones y muestras
concursos

Facultad
becas y subsidios
posgrados y maestrías
donde estudiar

Varios
ofertas laborales arquitectura, diseño y construccion
suscripcion newsletter (gratis)
redes sociales
publicidad

Arquimaster en Facebook
Arquimaster en Twitter
Arquimaster en LinkedIn
Arquimaster en Pinterest