Arquimaster - Medio digital de arquitectura, diseño y construccion Estas visitando la version anterior,
para ver la version actual realiza click aca

 

     
       
 
Climanet - Doble Vidrio Hermetico DVH
Matyser - Materiales y servicios para la construccion
Cursos de arquitectura y diseño de espacios
Anclaflex
Curso Introducción a Revit: Modela tus proyectos arquitectonicos
Bara
Casa frente al Mar (Club de Playa Las Gaviotas, Lima) - José Orrego arq.
Curso Diseño y modelado arquitectónico 3D con Revit
 

Ficha técnica
Nombre: Casa frente al Mar
Ubiación: Club de Playa Las Gaviotas, Lima, Perú
Proyectista: José Orrego arquitecto
Area lote: 230 m2
Area construida: 187,88 m2

Contacto
Web: http://www.metropolisperu.com

Agradecimientos
Las imágenes y textos publicados han sido enviados por Arq. José Orrego

La casa se ubica en un lote con una orientación inmejorable frente al océano Pacífico en el club de Playa Las Gaviotas, al sur de la ciudad de Lima, Perú.

La idea principal fue crear una casa balcón que aprovechara la vista al mar desde la ubicación privilegiada donde se ubica el lote.

Al encontrarse adyacente al malecón, se propuso elevar toda la casa de manera que permitiera disfrutar de una vista elevada de la playa y el mar.

Esta terraza elevada se enmarca de manera que crea la sensación de una gran ventana virtual que remarca el paisaje playero en las distintas horas del día.

La terraza se integra con la sala y el comedor a través de una mampara vidriada que puede ser rebatida completamente hacia uno de los lados de manera que toda esta área se puede convertir en un sólo gran espacio semiexterior.

La piscina está planteada como objeto que se ha colocado en la terraza como un elemento más del mobiliario.

El interior se organiza a lo largo de un corredor central curvo que reparte ambientes a ambos lados.

En la zona adyacente al comedor se ubica la cocina, y hacia el fondo los dormitorios en un nivel más bajo.

En uno de los lados de la casa se ubica un garaje que actúa como un patio interior donde se han desarrollado en un semisótano las zonas de lavandería y cuarto de servicio.

Al ser un lote medianero, se resolvió las iluminaciones y ventilaciones de los ambientes con ventanas altas que permitían la luz cenital.

Toda la casa ha sido diseñada como una caja blanca incluyendo los cerámicos del piso para dar una sensación de luminosidad mayor.

El proyecto incluyó una propuesta de iluminación que permite lucir la casa por la noche, de manera que se destaquen la volumetría y los detalles arquitectónicos de la casa.


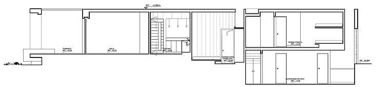
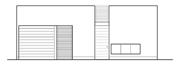
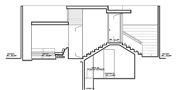
Planos
Realice click en los links para ver los planos.

[1] Planta baja
[2] Planta semisótano
[3] Planta techos
[4] Corte 1-1
[5] Corte 2-2
[6] Corte 3-3
[7] Corte 4-4
[8] Corte 5-5
[9] Corte 6-6
[10] Corte 7-7
[11] Corte 8-8
[12] Elevación posterior
[13] Elevación frontal


Imágenes
Realice click sobre las imágenes para ampliarlas.

Ver ficha técnica y datos de contacto al pie de página.


Acerca del proyectista
Arq. José Orrego

Como proyectista ha participado en concursos privados y se ha especializado en diferentes áreas proyectuales tales como:

Cementerios y culto
Oficinas corporativas
Restaurantes
Proyectos comerciales (desde arquigrafia, módulos, tiendas, cines, tiendas de departamentos, supermercados y centros comerciales de mediano y gran formato)
Casas de playa
Imagen comercial
Reciclajes

Con más de 20 años dedicado exclusivamente al diseño, lleva desarrollados hasta la fecha más de 400 proyectos realizados por encargos privados de distinto tipo.

En la actualidad lidera una de los estudios de arquitectura más importantes del Perú.

Para obtener mayor información del trabajo realizado por el estudio visite el sitio metropolisperu.com

 
Curso Ilustración digital de proyectos arquitectónicos
 
Si usted es profesional, este es su espacio para publicar su obra o proyecto (en forma gratuita). Para más información visitar la sección contacto: click aquí.
   
   

Noticias
informes especiales
bienal de arquitectura BA11
bienal de arquitectura BA09
publicaciones

Artículos
notas y artículos de interés
arquitectura legal
diseño de iluminación
software de arquitectura y diseño

Recursos
curso de decoracion (gratis/online)
archivo temático
descargas externas
curso de croquis (gratis/online)

Precios y costos
precios de materiales, indices y
costos m2 de construcción

Proyecto
obras construidas
proyectos para concursos
proyectos de estudiantes
arquitectos destacados
obras destacadas

Diseño
diseño industrial y mobiliario
diseño interior y decoración
Casa FOA 2009
Casa FOA 2010
Casa FOA 2011
Casa FOA 2012
Casa FOA 2013
Casa FOA 2014
Estilo Pilar 2010
Estilo Pilar 2012

Construcción
materiales y tecnologías
novedades de empresas
sector inmobiliario

Agenda
cursos y seminarios
congresos y bienales
charlas y eventos
exposiciones y muestras
concursos

Facultad
becas y subsidios
posgrados y maestrías
donde estudiar

Varios
ofertas laborales arquitectura, diseño y construccion
suscripcion newsletter (gratis)
redes sociales
publicidad

Arquimaster en Facebook
Arquimaster en Twitter
Arquimaster en LinkedIn
Arquimaster en Pinterest