Arquimaster - Medio digital de arquitectura, diseño y construccion Estas visitando la version anterior,
para ver la version actual realiza click aca

 

     
       
 
Climanet - Doble Vidrio Hermetico DVH
Matyser - Materiales y servicios para la construccion
Cursos de arquitectura y diseño de espacios
Anclaflex
Curso Introducción a Revit: Modela tus proyectos arquitectonicos
Bara
Casa BV625 (Barrio Santa Bárbara) - de Jauregui Salas arquitectos
Curso Diseño y modelado arquitectónico 3D con Revit
 

Ficha técnica
Nombre: Casa BV625
Proyectistas: de Jauregui Salas arquitectos (Germán Salas, Nicolás de Jauregui)
Colaboradores: Ignacio Antón Aguilar
Fotografías: Daniel Tejo, Eugenio Valentín
Ubicación: Barrio Santa Bárbara, Buenos Aires, Argentina
Área de terreno: 1337 m2
Superficie cubierta: 263 m2
Superficie semicubierta: 92 m2
Año de proyecto: 2001
Año de construcción: 2002

Contacto de Jauregui Salas arquitectos
México 947 Of. 1 (1640) Martinez, Buenos Aires, Argentina
Teléfono: (54-11) 4717-6911
Fax: (54-11) 4717-6911
Email: info@dejaureguisalas.com.ar
Web: http://www.dejaureguisalas.com.ar

Agradecimientos
Las imágenes y textos publicados han sido enviados por Arq. Germán Salas

Esta casa se sitúa en un barrio cerrado en las afueras de Buenos Aires, sobre un lote de geometría regular, fuerte proporción longitudinal, buenas visuales y orientaciones.

De acuerdo a lo solicitado por el cliente, la casa debía ser de lenguaje "ladrillero", con una clara impronta contemporánea, de volúmenes puros, líneas rectas y techos planos.

Conjugando los deseos del cliente, con las proporciones del lote, optamos por un partido de fuerte desarrollo lineal.

De esta manera diseñamos una casa con un importante volumen principal, donde se desarrollan todas las funciones familiares, al cual le adosamos otros volúmenes con las áreas de servicio, quincho y pileta.

La vinculación entre ellos la resolvimos con espacios de transición exterior como pérgolas, puente y escalera, que enfatizan el eje longitudinal de la vivienda, generando una unidad en su composición.

Para romper con la rigidez que proponía la casa, planteamos un único techo levemente inclinado en su área de estar, que invite a la apertura del jardín y las largas visuales, fundiendo interior y exterior, por medio de frentes vidriados y continuidad en sus materiales.

Los muros de ladrillo se trabajaron con pureza,
mostrando aristas crudas, creando volúmenes fuertes pero permeables.

El ladrillo sólo se ve interrumpido por paños vidriados que abren las vistas, o paños grises que remarcan la ubicación de las circulaciones dentro la casa.

La casa cuenta con gran variedad de espacios exteriores, semicubiertos o de transición, resueltos con soluciones diversas, que logran generar climas y sensaciones muy distintos entre sí, invitando a recorrer y vivir la casa en su totalidad.

La fuerte idea de partido, junto a la composición volumétrica y la elección de materiales nobles, hacen de esta casa un proyecto moderno pero perdurable en su estética.


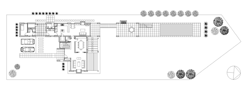
Planos
Realice click en los links para ver los planos.

[1] Planta baja
[2] Planta alta
[3] Planta techos
[4] Vistas


Imágenes
Realice click sobre las imágenes para ampliarlas.

Ver ficha técnica y datos de contacto al pie de página.


Acerca de los proyectistas
El Estudio, formado por los arquitectos Nicolás de Jauregui y Germán Salas, se dedica al diseño y construcción de obras de arquitectura.

Sus trabajos se caracterizan por la constante búsqueda de soluciones creativas para los distintos requerimientos de sus Clientes, realizando proyectos en un amplio rango que cubre lo residencial, comercial e institucional, incursionando permanentemente en nuevas tendencias de diseño y tecnología.

Cumplir con las expectativas y las particularidades proyectuales de cada encomienda, son aspectos esenciales de sus objetivos.

A su entender, la idea de partido y la síntesis son elementos fundamentales a la hora de proyectar.

Mantener una permanente inquietud por evolucionar en este proceso creativo es lo que alienta al equipo de trabajo.

Para más información visite el sitio dejaureguisalas.com.ar

 
Curso Ilustración digital de proyectos arquitectónicos
 
Si usted es profesional, este es su espacio para publicar su obra o proyecto (en forma gratuita). Para más información visitar la sección contacto: click aquí.
   
   

Noticias
informes especiales
bienal de arquitectura BA11
bienal de arquitectura BA09
publicaciones

Artículos
notas y artículos de interés
arquitectura legal
diseño de iluminación
software de arquitectura y diseño

Recursos
curso de decoracion (gratis/online)
archivo temático
descargas externas
curso de croquis (gratis/online)

Precios y costos
precios de materiales, indices y
costos m2 de construcción

Proyecto
obras construidas
proyectos para concursos
proyectos de estudiantes
arquitectos destacados
obras destacadas

Diseño
diseño industrial y mobiliario
diseño interior y decoración
Casa FOA 2009
Casa FOA 2010
Casa FOA 2011
Casa FOA 2012
Casa FOA 2013
Casa FOA 2014
Estilo Pilar 2010
Estilo Pilar 2012

Construcción
materiales y tecnologías
novedades de empresas
sector inmobiliario

Agenda
cursos y seminarios
congresos y bienales
charlas y eventos
exposiciones y muestras
concursos

Facultad
becas y subsidios
posgrados y maestrías
donde estudiar

Varios
ofertas laborales arquitectura, diseño y construccion
suscripcion newsletter (gratis)
redes sociales
publicidad

Arquimaster en Facebook
Arquimaster en Twitter
Arquimaster en LinkedIn
Arquimaster en Pinterest