Arquimaster - Medio digital de arquitectura, diseño y construccion Estas visitando la version anterior,
para ver la version actual realiza click aca

 

     
       
 
Climanet - Doble Vidrio Hermetico DVH
Matyser - Materiales y servicios para la construccion
Cursos de arquitectura y diseño de espacios
Anclaflex
Curso Introducción a Revit: Modela tus proyectos arquitectonicos
Bara
Casa JM490 (Laguna del Sol, Bs. As.) - de Jauregui Salas arquitectos
Curso Visualización arquitectónica con V-Ray Next para SketchUp
 

Ficha técnica
Nombre: Casa JM490
Arquitectos: de Jauregui Salas arquitectos (Germán Salas, Nicolás de Jauregui)
Colaboradores: Ignacio Antón Aguilar
Ubicación: Laguna del Sol, Lote 490, Pacheco, Buenos Aires, Argentina
Área del terreno: 816m2
Área del proyecto: 290m2
Año de proyecto: 2006
Año de construcción: 2007

Contacto de Jauregui Salas arquitectos
México 947 Of. 1 (1640) Martinez, Buenos Aires, Argentina
Teléfono: (54-11) 4717-6911
Fax: (54-11) 4717-6911
Email: info@dejaureguisalas.com.ar
Web: http://www.dejaureguisalas.com.ar

Agradecimientos
Las imágenes y textos publicados han sido enviados por Arq. Germán Salas

Debíamos diseñar una casa para un barrio cerrado en la zona de Pacheco, en las afueras de Buenos Aires.

Una zona de gran expansión en urbanizaciones, durante los últimos años.

El lote a intervenir es en esquina, de proporciones regulares, y buena orientación.

A partir de un programa de necesidades tradicional, y de ciertas premisas acerca del estilo de la vivienda, acordamos con los clientes en diseñar una casa de fuerte lenguaje contemporáneo.

Una casa basada en principios racionalistas, de volúmenes puros, líneas rectas y techos planos.

Nuestra intención fue trabajar sobre una idea de partido de gran síntesis.

La idea rectora fue lograr una casa con fuerte lectura atectónica, una casa que visualmente fuese más pesada en su planta alta que en la baja, donde las sensaciones transgredieran los principios físicos de estabilidad.

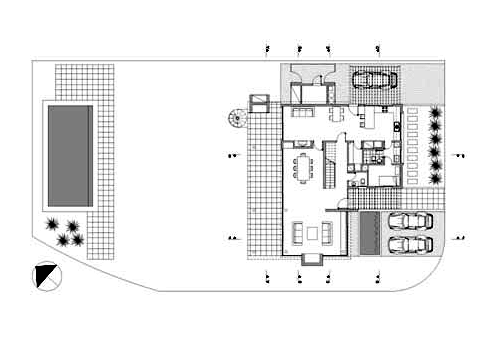
De esta manera, diseñamos en planta alta, un volumen muy apaisado y de gran horizontalidad, que apoyara sobre una planta baja muy vidriada, abierta y volátil.

La lectura resulta tanto más clara en su vista posterior y lateral, ya que hacia el frente, la casa posee un volumen bajo y compacto, donde se ubican las áreas de servicio, conteniendo las visuales de estos sectores, y abriendo generosamente el acceso principal y el living.

Se logra así, que los ambientes públicos resulten totalmente permeables en sus caras, donde la naturaleza, y la luz natural invaden los interiores.

Todos los espacios vinculados al jardín, poseen una generosa expansión que recorre todo el contrafrente de la casa.

En planta baja, la galería expone su estructura con despojadas columnas de hormigón visto, mientras que el límite entre interior y exterior, se desmaterializa por grandes paños vidriados.

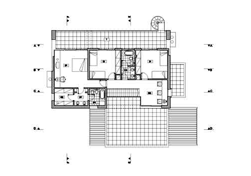
En la planta alta en cambio, la expansión exterior comunica los dormitorios y conecta con una escalera caracol la terraza con el jardín.

Su diseño y materialidad, contrastan fuertemente con las líneas rectas y volúmenes puros de la casa.

Para lograr esta visión atectónica, se recurrió a una estructura de hormigón independiente, que tuviera sus columnas retraídas de los límites de la casa y a su vez, que nos otorgara la libertad suficiente para generar estos gestos.

De esta manera logramos también fragmentar la caja arquitectónica del contrafrente, y hacer de esta fachada, la más atípica y osada.

Respondiendo a su lenguaje racionalista, la casa en su exterior es totalmente blanca, posee detalles grises en ciertos sectores aislados, y negro en todos aquellos componentes metálicos dejados a la vista.

A diferencia de la paleta monocromática del exterior, el interior recibió algunos toques de color, que junto con sus pisos de madera, y un meticuloso diseño en barandas, escaleras, e iluminación, cumplió con el clima de calidez solicitado por los clientes.


Planos
Realice click en los links para ver los planos.

[1] Planta baja
[2] Planta alta
[3] Planta techos
[4] Implantación
[5] Vista frente
[6] Vista contrafrente
[7] Vista lateral 1
[8] Vista lateral 2


Imágenes
Realice click sobre las imágenes para ampliarlas.

Ver ficha técnica y datos de contacto al pie de página.


Acerca de los proyectistas
El estudio formado por los arquitectos Nicolás de Jauregui y Germán Salas, se dedica al Proyecto y Dirección de obras de arquitectura.

Sus trabajos se caracterizan por la constante búsqueda de soluciones creativas para los distintos requerimientos de sus clientes, realizando proyectos en un amplio rango que cubre lo residencial, comercial e institucional, incursionando permanentemente en nuevas tendencias de diseño y tecnología.

Cumplir con las expectativas y las particularidades proyectuales de cada encomienda, son aspectos esenciales de sus objetivos.

A su entender, la idea de partido y la síntesis son elementos fundamentales a la hora de proyectar.

Mantener una permanente inquietud por evolucionar en este proceso creativo es lo que alienta al equipo de trabajo.

Para más información visite el sitio dejaureguisalas.com.ar

 
Curso Ilustración digital de proyectos arquitectónicos
 
Si usted es profesional, este es su espacio para publicar su obra o proyecto (en forma gratuita). Para más información visitar la sección contacto: click aquí.
   
   

Noticias
informes especiales
bienal de arquitectura BA11
bienal de arquitectura BA09
publicaciones

Artículos
notas y artículos de interés
arquitectura legal
diseño de iluminación
software de arquitectura y diseño

Recursos
curso de decoracion (gratis/online)
archivo temático
descargas externas
curso de croquis (gratis/online)

Precios y costos
precios de materiales, indices y
costos m2 de construcción

Proyecto
obras construidas
proyectos para concursos
proyectos de estudiantes
arquitectos destacados
obras destacadas

Diseño
diseño industrial y mobiliario
diseño interior y decoración
Casa FOA 2009
Casa FOA 2010
Casa FOA 2011
Casa FOA 2012
Casa FOA 2013
Casa FOA 2014
Estilo Pilar 2010
Estilo Pilar 2012

Construcción
materiales y tecnologías
novedades de empresas
sector inmobiliario

Agenda
cursos y seminarios
congresos y bienales
charlas y eventos
exposiciones y muestras
concursos

Facultad
becas y subsidios
posgrados y maestrías
donde estudiar

Varios
ofertas laborales arquitectura, diseño y construccion
suscripcion newsletter (gratis)
redes sociales
publicidad

Arquimaster en Facebook
Arquimaster en Twitter
Arquimaster en LinkedIn
Arquimaster en Pinterest