Arquimaster - Medio digital de arquitectura, diseño y construccion Estas visitando la version anterior,
para ver la version actual realiza click aca

 

     
       
 
Climanet - Doble Vidrio Hermetico DVH
Matyser - Materiales y servicios para la construccion
Cursos de arquitectura y diseño de espacios
Anclaflex
Curso Introducción a Revit: Modela tus proyectos arquitectonicos
Bara
Edificio vivienda multifamiliar Río Papaloapan 15 - Taller 13 arqs.
Curso Técnica de presentación para proyectos arquitectónicos
 

Ficha técnica
Proyecto: Edificio de vivienda multifamiliar Río Papaloapan 15
Ubicación: Río Papaloapan 15, Cuauhtémoc, México DF
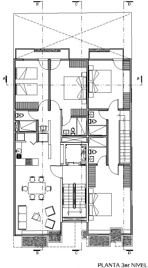
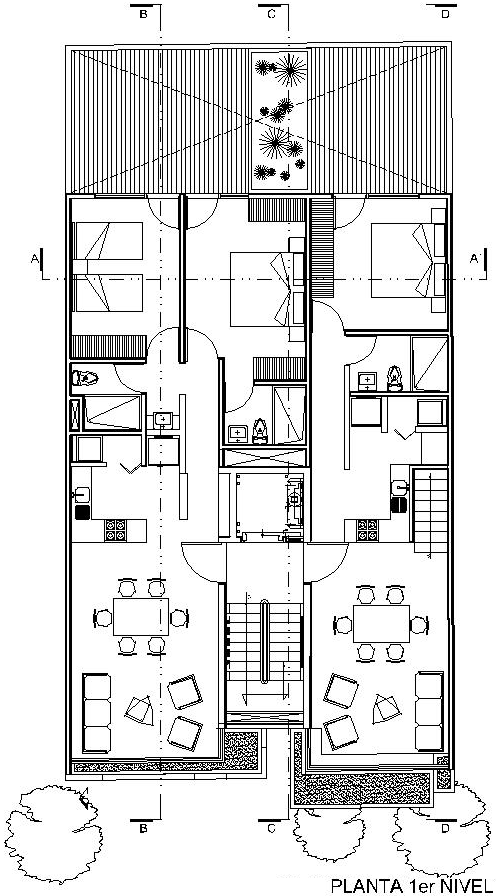
Tipología: Vivienda multifamiliar: 8 unidades, 6 pisos, 4 tipologías distintas (distintas configuraciones y tamaños). Roof Garden / Green Roofing (naturación). Captación de agua de lluvia y reciclamiento de agua (cascadeo)
Arquitectos: Taller 13 arquitectos (Elías Cattan / Patricio Guerrero)
Colaboradores: Alexis Caprile, Alejandro Rosas, Guillermo Lumbreras, Rafael Ayala, Rubén Coxca, Gloria Robledo, Allan Ezban, Jose Luis Lemus, Elias Cherem
Construcción: EZ desarrollos
Ingeniería estructural: Arco Radial: Ing. Carlos Rosas
Paisajismo y naturación: Techos Vivos / Gumesindo Jiménez
Vidrio e instalación: Vitrocanceles
Fotografía: Rafael Gamo
Fecha: 2004-2007
Superficie construida: 1500 m2

Contacto Taller 13 arqs.
Web: http://www.taller13.com

Agradecimientos
Las imágenes y textos publicados han sido enviados por Arq. Patricio Guerrero

Ubicado en la céntrica colonia Cuauhtémoc, Ciudad de México.

Construido a una cuadra del bello Paseo de Reforma sobre un lote rectangular se desplanta un edificio de vivienda multifamiliar de 6 niveles y una terraza en la azotea.

Cuenta con 8 unidades, 3 de ellas en 2 niveles y 5 en un solo nivel.

Configurado con 5 distintas tipologías espaciales, que van de 80 m2 a los 150 m2, de 1, 2 o 3 recamaras, con dobles alturas y/o terrazas privadas.

Es un volumen rectangular con un patio trasero.

La iluminación natural y las circulaciones de aire son primordiales para lograr un mayor confort al interior.

En el edificio se implementaron "eco-tecnias", captación de agua pluvial, reciclaje y cascadeo de aguas (ahorrando hasta un 60% del consumo normal).

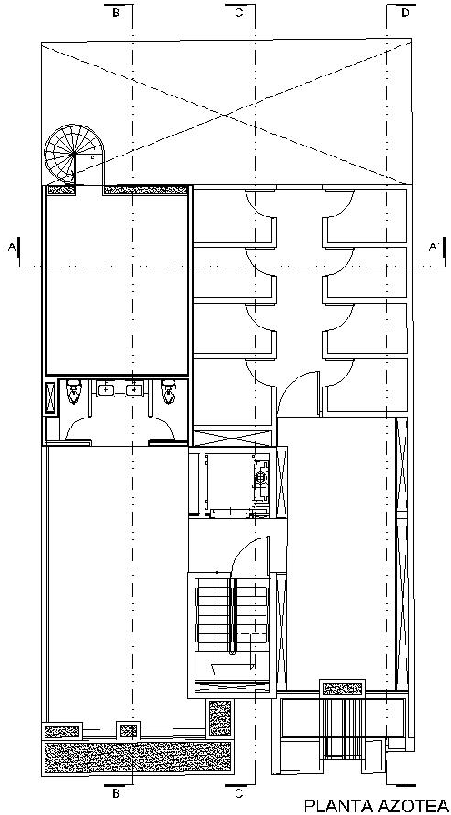
Naturación extensiva tradicional en la azotea (green roofing) y áreas comunes.

Tensores, jardineras y vegetación componen las fachadas.

Los módulos juegan a lo largo de la fachada principal, haciendo un buffer vegetal hacia el exterior urbano denso.

Dicha fachada esta compuesta por una matriz de módulos.

Tiene particiones de aluminio y cristal haciendo cada espacio interior único.

Las jardineras cuentan con distintas especies de vegetación de bajo consumo de agua.

Se retoma el volumen de una casa colindante catalogada, respetando el contexto inmediato, haciendo un eco de la misma con muros recubiertos de recinto.

La doble altura es resaltada por canceles verticales.

La terraza en la azotea común tiene gravillas y plantas de bajo mantenimiento, nativas de lugar.

Mobiliario para el disfrute al aire libre de la vida citadina.

Se le dio mucha importancia a la vegetación e iluminación del proyecto.


Planos
Realice click en los links para ver los planos.

[1] Implant. y ubicación
[2] Planta 1º nivel
[3] Planta 2º nivel
[4] Planta 3º nivel
[5] Planta 4º nivel
[6] Planta 5º nivel
[7] Planta azotea
[8] Planta semisótano
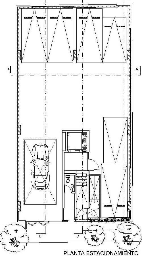
[9] Planta estacionamiento
[10] Corte A-A'
[11] Corte B-B'
[12] Corte C-C'
[13] Corte D-D'
[14] Corte detalle
[15] Fachada
[16] Contrafachada


Imágenes

Realice click sobre las imágenes para ampliarlas.

Ver ficha técnica y datos de contacto al pie de página.


Acerca del proyectista
Para más información sobre Taller 13 arqs. visite el sitio web taller13.com

Taller 13 arquitectos, fundado en el 2003 por Elías Cattan y Patricio Guerrero.

Arquitectos egresados de la Universidad Iberoamericana, México DF.

Interesados principalmente en el diseño y el respeto al medio ambiente.

El taller explora las relaciones entre el sitio, los materiales, ciclos naturales y las eficiencias de recursos por medio de un proceso de diseño integral, buscando la unión entre la estética y la sustentabilidad de sus obras.

Trabajamos a distintas escalas y usos: espacios efímeros, vivienda unifamiliar, vivienda multifamiliar, comercios, parques y proyectos de escala urbana.

 
Curso Ilustración digital de proyectos arquitectónicos
 
Si usted es profesional, este es su espacio para publicar su obra o proyecto (en forma gratuita). Para más información visitar la sección contacto: click aquí.
   
   

Noticias
informes especiales
bienal de arquitectura BA11
bienal de arquitectura BA09
publicaciones

Artículos
notas y artículos de interés
arquitectura legal
diseño de iluminación
software de arquitectura y diseño

Recursos
curso de decoracion (gratis/online)
archivo temático
descargas externas
curso de croquis (gratis/online)

Precios y costos
precios de materiales, indices y
costos m2 de construcción

Proyecto
obras construidas
proyectos para concursos
proyectos de estudiantes
arquitectos destacados
obras destacadas

Diseño
diseño industrial y mobiliario
diseño interior y decoración
Casa FOA 2009
Casa FOA 2010
Casa FOA 2011
Casa FOA 2012
Casa FOA 2013
Casa FOA 2014
Estilo Pilar 2010
Estilo Pilar 2012

Construcción
materiales y tecnologías
novedades de empresas
sector inmobiliario

Agenda
cursos y seminarios
congresos y bienales
charlas y eventos
exposiciones y muestras
concursos

Facultad
becas y subsidios
posgrados y maestrías
donde estudiar

Varios
ofertas laborales arquitectura, diseño y construccion
suscripcion newsletter (gratis)
redes sociales
publicidad

Arquimaster en Facebook
Arquimaster en Twitter
Arquimaster en LinkedIn
Arquimaster en Pinterest