Arquimaster - Medio digital de arquitectura, diseño y construccion Estas visitando la version anterior,
para ver la version actual realiza click aca

 

     
       
 
Climanet - Doble Vidrio Hermetico DVH
Matyser - Materiales y servicios para la construccion
Cursos de arquitectura y diseño de espacios
Anclaflex
Curso Introducción a Revit: Modela tus proyectos arquitectonicos
Bara
Casa en Los Castores (Nordelta, Buenos Aires) - Sternberg Kohen arqs.
Curso Técnica de presentación para proyectos arquitectónicos
 

Ficha técnica
Obra: Casa en Los Castores (Nordelta)
Autores: Sternberg Kohen Arquitectos (Arq. Adriana Sternberg y Arq. Mariano Kohen)
Ubicación: Nordelta, Pcia. de Buenos Aires
Superficie cubierta: 265 m2
Superficie terreno: 1050 m2
Año de ejecución: 2005
Constructora: Afiar Construcciones SRL
Cálculo Estructural: Ing. Cesar Tocker

Contacto
Dirección: J. Salguero 2745 2º "23", Ciudad de Buenos Aires
Tel/fax: (5411) 4807-5113
Web: http://www.sternbergkohen.com.ar

Agradecimientos
Las imágenes y textos publicados han sido enviados por Arq. Mariano Kohen

Ver planos de la obra

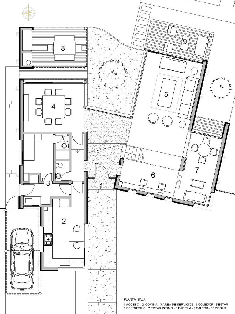
Lejos de los modelos prediseñados y homogéneos, el estudio decidió poner el acento en el entorno, uniendo la funcionalidad de la vivienda a su contexto, incorporando materiales naturales como la piedra y la madera, logrando así una mayor integración entre exterior e interior.

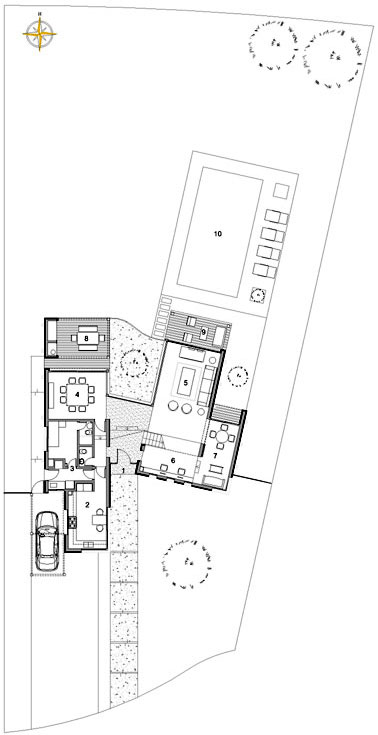
Un lote de forma cónica, con orientación norte y apertura a un fondo con buena vista hacia una porción del lago central, fue el punto de partida para pensar esta vivienda que funciona como el hogar de un matrimonio joven.

Siguiendo las líneas del lote, se propone la geometría de la casa como dos bloques abriéndose en forma de abanico hacia las mejores vistas y orientación, generando entre ambos un "vacío" que se convierte en el espacio central de la vivienda.

El proyecto buscó una fuerte relación con el paisaje exterior sin repetir el modelo urbano de vivienda con aberturas pequeñas, por el contrario, el sector de la planta baja que mira hacia el lago, se abre casi completamente con ventanales de piso a techo.

Estos grandes cristales que dejan pasar la luz permiten también entrar en contacto directo con el césped del jardín, el agua de la piscina y el lago.

En cambio hacia la calle se diseño una fachada más contenida con ventanas acotadas a la altura de la mirada del observador, generando un equilibrio entre intimidad y paisaje.

Esta relación se rompe en el acceso principal, donde se genera una visión pasante hasta el fondo del lote a través de un gran ventanal acentuando el efecto de vacío que se produce entre los dos bloques de la casa.

Este espacio, como un sendero continuo comienza en el exterior con un suelo cubierto de piedras partidas blancas y continúa en el interior con un piso blanco que remata en un patio que aloja un árbol en pleno crecimiento, que deja caer sus flores rosadas sobre la piedra blanca en primavera.

Es este patio a la vez nexo visual y proveedor de cierta privacidad entre los sectores de la planta baja totalmente vidriada, el árbol funciona como filtro solar en verano cuando su follaje es más tupido.

Otra de las búsquedas en la planta baja fue la entera flexibilidad del espacio, dejando al escritorio y estar intimo incluido o aislado según la necesidad de uso, pudiendo ampliar el espacio social o hacer convivir distintas actividades en el mismo momento.

La escalera y un portón corredizo regulan la relación entre los espacios.

En planta alta los dos bloques, uno de adultos y el otro de los hijos, quedan vinculados y separados a la vez, por el espacio central que funciona como estar íntimo, logrando una lectura de puente cruzando el vacío sobre el acceso.

El bloque de los niños está compuesto por dos dormitorios, un baño y un patio que funciona como expansión y nutre al espacio común, reforzando la relación con la naturaleza.

La habitación principal tiene su propia expansión aterrazada, también cuenta con un espacio de relajación con una bañera romana que mira hacia el jardín, un gran vestidor y baño, quedando todas sus funciones en total privacidad con respecto al resto de la casa.

Estructura
Se planteó una estructura mixta compuesta por muros portantes y por columnas metálicas que permiten la mayor apertura hacia el jardín.

Las losas fueron ejecutadas con viguetas pretensadas y bloques de poliestireno expandido, haciendo más liviana la casa y, de esta forma, forzando en menor manera la platea de hormigón armado utilizada como fundación.

Los muros portantes fueron revestidos en piedra en las orientaciones más desfavorables, otorgando mayor aislación térmica e hidrófuga.

Carpinterías
Todas las carpinterías son de aluminio anodizado natural con vidrios de seguridad en los sectores de paso y grandes ventanales.

Pisos
De madera de lapacho, de tablas de distintos anchos y largos excepto en baños y sectores de servicio.

El sector de acceso se resolvió con un microcemento alisado blanco.

Los decks exteriores son de lapacho al igual que el revestimiento de la fachada hacia el jardín en planta alta.

Instalaciones
El agua caliente fue resuelta con un termotanque de alta recuperación y cañerías de polipropileno.

La calefacción por piso radiante y caldera mural.

El aire acondicionado se resolvió a través de dos equipos tipo split con conductos en cielorrasos en planta baja, independizando sectores y un roof-top para toda la planta alta, también con conductos por cielorrasos.

Iluminación
Los exteriores se resolvieron creando artefactos in situ de hormigón armado en las fachadas laterales y dos embutidos de alta duración en la doble altura del acceso.

En el interior predominan los artefactos embutidos en cielorraso, ubicados de manera que destaquen planos rasantes en paredes logrando una iluminación con contrastes.


Planos
Realice click en los links para ver los planos.

[1] Planta implantación
[2] Planta baja
[3] Planta alta
[4] Corte B-B'
[5] Corte D-D'
[6] Vista frente
[7] Vista contrafrente
[8] Vista este
[9] Vista oeste


Imágenes

Realice click sobre las imágenes para ampliarlas.

Ver ficha técnica y datos de contacto al pie de página.


Acerca de los proyectistas
Para más información sobre los arquitectos Adriana Sternberg y Mariano Kohen visitar el sitio web sternbergkohen.com.ar

 
Curso Ilustración digital de proyectos arquitectónicos
 
Si usted es profesional, este es su espacio para publicar su obra o proyecto (en forma gratuita). Para más información visitar la sección contacto: click aquí.
   
   

Noticias
informes especiales
bienal de arquitectura BA11
bienal de arquitectura BA09
publicaciones

Artículos
notas y artículos de interés
arquitectura legal
diseño de iluminación
software de arquitectura y diseño

Recursos
curso de decoracion (gratis/online)
archivo temático
descargas externas
curso de croquis (gratis/online)

Precios y costos
precios de materiales, indices y
costos m2 de construcción

Proyecto
obras construidas
proyectos para concursos
proyectos de estudiantes
arquitectos destacados
obras destacadas

Diseño
diseño industrial y mobiliario
diseño interior y decoración
Casa FOA 2009
Casa FOA 2010
Casa FOA 2011
Casa FOA 2012
Casa FOA 2013
Casa FOA 2014
Estilo Pilar 2010
Estilo Pilar 2012

Construcción
materiales y tecnologías
novedades de empresas
sector inmobiliario

Agenda
cursos y seminarios
congresos y bienales
charlas y eventos
exposiciones y muestras
concursos

Facultad
becas y subsidios
posgrados y maestrías
donde estudiar

Varios
ofertas laborales arquitectura, diseño y construccion
suscripcion newsletter (gratis)
redes sociales
publicidad

Arquimaster en Facebook
Arquimaster en Twitter
Arquimaster en LinkedIn
Arquimaster en Pinterest