Arquimaster - Medio digital de arquitectura, diseño y construccion Estas visitando la version anterior,
para ver la version actual realiza click aca

 

     
       
 
Climanet - Doble Vidrio Hermetico DVH
Matyser - Materiales y servicios para la construccion
Cursos de arquitectura y diseño de espacios
Anclaflex
Curso Introducción a Revit: Modela tus proyectos arquitectonicos
Bara
Concurso Provincial de Anteproyectos Nueva Pileta Municipal Polo Deportivo Andorra (Ushuaia, Argentina) - C. Ansaldo, A. J. Maletti, L. Maletti, F. Romei, A. Ruiz Martínez, F. Zanel
Curso Visualización arquitectónica expresiva de exteriores
 

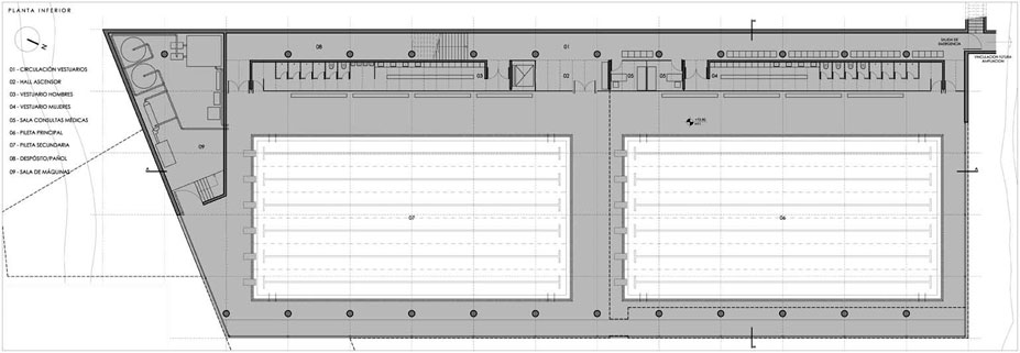
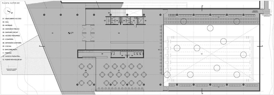
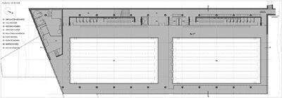
Planos
Realice click sobre los planos para ampliarlos (ver arriba).

Imágenes
Realice click sobre las imágenes para ampliarlas (ver arriba).

Ficha técnica
Nombre: Concurso Provincial de Anteproyectos Nueva Pileta Municipal Polo Deportivo Andorra, 1º Premio
Proyecto: C. Ansaldo, A. J. Maletti, L. Maletti, F. Romei, A. Ruiz Martínez, F. Zanel
Colaboradores: P. Palmieri, F. Ahlers, L. Pedrazzi
Ubicación: Ushuaia, Argentina
Año: 2008

Contacto
MZM arqs.: http://www.mzmarqs.com
Ruiz Martínez arq.: http://www.ruizmartinez.com.ar

Agradecimientos
Las imágenes y textos publicados han sido enviados por Arq. Fernando Zanel

Ver planos del proyecto

Este Concurso de Anteproyectos en el Valle de Andorra (Ushuaia) nos da la posibilidad de intervenir en un privilegiado sector de la ciudad, hoy degradado por el crecimiento espontáneo y arquitectura no regulada.

El edificio deportivo que se encontará en el portal de Andorra permitirá la conformación de un lugar de encuentro comunitario en tierras recientemente recuperadas y es el deseo que sea este el inicio de la revitalización de un maravilloso sector de nuestra ciudad.

El desarrollo del proyecto se ejecuta teniendo muy presente el objetivo de gestión Municipal de Crear conciencia sobre la importancia de los Edificios Públicos en el desarrollo comunitario y la pretensión de jerarquizar el lenguaje arquitectónico de los Edificios Municipales. Se ha trabajado con la premisa propuesta de lograr un bajo nivel de impacto visual y la preservación de los recursos naturales existentes.

Propuesta arquitectónica
Se realizó el proyecto con el objetivo de generar un edifico deportivo que de un cambio a la forma de tratar el tema Público, demostrando mediante la edificación la importancia del deporte dentro del desarrollo humano, su sustentabilidad en el tiempo y destacando la importancia del edifico Público, no producto de una respuesta improvisada, sino el resultado de un estudio metódico, profesional e institucional para dar solución a necesidades insatisfechas de la comunidad local.

El polo deportivo fue diseñado en su conjunto, con una concepción global de la toma del terreno, con etapas sucesivas de construcción. Así nos encontramos con un edificio dedicado a los natatorios que se integra en forma coherente con el resto de las futuras edificaciones, manteniendo los mismos criterios edilicios para la totalidad. Se han agrupado en forma lineal en el sector oeste del predio, el espacio cubierto para diversas actividades (básquet, vóley, etc.), el edificio de piletas, la futura ampliación de las mismas y finalmente el gimnasio cubierto. Todo vinculado por una circulación vehicular y peatonal. En el sector este, se mantiene el espacio verde existente y se encuentran los circuitos de ciclismo, aeróbico y la cancha de fútbol. Ambos sectores se encuentran también vinculados por un puente peatonal que cruza por dentro de la arboleda, estimulando el contacto con la naturaleza desde diversas perspectivas.

Dentro de las pautas claramente establecidas en el Concurso, se trabajó con un riguroso respeto por el entorno y el impacto que el edificio pudiera ocasionar en el área tan sensible de la trama urbana.

Se propone un edificio de "impacto 0" aprovechando las diferencias de nivel propias del terreno; se desarrolló un partido donde todo el conjunto del polo deportivo se encuentra bajo nivel de la calle, con aventanamientos hacia el este. De esta forma las cubiertas de los natatorios y del resto de los futuros edificios se encuentran a nivel de la calle haciendo imperceptible la presencia de los mismos, con claros y jerarquizados accesos. El techo de las piletas que opera como terraza mirador, es el piso de la plaza donde aparte de tener un importante sector verde alberga actividades como Roller sky, observación y circuito de ciclistas.

No se ha intervenido en el cauce de ninguno de los arroyos ni se ha tocado el bosque existente.

El acceso vehicular, estacionamiento y su futura ampliación se prevé paralelo a la calle, impidiendo que pasen a ser parte del paisaje del predio.
Se diseñó una circulación lineal, tanto peatonal como vehicular. El acceso contempla un sector semicubierto para ingreso de las personas. No existen barreras arquitectónicas; se implementaron las rampas y ascensores necesarios. Se prevé incorporar todos los elementos de orientación auditivos y táctiles disponibles para la adecuada circulación de las personas con disminución visual.

Los espejos de agua se encuentran sobre un eje longitudinal, uno a continuación del otro: sobre una de sus caras se encuentran los sectores de servicios, en un nivel y en el nivel siguiente las tribunas. Del otro lado el aventanamiento, que potencia las perspectivas y la integración con el paisaje tiene excelentes vistas al bosque que garantizan la iluminación natural, con un imprescindible acompañamiento de iluminación natural cenital, para evitar el indeseado efecto de reflejo en los natatorios.
Los vestuarios también están iluminados naturalmente a través de un cerramiento de vidrio translucido que da a los espejos de agua.

El sector de servicios comprende los vestuarios, sala médica, baños y sala de máquinas.

El natatorio de baja profundidad tiene una altura de techo de 3 m, teniendo el de mayor profundidad una doble altura para dar las mejores condiciones para torneos y presencia de público.
La confitería se encuentra ubicada de forma tal de tener las mejores visuales del paisaje a la vez de poder expandir al exterior en las épocas que el clima lo permita. Por otra parte se proyectó un sector de barra dispuesto sobre la pileta principal de manera de poder participar de una competencia.

Sistema constructivo
Constructivamente se ha optado por estructura y losas de hormigón armado; nos ofrece una propuesta constructiva tradicional, de bajísimo nivel de mantenimiento y bajo costo de construcción. A su vez se prevé con este sistema constructivo el uso intensivo de mano de obra local.

La elección de hormigón armado como elemento esencial de los edificios responde a la idea de realizar un Edificio Público con carácter de solidez y trascendencia en el tiempo. Se suma la buena imagen que tiene este elemento en el público en general, tan sensibilizado por el mal uso de otros materiales y en la búsqueda de distanciarnos de la ya conocida "cultura del galpón".

La respuesta sismorresistente para nuestra zona (zona 3) es muy adecuada; al estar semienterrado se evitan las oscilaciones, lo cual disminuye significativamente la carga sísmica. Los natatorios propiamente dichos también se han proyectado de hormigón armado. Los muros externos son de composición heterogénea con cámara de aire y aislación térmica.

Las aberturas propuestas son de aluminio anodizado con doble vidriado hermético.
La solución constructiva propuesta tiene también ventajas en cuanto a la prevención de incendio; la totalidad de los materiales son ignífugos, se han previstos los sistema de evacuación de personas ante emergencias y se colocarán los elementos de prevención y protección reglamentarios.

Uso racional de los recursos, sustentabilidad
Se han diseñado los edificios teniendo en cuenta los principios de la arquitectura pasiva y considerando la baja radiación solar de Ushuaia por su latitud, como por su alto porcentaje de días nublados. Por esta razón se priorizó la aislación térmica sobre las ganancias de radiación solar y dando máximo aprovechamiento a la luz natural.

Basándonos en nuestra experiencia y en la norma IRAM 11.603 establecimos la temperatura mínima de diseño en -5.5 °C en invierno y 8.8°C en verano. La máxima temperatura de diseño en verano se estableció en 16.9 °C, lo cual requiere calefaccionar en esta época.

La temperatura de confort en el interior del ambiente se definió en 25 ºC y la del agua, según al exigencia de la FINA (Federación Internacional de Natación) en 21 ºC.

Con estos datos se propone un sistema de calefacción por piso radiante, que sumado a la colaboración de los espejos de agua nos permiten lograr el nivel de confort exigido.

La pileta de poca profundidad tiene su cubierta a 3m de altura, y la profunda a 6m. De esta forma disminuimos sensiblemente el volumen de aire a calefaccionar. También para lograr un uso racional de los recursos energéticos proyectamos un edificio que por sus características de implantación se encuentra aislado térmicamente por el terreno en gran parte de su perímetro. En la parte superior se diseñó un estrato de 50 cm de aislación térmica, aislación hidrófuga, de tierra y champa, que logra un bajísimo factor de transmisibilidad térmica, K, de 0.2 W/m2°K como se puede apreciar en los detalles (ver detalle constructivo).

Los natatorios propiamente dichos se han proyectado en hormigón armado con un revestimiento externo de poliestireno expandido para mantener aislada térmicamente el agua. Se propone la instalación de una manta térmica sobre los espejos de agua durante las horas que no se usan las piletas. Esto permite tener muy pocas pérdidas térmicas durante las horas que permanece cerrado el natatorio.

El aventanamiento es doble vidriado hermético, con un vidrio de baja emisividad, lo que aumenta un 50% la capacidad aislante con respecto a los dobles vidriados herméticos tradicionales. Este aventanamiento se ubica hacia el este, con las consabidas ventajas de estar de espaldas a los vientos predominantes.
La iluminación artificial se prevé con 2 grupos de luminarias: uno para cubrir las necesidades básicas de trabajo y un segundo grupo para cumplimentar los 1500 lux exigidos por la FINA para competencias.

Se instalará en los baños, sector de inodoros, válvulas Sloan con doble control de flujo para el uso racional del agua. Se prevé en los lavatorios una única canilla con agua templada, con el mismo fin. El agua para llenado de las piletas provendrá de un pozo de bombeo en el arroyo, de forma tal de no utilizar el agua de red para el llenado de las mismas.

También se ha limitado al mínimo el uso de la madera, especialmente de bosques nativos, y la aplicamos con discreción en muy pocos detalles.

Con respecto al cuidado de la salud de los deportistas se instaló un sistema de ventilación superior para la eliminación de los gases nocivos de cloruro.

El conjunto del polo deportivo esta pensado para un bajo nivel de mantenimiento. Solo hormigón visto, aluminio, vidrio, tierra y champa.

Con todos estos elementos y conceptos estamos optimizando los recursos disponibles y dando un mensaje desde lo Público a toda la comunidad sobre el interés, cuidado, uso del lugar, el medio ambiente y los recursos energéticos.

 
Curso Ilustración digital de proyectos arquitectónicos
 
Si usted es profesional, este es su espacio para publicar su obra o proyecto (en forma gratuita). Para más información visitar la sección contacto: click aquí.
   
   

Noticias
informes especiales
bienal de arquitectura BA11
bienal de arquitectura BA09
publicaciones

Artículos
notas y artículos de interés
arquitectura legal
diseño de iluminación
software de arquitectura y diseño

Recursos
curso de decoracion (gratis/online)
archivo temático
descargas externas
curso de croquis (gratis/online)

Precios y costos
precios de materiales, indices y
costos m2 de construcción

Proyecto
obras construidas
proyectos para concursos
proyectos de estudiantes
arquitectos destacados
obras destacadas

Diseño
diseño industrial y mobiliario
diseño interior y decoración
Casa FOA 2009
Casa FOA 2010
Casa FOA 2011
Casa FOA 2012
Casa FOA 2013
Casa FOA 2014
Estilo Pilar 2010
Estilo Pilar 2012

Construcción
materiales y tecnologías
novedades de empresas
sector inmobiliario

Agenda
cursos y seminarios
congresos y bienales
charlas y eventos
exposiciones y muestras
concursos

Facultad
becas y subsidios
posgrados y maestrías
donde estudiar

Varios
ofertas laborales arquitectura, diseño y construccion
suscripcion newsletter (gratis)
redes sociales
publicidad

Arquimaster en Facebook
Arquimaster en Twitter
Arquimaster en LinkedIn
Arquimaster en Pinterest