 |
 |
 |
 |
 |
 |
 |
 |
| |
Servicios
- Importante hall de acceso en doble altura, con frente integral de vidrio y
paneles autoportantes.
- Auditorio.
- Gimnasio.
- Solarium.
- Salón de usos múltiples.
- Parrilla.
- Wi-fi.
Unidades
- 1 Local Comercial Apto Gastronomía, 186
m2 cuadrados cubiertos (doble altura). Patio de
uso exclusivo de 300 m2.
- 16 Módulos de oficinas, 35 m2 cubiertos y
5 m2 expansión.
Posibilidades de unión: 70 m2, 89 m2, 124 m2 y 178 m2 cubiertos.
- 16 Módulos de oficinas, 54 m2 cubiertos y
5 m2 expansión.
Posibilidades de unión: 89 m2, 124 m2 y 178 m2 cubiertos.
- 6 Semipisos de Plantas Libres de Oficinas, 140 m2
cubiertos y
5/10/50 m2 expansión. Altura
libre entre losas: 3,15 m.
Posibilidades de unión: plantas libres de 280 m2 cubiertos.
- 15 Cocheras Cubiertas en 1º Subsuelo.
- 15 Cocheras cubiertas en 2º Subsuelo.
Ficha
técnica
Nombre: Business Center Gorriti 6046-56
Proyecto: estudio ATV arquitectos
Dirección: Gorriti 6046-56, Palermo, Ciudad
de Buenos Aires
Superficie total: 4.400m2
Período de obra: 2009-2011
Tipología: Dos subsuelos, planta baja en doble altura, entrepiso y ocho
pisos
Inversión total:
U$S 4.200.000 Contacto
Sitio web: http://www.atvarquitectos.com.ar
Agradecimientos
Las imágenes y textos publicados han sido enviados por Rakia |
|
Ver
planos de la obra
El proyecto intenta valerse de las oportunidades que
derivan de la complejidad y heterogeneidad de este sector
del nuevo y versátil barrio denominado Palermo
Hollywood, que tiende a conformarse como un nuevo polo
de oficinas comerciales, estudios profesionales y productoras
de cine y TV.
El edificio toma como eje de la problemática
proyectual la repetición, variación, flexibilidad
y agrupamiento de distintas tipologías de oficinas,
proponiendo diferentes escalas para los posibles usuarios.
Se dispuso un núcleo de circulación central
que organiza los diferentes espacios de uso en torno
al mismo en todas las plantas. La composición
volumétrica del proyecto plantea dos escalas perceptivas
que a su vez definen cambios programáticos en
el conjunto.
Una pieza arquitectónica en forma de "U" contiene
los cuatro niveles de unidades flexibles donde la continuidad
de los planos horizontales de hormigón visto define
las expansiones. La relación del volumen de oficinas
divisibles con el exterior es tamizada a través
de planos verticales de vidrio esmerilado que conforman
el límite de las mismas. En la repetición
alternada, dichos planos, determinan un ritmo aleatorio
según su función. Este volumen definido
toma la escala del entorno, disponiéndose en un
plano retrasado el volumen vidriado correspondiente a
las oficinas de planta libre en los pisos superiores,
donde las expansiones y los vidrios esmerilados denotan
continuidad rítmica con el volumen que conforma
los pisos inferiores.
Ambos paquetes funcionales quedan contenidos por planos
medianeros retrasados que se pliegan a diferentes niveles
generando semicubiertos y expansiones e integrando
verticalmente al proyecto.
El edificio plantea un programa
funcional de gran flexibilidad: oficinas de 35 m2,
70 m2, 89 m2, 124 m2, 140 m2, 280
m2.
En la planta baja se ubican el hall de acceso en doble
altura, el acceso a dos subsuelos de cocheras y un gran
local comercial que se articula funcional y proyectualmente
con el hall del edificio y la calle, posibilitando su
uso en relación con el conjunto y en forma independiente.
La composición del local está dada por un cubo
vidriado perceptivamente independiente de los restantes
volúmenes.
El proyecto centra su mirada proyectual
en los intersticios y relaciones que generan diferentes
usos programáticos
diferenciados e interrelacionados entre sí a través
de continuidades y alteraciones espaciales, materiales
y perspectivas.
Materiales
y terminaciones
- Sistema de courtain-wall con doble vidriado hermético
en los pisos de plantas libres.
- Frentes integrales compuestos por carpinterías
de aluminio Aluar línea A30 y revestimientos de
aluminio anodizado en los pisos de módulos de
oficinas.
- Barandas de balcones de aluminio y vidrio.
- Sistema de cerramientos de vidrio templado en expansiones
pisos 2º a 5º.
- Instalación preparada para aire acondicionado
con equipos split por conducto.
- Palieres con pisos de marmetas.
- Baños y offices totalmente equipados, con pisos
de porcellanato y revestimientos de mosaico veneciano.
- Balcones y terrazas con deck de madera.
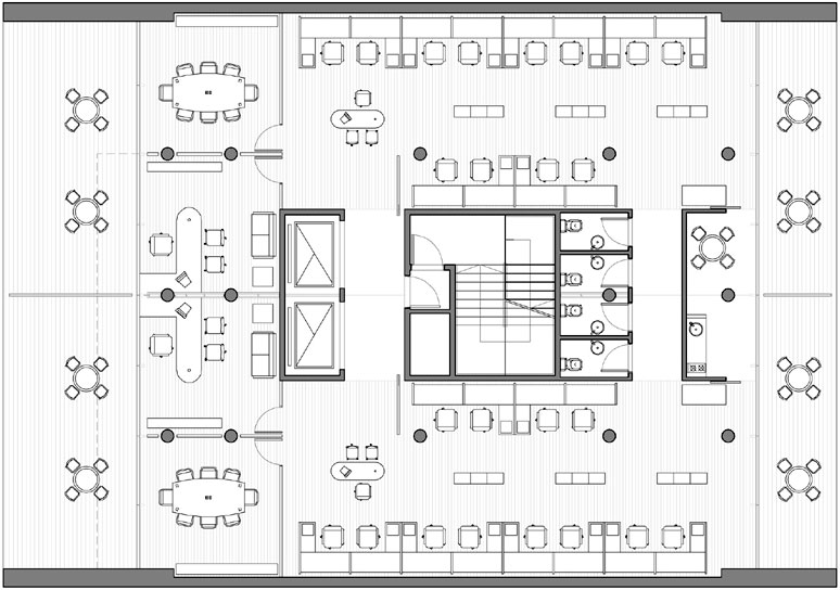
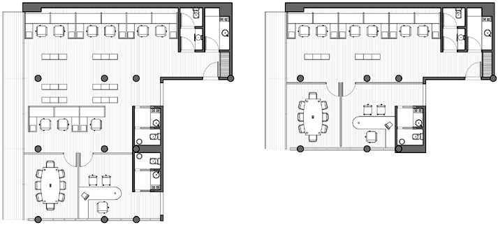
Planos
Realice click en los links para ver los planos.
[1] Planta
unidad 36 m2
[2] Planta
unidad 54 m2
[3] Planta
semipiso 6
[4] Planta
libre piso 6
[5] Planta
semipiso 7/8 a
[6] Planta
semipiso 7/8 b
[7] Planta
unid. combinables
[8] Planta
unid. combinables
[9] Planta
subsuelo
Imágenes
Realice click sobre las imágenes para ampliarlas.
Ver
ficha técnica y datos de contacto al
pie de página.
Acerca de ATV
ATV Arquitectos es un estudio que desde sus comienzos
se ha dedicado a la realización
de obras de arquitectura enmarcados en una gestión integral, enfocándonse
en el desarrollo de emprendimientos inmobiliarios de edificios de vivienda multifamiliar,
oficinas, estudios profesionales y locales comerciales.
El estudio está dirigido por sus socios Federico Azubel e Ignacio
Trabucchi desde 2003, año en el que se gradúan de la Universidad
de Buenos
Aires.
En enero de 2006, Walter Viggiano se asocia al estudio.
Sus integrantes
realizan, además de su labor en el campo de la arquitectura, tareas de
investigación y docencia en la Facultad de Arquitectura, Diseño
y Urbanismo.
A partir del primer desarrollo inmobiliario, Cramer 3154, el estudio ha experimentado
un notable crecimiento, contando en la actualidad con diez emprendimientos
inmobiliarios en distintas etapas de desarrollo.
Luego de tan sólo cinco años
de historia, ATV ha adquirido un importante know-how para el desarrollo de proyectos
y obras de arquitectura de distinta envergadura y programas, incluyendo locales
comerciales, edificios de vivienda multifamiliar y oficinas, constituidos a través
de distintas modalidades de conformación, como fideicomisos, sociedades
inversoras y desarrollos para empresas.
ATV arquitectos se especializa en el desarrollo de emprendimientos inmobiliarios,
conformando un equipo de trabajo con consultores y asesores de distintas áreas,
con el fin de ofrecer a clientes e inversores una propuesta integral que incluye
selección de terrenos, análisis de factibilidad técnico,
económico y financiero, organización y administración del
emprendimiento, y formulación de estrategias de comercialización.
De esta manera, buscamos perfilarnos como una empresa de arquitectura que logre
conjugar la reflexión crítica propia del campo disciplinar de la
arquitectura y plasmar sus ideas en desarrollos inmobiliarios, logrando una imagen
distintiva y la aplicación de políticas de calidad que nos diferencien.
Para más información visite el sitio web del estudio atvarquitectos.com.ar
|