Arquimaster - Medio digital de arquitectura, diseño y construccion Estas visitando la version anterior,
para ver la version actual realiza click aca

 

     
       
 
Climanet - Doble Vidrio Hermetico DVH
Matyser - Materiales y servicios para la construccion
Cursos de arquitectura y diseño de espacios
Anclaflex
Curso Introducción a Revit: Modela tus proyectos arquitectonicos
Bara
Casa en Playa Punta Hermosa (Perú) - Arq. Juan Carlos Doblado
Curso Introduccion a Lumion
 

Ficha técnica
Nombre: Casa en Playa Punta Hermosa
Protectista: Arq. Juan Carlos Doblado
Ubicación: Punta Hermosa, Perú
Á rea terreno: 255 m2
Área construida: 396 m2
Año: 2007

Contacto
Email: doblado@juancarlosdoblado.com
Web: http://www.juancarlosdoblado.com

Agradecimientos
Las imágenes y textos publicados han sido enviados por Arq. Juan Carlos Doblado

Ver planos de la obra

La casa está situada frente al Océano Pacífico, en la costa central del Perú, una de las zonas más áridas del mundo.

El terreno, de fuerte pendiente y de forma trapezoidal tiene sin embargo una vista privilegiada al océano.

Conceptualmente la casa es un prisma transparente en dos de sus caras que descansa en un plano paralelo al mar, que conforma una terraza a manera de playa artificial.

Esta terraza se relaciona al mar y al horizonte a través de la piscina.

Es el espacio protagonista de la casa, incorporando ambos elementos al espacio arquitectónico.

Como en la cubierta de un barco, una baranda delimita el espacio y acerca al usuario al borde del mar.

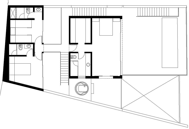
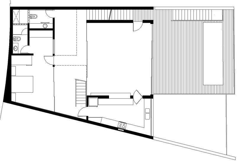
El programa de la casa está estratificado en tres niveles, como las capas geológicas de la costa peruana:

En el primer nivel se encuentra el estacionamiento y el servicio.

En el segundo la terraza, la sala-comedor, la cocina, el patio y el dormitorio de huéspedes.

Finalmente en el tercero se ubica el dormitorio principal y los dormitorios de los hijos.


Planos
Realice click en los links para ver los planos.

[1] Planta baja
[2] Planta 1º piso
[3] Planta 2º piso
[4] Corte 1
[5] Corte 2
[6] Vista frente


Imágenes

Realice click sobre las imágenes para ampliarlas.

Ver ficha técnica y datos de contacto al pie de página.


Acerca de los proyectistas
Para más información acerca del Arq. Juan Carlos Doblado visite el sitio web juancarlosdoblado.com

 
Curso Ilustración digital de proyectos arquitectónicos
 
Si usted es profesional, este es su espacio para publicar su obra o proyecto (en forma gratuita). Para más información visitar la sección contacto: click aquí.
   
   

Noticias
informes especiales
bienal de arquitectura BA11
bienal de arquitectura BA09
publicaciones

Artículos
notas y artículos de interés
arquitectura legal
diseño de iluminación
software de arquitectura y diseño

Recursos
curso de decoracion (gratis/online)
archivo temático
descargas externas
curso de croquis (gratis/online)

Precios y costos
precios de materiales, indices y
costos m2 de construcción

Proyecto
obras construidas
proyectos para concursos
proyectos de estudiantes
arquitectos destacados
obras destacadas

Diseño
diseño industrial y mobiliario
diseño interior y decoración
Casa FOA 2009
Casa FOA 2010
Casa FOA 2011
Casa FOA 2012
Casa FOA 2013
Casa FOA 2014
Estilo Pilar 2010
Estilo Pilar 2012

Construcción
materiales y tecnologías
novedades de empresas
sector inmobiliario

Agenda
cursos y seminarios
congresos y bienales
charlas y eventos
exposiciones y muestras
concursos

Facultad
becas y subsidios
posgrados y maestrías
donde estudiar

Varios
ofertas laborales arquitectura, diseño y construccion
suscripcion newsletter (gratis)
redes sociales
publicidad

Arquimaster en Facebook
Arquimaster en Twitter
Arquimaster en LinkedIn
Arquimaster en Pinterest