Arquimaster - Medio digital de arquitectura, diseño y construccion Estas visitando la version anterior,
para ver la version actual realiza click aca

 

     
       
 
Climanet - Doble Vidrio Hermetico DVH
Matyser - Materiales y servicios para la construccion
Cursos de arquitectura y diseño de espacios
Anclaflex
Curso Introducción a Revit: Modela tus proyectos arquitectonicos
Bara
Centro Comercial Queretaro (México) - Pascal Arquitectos
Curso Introduccion a Lumion
 

Ficha técnica
Nombre: Centro Comercial Queretaro
Proyecto Arquitectónico: Pascal Arquitectos
Fecha: 2009
Superficie construida: 24,435.00 m2
Ubicación: Sta. María Querétaro, Querétaro
Cliente o desarrollador: INGRA, Inmobiliaria Grupo Ramírez

Contacto
Web: http://www.pascalarquitectos.com

Agradecimientos
Las imágenes y textos publicados han sido enviados por Pascal Arquitectos

Ver planos de la obra

Centro Comercial en la ciudad de Querétaro donde se busca romper con los esquemas y tipologías tradicionales, con una arquitectura contemporánea, materiales, y tecnologías hasta ahora no utilizados en la zona.

Este centro comercial forma parte de la segunda etapa de construcción del centro comercial Sta. Maria Querétaro el cual cuenta además con cines, tiendas de autoservicio y un restaurante de comida rápida.

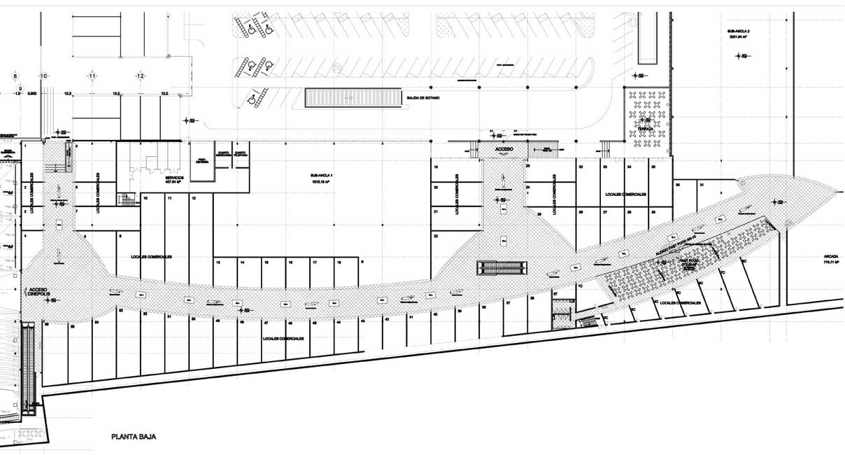
El proyecto cuenta con área comercial para locales y tiendas, área de fast food y terraza al aire libre; se desplantan a medio nivel sobre la banqueta conformando un semisótano de estacionamiento.

El acceso a la plaza puede ser desde la entrada principal a nivel de calle, por la entrada que conecta a la tienda de autoservicio o por el estacionamiento. En todos los accesos se incluyen espacios para personas de capacidades diferentes: rampas, cajones de estacionamiento especiales, escalera eléctrica y traveleitor.

Todos los accesos conectan con el pasillo principal dejando a los costados los locales comerciales y en uno de sus extremos el acceso al conjunto de salas de cine. El pasillo tiene una gran altura haciendo que los locales comerciales se vean mas amplios.

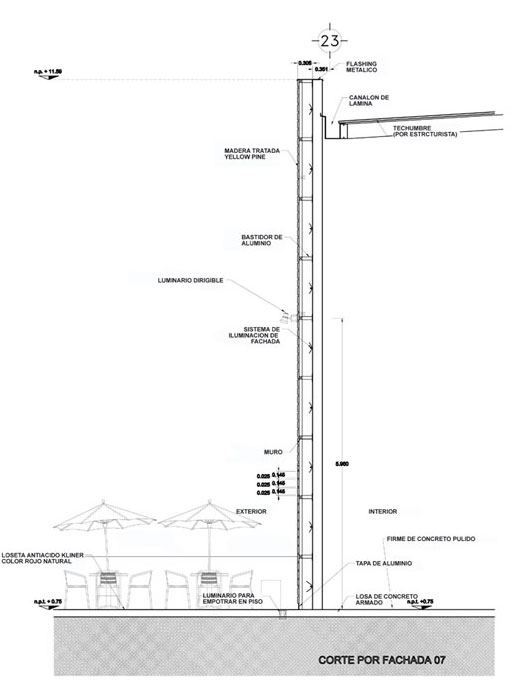
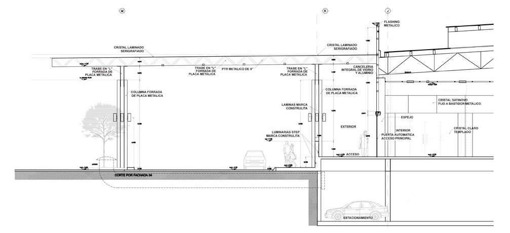
Las fachadas del centro comercial están formadas por dos elementos que contrastan: por cristales con tratamientos aleatorios de opacidad que dan una transparencia hacia el interior y por un lambrín de duela de madera natural que al ser iluminado por su interior durante la noche, convierte esta área en un elemento de luz.

Este es un proyecto sustentable e inteligente con un sistema de automatización y control que contempla ahorros de energía pasivos y activos, control de iluminación, extracción, aire acondicionado, seguridad y control de accesos, prevención y protección civil, cctv, todos ellos calendarizados y sincronizados.


Planos
Realice click en los links para ver los planos.

[1] Planta baja (1)
[2] Planta baja (2)
[3] Vista (1)
[4] Vista (2)
[5] Vista (3)
[6] Corte por fachada (1)
[7] Corte por fachada (2)
[8] Corte por fachada (3)
[9] Corte por fachada (4)
[10] Corte por fachada (5)
[11] Corte por fachada (6)
[12] Corte por fachada (7)


Imágenes

Realice click sobre las imágenes para ampliarlas.

Ver ficha técnica y datos de contacto al pie de página.


Acerca de los proyectistas
Para más información acerca de Pascal Arquitectos visite el sitio web pascalarquitectos.com

 
Curso Ilustración digital de proyectos arquitectónicos
 
Si usted es profesional, este es su espacio para publicar su obra o proyecto (en forma gratuita). Para más información visitar la sección contacto: click aquí.
   
   

Noticias
informes especiales
bienal de arquitectura BA11
bienal de arquitectura BA09
publicaciones

Artículos
notas y artículos de interés
arquitectura legal
diseño de iluminación
software de arquitectura y diseño

Recursos
curso de decoracion (gratis/online)
archivo temático
descargas externas
curso de croquis (gratis/online)

Precios y costos
precios de materiales, indices y
costos m2 de construcción

Proyecto
obras construidas
proyectos para concursos
proyectos de estudiantes
arquitectos destacados
obras destacadas

Diseño
diseño industrial y mobiliario
diseño interior y decoración
Casa FOA 2009
Casa FOA 2010
Casa FOA 2011
Casa FOA 2012
Casa FOA 2013
Casa FOA 2014
Estilo Pilar 2010
Estilo Pilar 2012

Construcción
materiales y tecnologías
novedades de empresas
sector inmobiliario

Agenda
cursos y seminarios
congresos y bienales
charlas y eventos
exposiciones y muestras
concursos

Facultad
becas y subsidios
posgrados y maestrías
donde estudiar

Varios
ofertas laborales arquitectura, diseño y construccion
suscripcion newsletter (gratis)
redes sociales
publicidad

Arquimaster en Facebook
Arquimaster en Twitter
Arquimaster en LinkedIn
Arquimaster en Pinterest