Arquimaster - Medio digital de arquitectura, diseño y construccion Estas visitando la version anterior,
para ver la version actual realiza click aca

a

     
       
 
Climanet - Doble Vidrio Hermetico DVH
Matyser - Materiales y servicios para la construccion
Cursos de arquitectura y diseño de espacios
Anclaflex
Curso Introducción a Revit: Modela tus proyectos arquitectonicos
Bara
Paradojas de un Gran Premio (por Arq. Martin Marcos)
Curso Diseño de espacios de lujo
 

Nota por Martín Marcos, Arquitecto, Profesor Titular FADU-UBA

 

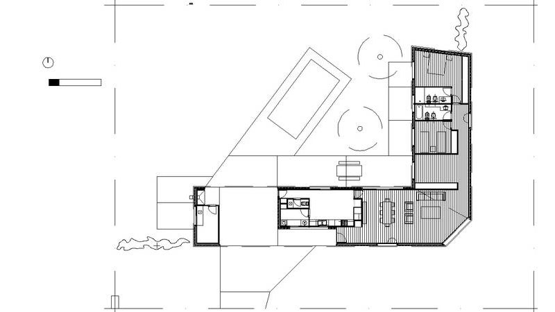
El Gran Premio de Arquitectura 2012 otorgado por FADEA (Federación Argentina de Entidades de Arquitectos) y ARQ (prestigioso suplemento de arquitectura del diario Clarín) ha sido para la Casa Puerto Roldán, de los Arqs. Gerardo Caballero y Maite Fernández. Selección que implico un recorrido por todo el país buscando las obras más significativas de los últimos cinco años en cada una de nuestras regiones. Un gran esfuerzo que debe ser enfatizado como muy positivo.

Lejos de poner en duda la calidad profesional del estudio Caballero-Fernandez, destacados arquitectos rosarinos a quienes admiro y respeto -tal vez más por otras obras que por este premio-, sí parece necesario señalar algunas cuestiones paradojales alrededor de esta elección y que tal vez nos permitan reflexionar y encarar urgentes desafíos.

Si bien existen categorías, premios y menciones, un Gran Premio es un símbolo, un "primus inter pares", un mensaje-síntesis de la arquitectura argentina al resto de la sociedad sobre el estado del arte en nuestro campo. Una oportunidad para señalar nuestras aspiraciones y lo que entendemos correcto y destacable como disciplina.

Exponer y dar a conocer este Gran Premio en la FADU-UBA, lugar donde se forman miles de estudiantes de arquitectura, es además un mensaje a ellos. Un paradigma a seguir por nuestros jóvenes.

Es aquí donde surge mi mayor perplejidad: Que el modelo a destacar por sobre el resto de los premiados sea la casa individual dentro de un barrio cerrado en las afueras de la ciudad no parece la mejor de las recomendaciones para quienes se están formando, ni para la sociedad en general.

Porque mas allá de resaltar lo metafórico y lo políticamente correcto que significa hoy la austeridad formal y constructiva (en este caso, por momentos casi una impostura), sabemos que esta tipología conlleva un modelo territorial irracional y que la ciudad extendida de baja densidad provoca un impacto ambiental y social negativo.

Hoy la enorme mayoría del mundo académico y científico internacional comparte que la compacidad en el ámbito urbano es lo correcto, ya que expresa la idea de proximidad de los componentes que conforman la ciudad. La compacidad, por tanto, es uno de los factores que facilitan el encuentro, la comunicación y el intercambio que son, como se sabe, la esencia de la vida en comunidad, potenciando así la probabilidad de contactos y con ello las relaciones entre los protagonistas del sistema urbano.

Son su antítesis: Las distancias, la dispersión y segregación del urbanismo extendido y difuso. Por ello la casa individual exenta -mal que nos pese a los arquitectos- ha devenido en el tipo de vivienda menos eficiente ambientalmente, la que más energía, tierra y agua consume. Además, su dependencia del automóvil implica altos gastos en combustibles fósiles y emisiones de CO2 que agravan el calentamiento global.

Por último y en nuestro caso particular, este uso del suelo resulta un verdadero despilfarro del territorio más rico y productivo del planeta en momentos en que la obtención de alimentos es vital para la humanidad. ¿No debería un Gran Premio de Arquitectura dar cuenta de estas cuestiones? ¿No son estos algunos de los desafíos perentorios en la formación de nuestros miles de estudiantes de arquitectura?

Es llamativo además que esta casa sea parte de un barrio privado en las afueras de Rosario, ya que Rosario ha sido la primera ciudad del país en debatir públicamente y prohibir nuevas urbanizaciones cerradas en su periferia. Privilegiar el valor social y estratégico del suelo por sobre la especulación y la fragmentación son fundamentos de esta Ley sancionada a principios de 2011.

También es paradójico que en un país creciendo -según datos oficiales- a tasas cercanas al 9% anual que el Gran Premio Nacional ARQ sea para una pequeña vivienda en los suburbios de una ciudad. No se malinterprete, es razonable que en la categoría "casas" gane una casa, y la Casa Puerto Roldán es una casa correcta -aunque orientar los dormitorios al oeste no parece lo más eficiente para los tórridos veranos santafecinos (¿habrá percibido el Jurado este "detalle"?)-, pero al ser la obra a destacar dentro de toda la producción nacional de los últimos cinco años, que además representará a la Argentina en la próxima Bienal de Venecia, pone en evidencia síntomas de algo que es necesario abordar.

Cabe preguntarse: ¿Donde están y quienes producen los grandes equipamientos públicos y privados de un país con semejantes niveles de expansión? ¿Existen? ¿Dónde están? ¿Porque no premiar entonces alguna de las miles de viviendas de interés social, los cientos de escuelas y hospitales, los museos, las bibliotecas, el espacio público, los parques, las fábricas, hoteles, laboratorios y los centros de innovación? ¿Su calidad arquitectónica y constructiva resiste un análisis serio? ¿La obra publica argentina es "mostrable"? Más de una cosa no cierra y creo que a esta altura todos nos damos cuenta de la encrucijada que tenemos delante y el riesgo de encerrarnos en cofradías, sectas y "discusiones para entendidos".

Por eso una agenda y un posicionamiento institucional de la arquitectura argentina no deberían obviar estas cuestiones ni soslayarlas, hay que ponerlas sobre la mesa porque ellas son decisivas para nuestro futuro como colectivo profesional. ¿No será tiempo de revisar los modelos de relación con el sector público y privado, habida cuenta que los tradicionales concursos de arquitectura no parecen ser ya la única herramienta idónea? ¿Podremos conjugar continuidad e innovación en nuestra cultura y práctica disciplinar?

No creo en las casualidades pero, por ejemplo, el último Gran Premio de la Arquitectura Española ha sido para un muy interesante edificio urbano de 131 viviendas protegidas -de interés social- en Mieres, Asturias. ¿No deberíamos, entre otras cosas, cambiar nuestras tradiciones y hacer que la primera categoría de nuestros premios de arquitectura sea para las instituciones públicas, o bien privilegiar la innovación en la vivienda colectiva, su eficiencia energética y su capacidad de hacer mejor ciudad? ¿Podremos superar nuestra preferencia casi excluyente por las casas como objetos de culto y deseo? Sería un mensaje claro y contundente al resto de la sociedad, pero también hacia el interior de nuestra disciplina, ya que implicaría comenzar a revisar viejos modelos de práctica y producción arquitectónica que hoy resultan cada vez más estrechos y menos estratégicos.

Desde la Grecia clásica las paradojas y las encrucijadas han servido para hacernos pensar, reflexionar, debatir y cambiar. Ojalá podamos hacernos cargo urgentemente, con inteligencia y serenidad, de los enormes desafíos que se le plantean a la arquitectura argentina.

 
Curso Representacion de espacios arquitectonicos con 3D Studio Max
 
 
No está permitida la copia, uso y/o reproducción de los artículos sin autorización de sus autores. Está expresamente prohibido reproducir parcial o totalmente cualquier parte de este sitio sin autorización previa y sin indicar la fuente. Para contactarse con Arquimaster realice click aquí.
   
   

Noticias
informes especiales
bienal de arquitectura BA11
bienal de arquitectura BA09
publicaciones

Artículos
notas y artículos de interés
arquitectura legal
diseño de iluminación
software de arquitectura y diseño

Recursos
curso de decoracion (gratis/online)
archivo temático
descargas externas
curso de croquis (gratis/online)

Precios y costos
precios de materiales, indices y
costos m2 de construcción

Proyecto
obras construidas
proyectos para concursos
proyectos de estudiantes
arquitectos destacados
obras destacadas

Diseño
diseño industrial y mobiliario
diseño interior y decoración
Casa FOA 2009
Casa FOA 2010
Casa FOA 2011
Casa FOA 2012
Casa FOA 2013
Casa FOA 2014
Estilo Pilar 2010
Estilo Pilar 2012

Construcción
materiales y tecnologías
novedades de empresas
sector inmobiliario

Agenda
cursos y seminarios
congresos y bienales
charlas y eventos
exposiciones y muestras
concursos

Facultad
becas y subsidios
posgrados y maestrías
donde estudiar

Varios
ofertas laborales arquitectura, diseño y construccion
suscripcion newsletter (gratis)
redes sociales
publicidad

Arquimaster en Facebook
Arquimaster en Twitter
Arquimaster en LinkedIn
Arquimaster en Pinterest