Casa Encanto (Mérida, Yucatán, México) por atelier 16 taller arquitectónico. Casa El Encanto Ermita es un proyecto de vivienda unifamiliar que busca reinterpretar el estilo de vida de una casa del centro histórico de Mérida, integrando nuevos espacios adaptados a las necesidades de la vida contemporánea, sin perder de vista el respeto por la arquitectura original de la casa.
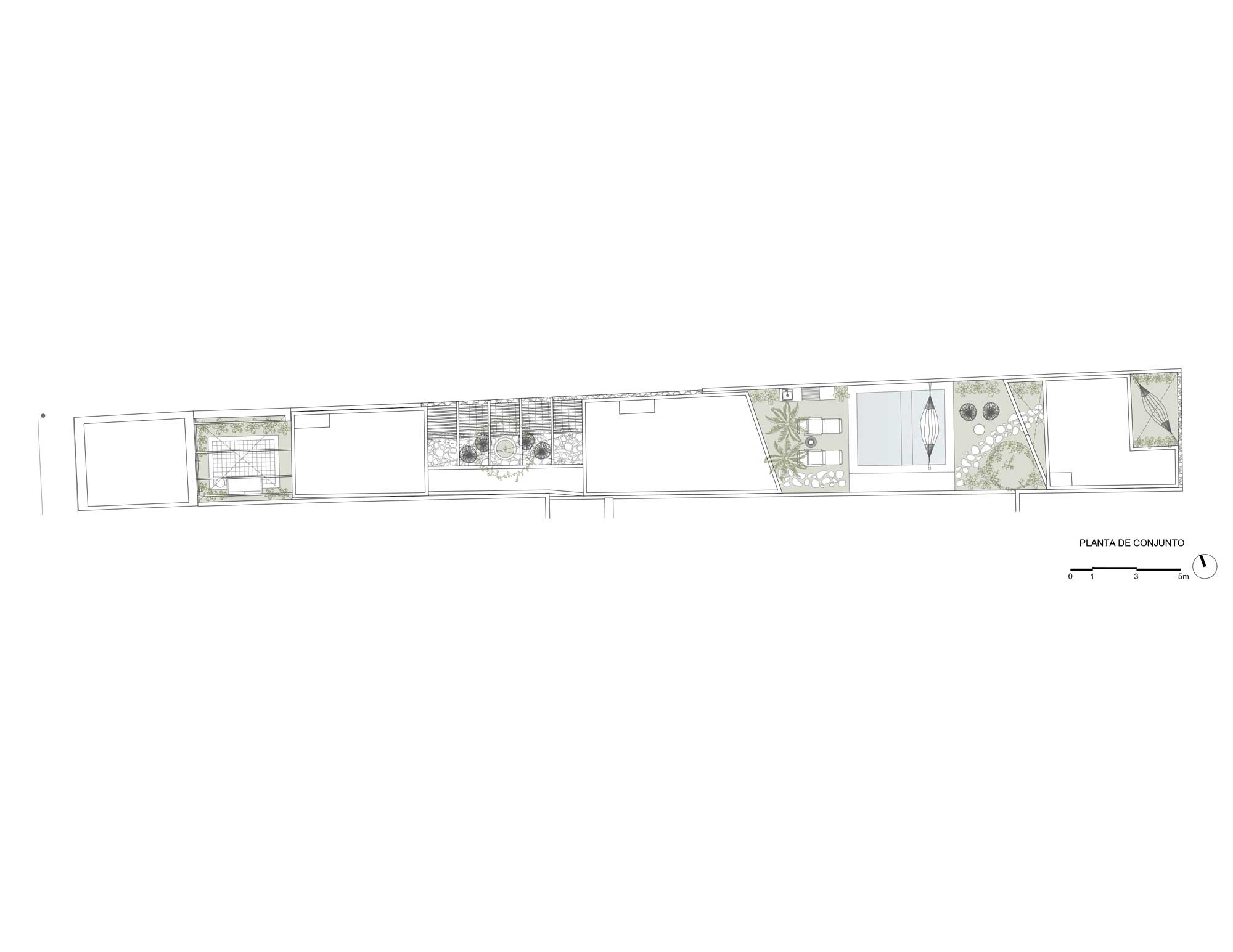
Al tratarse de un terreno muy angosto, de tan solo 4 metros de ancho, el objetivo principal fue aprovechar al máximo la extensión de la propiedad obteniendo como resultado un esquema lineal que permite transitar entre los diferentes nuevos espacios sin necesidad de transitar a través de ellos. Esto se logró mediante la creación de espacios abiertos y semiabiertos, permitiendo una conexión interior-exterior, así como permitir iluminación y ventilación natural.
La inspiración para el proyecto fue la arquitectura colonial yucateca. Una de las intenciones fue rescatar la esencia original de la crujía preexistente ubicada al principio de la vivienda, resaltando los pisos de mosaicos de pasta tradicionales, los muros de mampostería de piedra de la región y las viguetas y viguetillas visibles en el plafón, muy características del sistema de techumbre tradicional de aquella época.
Asimismo, los arcos coloniales fueron reinterpretados a través de formas curvas presentes en los patrones de los pisos de pasta, en las formas de las ventanas y puertas, closets y parte del mobiliario, al igual que en la celosía que logra armonizar con su particular diseño. De la misma manera, la propuesta de un patio central en el proyecto evoca la relación con la arquitectura colonial.
Una de las singularidades de la casa es la presencia de una variedad de atmósferas en sus diferentes rincones. La terraza se distingue por la preservación de la estructura superior existente y los muros de mampostería expuesta, complementados por un mural realizado por la pintora yucateca Adriana Romero y un piso de pasta que aportan color y vitalidad al espacio.
El corazón de la casa es su amplio patio central, donde se descubren las escaleras que conducen a las habitaciones de planta alta. Su techumbre de bahareque protegida por un acrílico transparente en la parte superior, no solo brinda protección contra el sol y la lluvia, además permite la creación de juegos de luces y sombras al interior creando un espacio de paz y contemplación.
Al final de la casa se encuentra la recámara principal para mayor privacidad y tranquilidad. Su fachada en arco no solo funge como remate visual, también funciona como una barrera contra la luz directa del sol reduciendo el calor al interior.
La elección de materiales regionales fue fundamental para la creación de ambientes que reflejen la identidad de la cultura yucateca, incorporando colores vivos presentes en los pisos de pasta con diseños contemporáneos, colores neutros en muros interiores para lograr una sensación de amplitud, concreto pulido en pisos, así como concreto amarillo pigmentado con polvo mineral en muros exteriores, aportando un toque distintivo y una sensación acogedora.
Ficha técnica
Nombre: Casa Encanto
Ubicación: Mérida, Yucatán, México
Oficina de arquitectura: atelier 16 taller arquitectónico
Autores: Arq. Lucía Ríos Santos, C.P. Martha Santos
Diseño de interiores: atelier 16
Mural: Adriana Romero
Superficie: 210,85 m2
Año finalización: 2024
Fotografías: Tamara Uribe @tamarauribeph y Santiago Heyser @santiagoheyser
Instagram: @atelier16proyectos
English version
«Casa El Encanto Ermita» is a single-family home project that seeks to reinterpret the lifestyle of a house in the historic center of Mérida, integrating new spaces adapted to the needs of contemporary life, without losing sight of respect for the original architecture of the house.
As it is a very narrow lot, only 4 meters wide, the main objective was to make the most of the extension of the property, resulting in a linear scheme that allows you to move between the different new spaces without having to walk through them. This was achieved by creating open and semi-open spaces, allowing for an indoor-outdoor connection, as well as allowing natural lighting and ventilation.
The inspiration for the project was Yucatecan colonial architecture. One of the intentions was to rescue the original essence of the pre-existing bay located at the beginning of the house, highlighting the traditional pasta tile floors, the stone masonry walls of the region and the joists and joists visible in the ceiling, very characteristic of the traditional roofing system of that time.
Likewise, the colonial arches were reinterpreted through curved shapes present in the patterns of the pasta tile floors, in the shapes of the windows and doors, closets and part of the furniture, as well as in the lattice that manages to harmonize with its particular design. In the same way, the proposal for a central courtyard in the project evokes the relationship with colonial architecture.
One of the singularities of the house is the presence of a variety of atmospheres in its different corners. The terrace is distinguished by the preservation of the existing upper structure and the exposed masonry walls, complemented by a mural made by the Yucatecan painter Adriana Romero and a pasta tile floor that bring color and vitality to the space.
The heart of the house is its spacious central courtyard, where you discover the stairs that lead to the upstairs rooms. Its bahareque roof protected by a transparent acrylic on the top, not only provides protection against the sun and rain, but also allows the creation of light and shadow games inside, creating a space of peace and contemplation.
At the end of the house is the master bedroom for privacy and tranquility. Its arched façade not only serves as a visual finish, it also works as a barrier against direct sunlight reducing heat to the interior.
The choice of regional materials was fundamental for the creation of environments that reflect the identity of the Yucatecan culture, incorporating bright colors present in the pasta tile floors with contemporary designs, neutral colors in interior walls to achieve a feeling of spaciousness, polished concrete in floors, as well as yellow concrete pigmented with mineral powder in exterior walls, providing a distinctive touch and a cozy feeling.




































