Casa tres patios (Santa Fe, Pcia. de Santa Fe, Argentina) por Arquitectura 370. La Casa tres patios se emplaza en el barrio Candioti sur, uno de los barrios más tradicionales de la ciudad de Santa Fe, delimitado por importantes vías troncales con un constante flujo vehicular. La consolidación del tejido urbano y la morfología del lote -estrecho y entre medianeras- condicionaron el desarrollo del proyecto, que debió responder a estas particularidades con soluciones espaciales eficientes y expresivas.
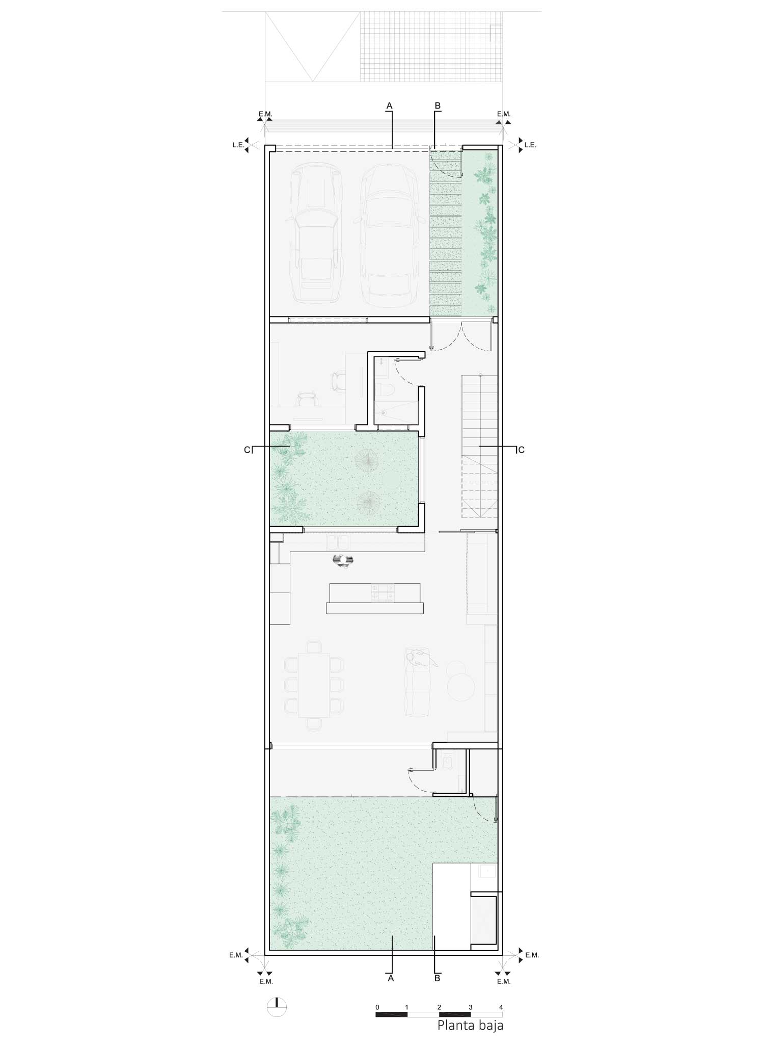
El lote, de 7,50 metros de ancho, presentó un desafío proyectual al momento de organizar las funciones requeridas, garantizando tanto la calidad espacial como el confort ambiental.
Las premisas de diseño -iluminación natural, contacto con el verde, privacidad y funcionalidad- dieron origen a la estrategia de los tres patios, elementos que estructuran la propuesta y articulan los distintos espacios cubiertos, desarrollados en dos niveles.
El acceso a la vivienda se plantea mediante un pórtico con portón metálico de rejas, que da paso al primer patio: un espacio de transición entre la calle y el interior, jerarquizado por un sendero y un cantero lateral que anticipan la atmósfera del resto del proyecto.
Ya en el interior, el recibidor se constituye como el primer espacio cubierto y organiza el recorrido funcional de la vivienda. Desde allí se accede a la oficina, al baño de uso social, al patio interno y a la escalera principal.
El segundo patio, ubicado en el corazón del proyecto, funciona como un pulmón verde que proporciona iluminación, ventilación cruzada y calidad ambiental a los ambientes que lo rodean. Todos los espacios principales de planta baja balconean hacia él, generando una relación directa con el exterior.
A continuación, se desarrolla el espacio social principal -cocina, comedor y estar integrados- que ocupa la totalidad del ancho del lote, aprovechando al máximo el espacio entre medianeras y liberando el área de columnas intermedias. Este espacio se prolonga hacia la galería, que actúa como nexo con el tercer patio: el de mayor superficie, donde se ubican la parrilla, un sector de estar al aire libre y los servicios auxiliares.
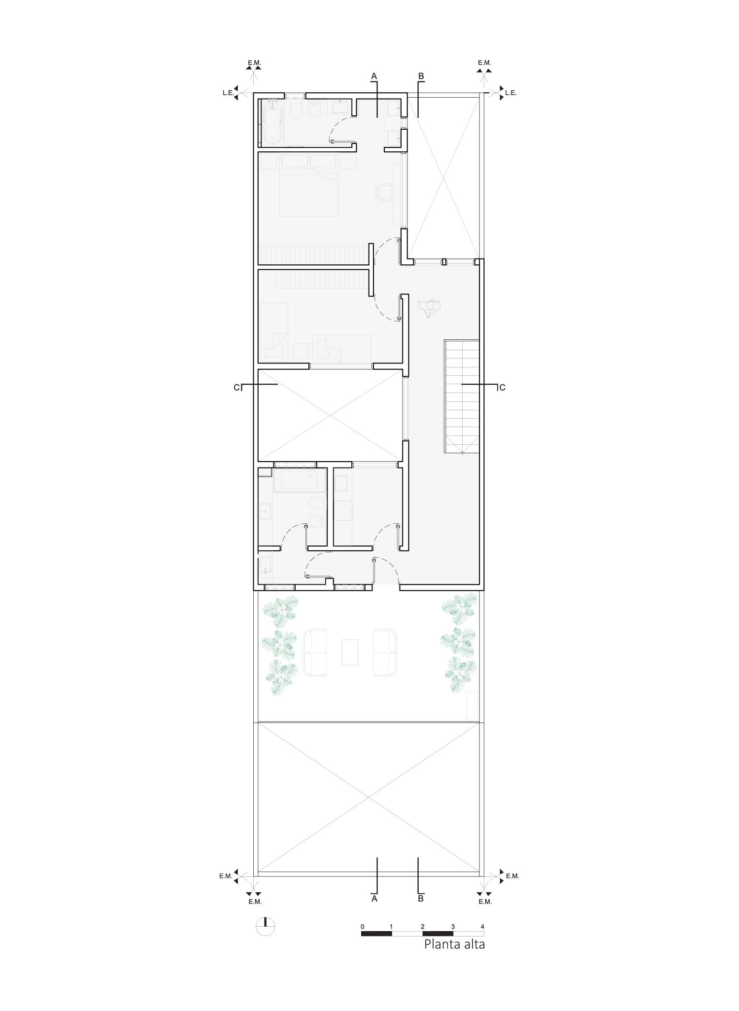
En planta alta se disponen los espacios privados, organizados nuevamente a partir del mismo eje circulatorio que estructura la planta baja. Este corredor remata al norte con dos ventanales de gran escala, que permiten una excelente captación de luz natural y generan una expansión visual hacia el exterior.
A lo largo del recorrido se ubican las dos habitaciones, una de ellas -la principal- con baño en suite. En el extremo opuesto se encuentra el lavadero, un segundo baño completo y el acceso a la terraza, concebida como espacio técnico y posible ampliación futura.
Ficha técnica
Nombre: Casa tres patios
Ubicación: Barrio Candioti Sur, Ciudad de Santa Fe, Pcia. de Santa Fe, Argentina
Oficina de Arquitectura: Estudio Arquitectura 370
Autores: Arquitecto Pablo Lugrín y Dana Brem
Inicio de obra: abril 2023
Finalización: octubre 2024
Fotografías: José Mario Torrez @jose.mario.torrez
Sitio web: https://www.arq370.com.ar
Instagram: @arquitectura370

































