Reforma Estomba: Vivienda con Ascensor (Ciudad de Buenos Aires, Argentina) por RCA+. El proyecto consiste en la incorporación de un núcleo de circulación vertical en una vivienda unifamiliar ubicada en la Ciudad de Buenos Aires. El encargo surge de la necesidad de adaptar la casa a las condiciones de movilidad de sus nuevos habitantes, garantizando el acceso pleno a los distintos niveles de la casa.
La vivienda preexistente, de tres plantas, presentaba limitaciones para usuarios con movilidad reducida. La solución adoptada por el estudio fue la incorporación de un ascensor de estructura metálica adosado a la construcción original, junto con una nueva escalera secundaria que permite un uso complementario del sistema de circulación vertical.
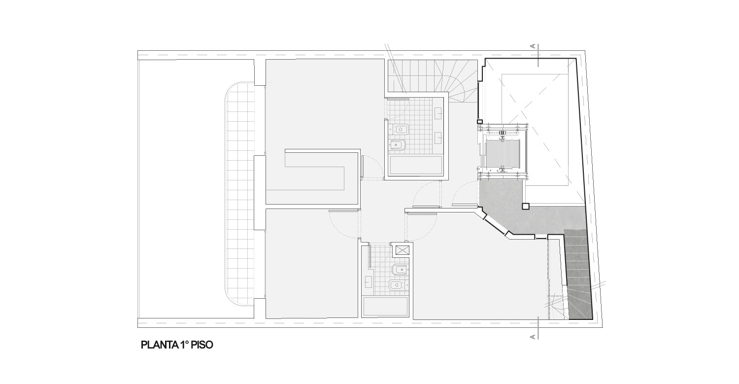
El emplazamiento del ascensor responde a varios criterios funcionales y espaciales. Se ubica contiguo al sector de la piscina, en el límite exterior de la vivienda, permitiendo su construcción sin interferir con las estructuras existentes y facilitando las conexiones programáticas entre los espacios exteriores e interiores. El núcleo se desarrolla a lo largo de los tres niveles, conectando el área social, los dormitorios y la terraza.
Formalmente, el ascensor se resuelve como un volumen independiente, construido en perfilería metálica expuesta sobre una base de hormigón. Este lenguaje permite diferenciar la intervención de la estructura original de la vivienda, evitando mimetismos y asumiendo su carácter de incorporación contemporánea. La estructura metálica, además de su comportamiento constructivo eficiente, permite transparencia visual, reducción de peso estructural y facilidad de montaje en obra.
Como complemento al núcleo vertical, se proyectó una escalera secundaria que desemboca en la terraza. Allí se incorporó una pérgola metálica que actúa como espacio de transición y de sombra, posibilitando nuevos usos sociales y recreativos en el último nivel de la casa.
El proyecto no implica una transformación radical de la vivienda existente, sino una estrategia precisa de actualización funcional, que permite extender el ciclo de uso de la casa y adaptarla a las nuevas condiciones de sus usuarios. El resultado es un sistema de movilidad interna eficiente, discreto en su ocupación volumétrica, pero determinante en la reorganización de los flujos cotidianos.
Ficha técnica
Nombre: Reforma Estomba: Vivienda con Ascensor
Ubicación: Ciudad de Buenos Aires, Argentina
Oficina de arquitectura: RCA+ Arquitecto
Arquitecto: Roberto Colombo
Ingeniería: Rupa Estudio
Paisajismo: Veronica Orione
Marcas: Otis
Superficie: 14,10 m2
Año: 2025
Fotografías: Fabian Dejtiar (https://www.fabiandejtiar.com)
Instagram: @robertocolombo.arq
Acerca de RCA+
RCA+ Arquitecto es un estudio con sede en Buenos Aires dirigido por el arquitecto Roberto Colombo (UBA), con más de 20 años de experiencia en proyectos de arquitectura e interiorismo tanto en Argentina como en el exterior. El estudio desarrolla viviendas y locales comerciales, con un enfoque preciso en la resolución funcional, el diseño contemporáneo y la integración de nuevos sistemas dentro de estructuras existentes. Su trabajo se distingue por intervenciones quirúrgicas que optimizan la circulación, incorporan soluciones de accesibilidad y reorganizan los programas domésticos sin perder la identidad original de los edificios. Colombo ha trabajado previamente en los estudios de Elia Irastorza y Clorindo Testa, ha obtenido premios en concursos como Bioparque Quilmes-Avellaneda y Viviendas POPA en Isla Maciel, y combina su práctica profesional con docencia y producción en artes visuales.


























