Restaurante Bordó (Ciudad de Buenos Aires, Argentina) por Paolini Arquitectos. El proyecto Bordó es una intervención de renovación comercial que trasciende la mera funcionalidad gastronómica para convertirse en un manifiesto arquitectónico del proceso vitivinícola. Diseñado como el marco escenográfico para la propuesta culinaria del Chef Facundo Kelemen (reconocido Bib Gourmand, Michelin), la arquitectura está concebida para que el comensal experimente, de forma subliminal y sensorial, la identidad profunda del producto terminado: el plato y el vino.
La estrategia proyectual se articula a través de la deconstrucción y re-materialización de los cuatro elementos esenciales que definen la calidad de la vid y, por extensión, del vino: Tierra, Sol, Agua y Aire.
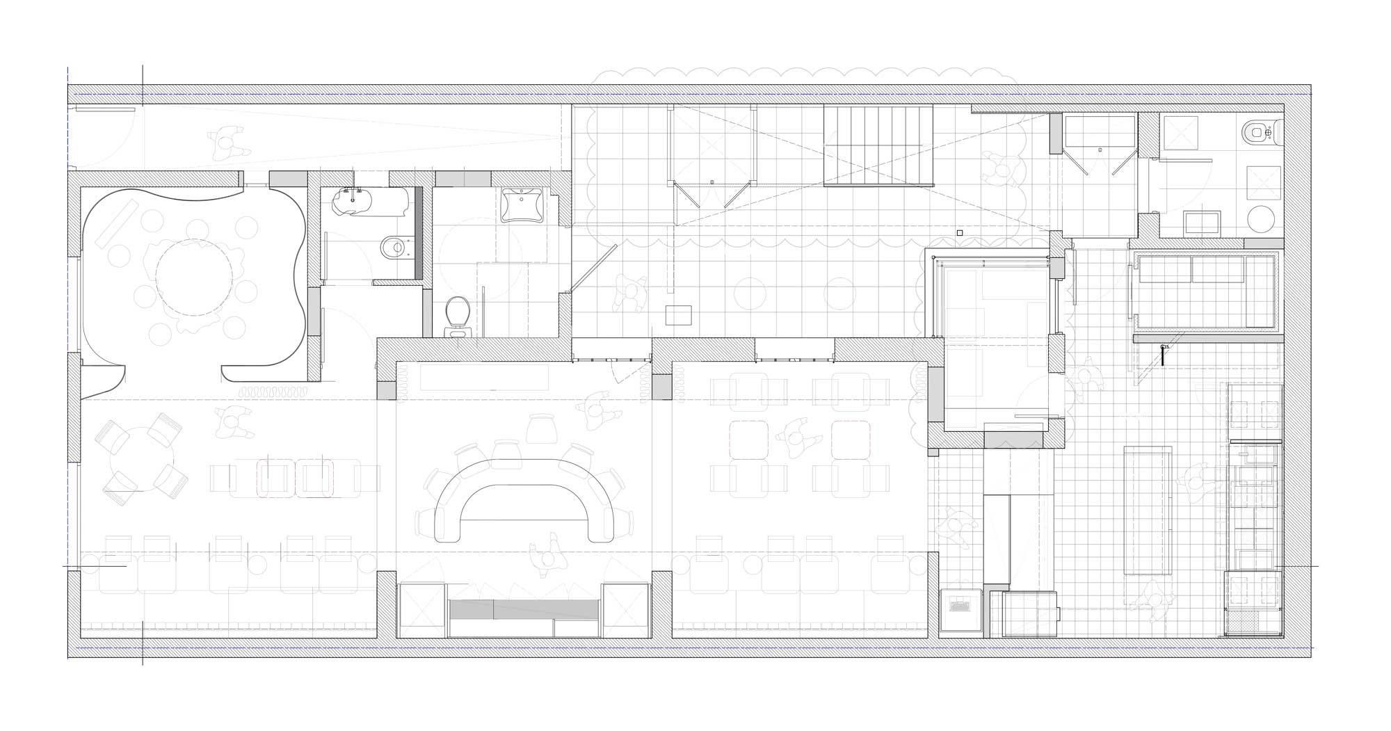
1. Tierra (Acceso y Salón Principal): El acceso se configura como un umbral cambiante y telúrico, preparando al visitante para el recorrido. Los materiales del salón principal se seleccionan por su nobleza y alusión matérica al suelo (terracotas, maderas oscuras y pétreos), anclando la experiencia al origen del producto.
2. Sol (Cava Privada): La cava, santuario del añejamiento, es el espacio donde el Sol se hace visible. Se conceptualiza mediante un diseño lumínico y material que evoca la calidez concentrada y la energía vital necesaria para la maduración, creando un ambiente íntimo de guarda y contemplación.
3. Agua (Cielorrasos): La fluidez y el movimiento del Agua se expresan en el diseño de los cielorrasos. Mediante superficies dinámicas o texturizadas, se introduce una cualidad de ligereza e inconstancia que contrasta con la solidez de la Tierra, aludiendo a la hidrología esencial del terroir.
4. Aire (Barra y Disfrute): El Aire, catalizador del disfrute final, se materializa en el sector de la Barra. Este espacio se destina a la socialización y la música, liberando la experiencia gastronómica en un ambiente de efervescencia y ligereza, culminando la secuencia de los elementos.
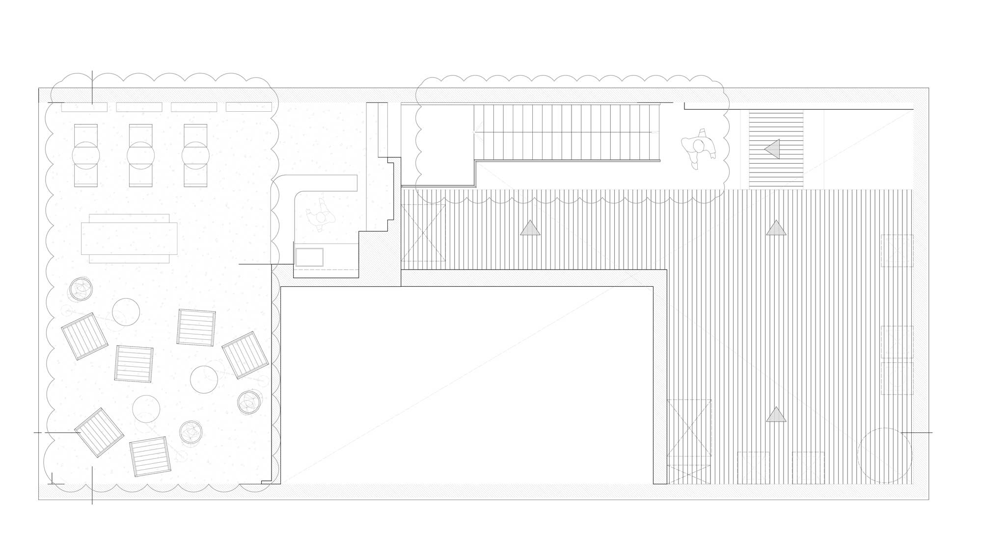
El proyecto abordó el desafío de una preexistencia de casa antigua, en donde se buscó recuperar la relación simbiótica con el espacio urbano que otorga la vereda. Esto se logró mediante la generación de una «vereda expandida» en el espacio de la terraza. Este espacio exterior ofrece una propuesta de menú diferenciada, articulando la vida del restaurante con el pulso de la ciudad.
La fachada actúa como el producto terminado: una composición de líneas puras y materiales nobles en un tono bordó profundo, que sintetiza la riqueza cromática del vino. La coronación formal mediante una «lengua» y ornamentos dorados es una clara alusión gráfica a la etiqueta, sello de identidad y calidad.
Internamente, la distribución se organiza en tres nodos clave que enmarcan al verdadero protagonista: el plato y el vino.
Cava: Invocación a la naturaleza y el origen, con detalles en el mobiliario que sugieren la raíz de la vid.
Salón Principal: Ambiente de inmersión táctil y visual en los elementos primarios.
Barra: Espacio de celebración y ligereza para el disfrute culminante.
Bordó no es solo un restaurante, sino una arquitectura de la degustación, donde cada decisión de diseño, desde la tectónica hasta la paleta cromática, es una metáfora construida que acompaña al comensal en un viaje sensorial, desde el viñedo hasta la copa.
Ficha técnica
Nombre: BORDÓ
Ubicación: Ciudad de Buenos Aires, Argentina
Oficina de Arquitectura: Paolini Arquitectos
Arquitectos a Cargo: Francisco Paolini, Manuel Pozzo
Equipo de Diseño: Paolini Arquitectos
Paisajismo: Tou Tou
Constructora: Brickline
Equipamiento gastronómico: Ingeniería Gastronómica
Carpintería a medida: MRM diseños
Iluminación: Eurolamp
Superficie construida: 200 m2
Año finalización construcción: 2024
Fotografías: Mechi Fahs @mechifahs
Sitio Web: https://www.paoliniarquitectos.com/bordo/
English version
The Bordó project is a commercial renovation intervention that transcends mere gastronomic functionality to become an architectural manifesto of the winemaking process. Designed as the scenographic framework for the culinary proposal of Chef Facundo Kelemen (a recognized Bib Gourmand, Michelin distinction), the architecture is conceived to allow the diner to experience, in a subliminal and sensorial way, the deep identity of the finished product: the dish and the wine.
The design strategy is articulated through the deconstruction and re-materialization of the four essential elements that define the quality of the vine and, by extension, the wine: Earth, Sun, Water, and Air.
Earth (Access and Main Hall): The entrance is configured as a changing and telluric threshold, preparing the visitor for the journey. The materials in the main hall are selected for their nobility and material allusion to the soil (terracotta, dark woods, and stony surfaces), anchoring the experience to the product’s origin.
Sun (Private Cellar – Cava): The cellar, a sanctuary for aging, is the space where the Sun becomes visible. It is conceptualized through a lighting and material design that evokes the concentrated warmth and vital energy necessary for maturation, creating an intimate atmosphere of storage and contemplation.
Water (Ceilings): The fluidity and movement of Water are expressed in the ceiling design. Through dynamic or textured surfaces, a quality of lightness and inconstancy is introduced, contrasting with the solidity of the Earth, alluding to the essential hydrology of the terroir.
Air (Bar and Enjoyment Area): Air, the catalyst for the final enjoyment, is materialized in the Bar area. This space is dedicated to socialization and music, releasing the gastronomic experience in an environment of effervescence and lightness, culminating the sequence of elements.
The project addressed the challenge of an existing old house, where the goal was to recover the symbiotic relationship with the urban space provided by the sidewalk. This was achieved by generating an «expanded sidewalk» (vereda expandida) in the terrace space. This exterior area offers a differentiated menu proposal, articulating the life of the restaurant with the pulse of the city.
The façade acts as the finished product: a composition of pure lines and noble materials in a deep bordó (burgundy) tone, synthesizing the chromatic richness of the wine. The formal crowning through a «tongue» and golden ornaments is a clear graphic allusion to the label, a hallmark of identity and quality.
Internally, the distribution is organized into three key nodes that frame the true protagonist: the dish and the wine.
Cellar: Invocation of nature and origin, with furniture details that suggest the root of the vine.
Main Hall: An environment of tactile and visual immersion in the primary elements.
Bar: A space for celebration and lightness for the culminating enjoyment.
Bordó is not just a restaurant but an architecture of tasting, where every design decision, from tectonics to the chromatic palette, is a constructed metaphor that accompanies the diner on a sensorial journey, from the vineyard to the glass.




























