Vivienda unifamiliar La Ballena / Brigati-Polak Arquitectos
Vivienda unifamiliar La Ballena (General Lagos, Rosario, Pcia. de Santa Fe, Argentina) por Brigati-Polak Arquitectos. La obra se ubica en un entorno suburbano, a 40 kilómetros de la ciudad de Rosario, Argentina, en un claro de eucaliptus añejos que enmarcan y definen la atmósfera del proyecto. La presencia de este bosque condiciona la implantación y otorga un carácter distintivo: la arquitectura no llega a dominar el lugar, sino a convivir con él, reconociendo el valor del tiempo y de la naturaleza como protagonistas.
Idea y poética En nuestro estudio concebimos cada obra como una oportunidad para reflexionar sobre los cambios en la forma de habitar. La casa no se entiende como una pieza estática, sino como un organismo que responde a los modos actuales de vida y a la transformación constante de las familias.
La búsqueda no radica en complacer expectativas ajenas -ni de clientes ni de jurados-, sino en generar un proceso de investigación que, aunque desafiante, permita dejar premisas auténticas y válidas para proyectos futuros. Sabemos que desistir de la arquitectura reflexiva puede derivar en insatisfacción; por eso, cada obra se plantea como un ensayo abierto, dispuesto a proponer una nueva visión.
Vivienda unifamiliar La Ballena / Brigati-Polak Arquitectos (planta subsuelo)
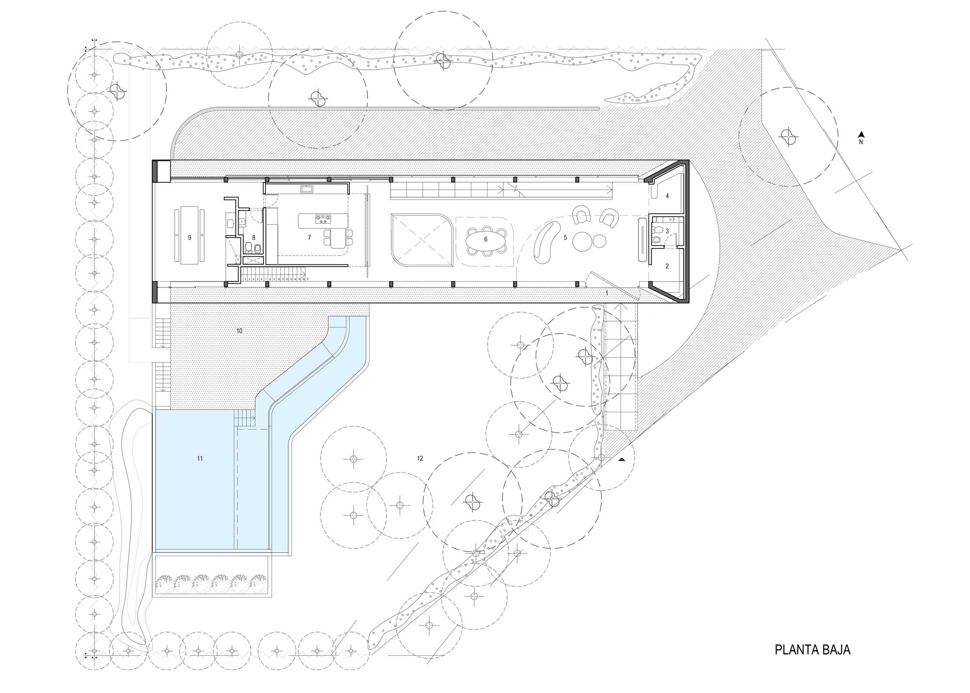
Vivienda unifamiliar La Ballena / Brigati-Polak Arquitectos (planta baja)
Vivienda unifamiliar La Ballena / Brigati-Polak Arquitectos (planta alta)
Vivienda unifamiliar La Ballena / Brigati-Polak Arquitectos (planta de techos)
Vivienda unifamiliar La Ballena / Brigati-Polak Arquitectos (corte longitudinal)
Vivienda unifamiliar La Ballena / Brigati-Polak Arquitectos (corte transversal)
Vivienda unifamiliar La Ballena / Brigati-Polak Arquitectos (vista norte)
Vivienda unifamiliar La Ballena / Brigati-Polak Arquitectos (vista este)
Vivienda unifamiliar La Ballena / Brigati-Polak Arquitectos (vista oeste)
Vivienda unifamiliar La Ballena / Brigati-Polak Arquitectos (vista sur)
Espacialidad y programa El proyecto reconoce los nuevos usos de la vida contemporánea: la flexibilidad de los espacios, la difusa frontera entre lo público y lo privado, lo social y el espacio personal, la necesidad de ámbitos de encuentro y, al mismo tiempo, de refugio.
Se evitaron así repeticiones y fórmulas conocidas, buscando que cada ambiente encuentre sentido en su relación con el bosque circundante. La transparencia, los recorridos diagonales y las aperturas estratégicas generan un vínculo permanente con los eucaliptus, integrando la vida doméstica a un paisaje de sombra, aroma y memoria.
Materialidad y tecnología Los materiales elegidos responden tanto a la nobleza constructiva como a la intención poética: hormigón visto y madera para consolidar la estructura y el arraigo; vidrio y acero para enfatizar la ligereza y el diálogo con la naturaleza. La materialidad refuerza la dualidad buscada entre permanencia y cambio, entre peso y liviandad, entre refugio y apertura.
Cada obra debe responder tecnológicamente al periodo de la historia que ocupa y responder a las preguntas pertinentes a dicho periodo. La nuestra fue la obtención de la energía, así que en respuesta a esta pregunta tan arraigada a nuestra época la respuesta fue la geotermia, usando la corteza terrestre como máquina termodinámica, generando por este medio la climatización, la producción de agua sanitaria y la radiación solar como fuente de energía de apoyo a la principal.
Conclusión Esta casa no pretende ser un objeto aislado ni un gesto de autor, sino una pieza que se inserta en el tiempo y en el bosque. Un ensayo arquitectónico que busca identificar los cambios en el habitar, proponer nuevas formas de vida y evitar la repetición, en un proceso constante de investigación. En cada obra aspiramos a que la arquitectura no se limite a resolver una necesidad, sino que se convierta en una oportunidad para interrogar el presente y proyectar el futuro.
Ficha técnica Nombre: La Ballena Ubicación: Barrio Puerto Paraiso, General Lagos, Rosario, Pcia. de Santa Fe, Argentina Proyecto y Dirección: Arq. Federico Brigati, Arq. Gustavo Polak Interiorismo: Arq. Ziomara Cevey Cálculo Estructural: Ing. Fernando Fabbro Colaboradores: Arq. Maria Laura Casasola, Arq. Aldana Zitta, Arq. Nestor Gabas, Lucas Cosalini Superfice del terreno: 1360 m2 Superficie edificada: 650 m2 Año de Proyecto/Construcción: 2023/2025 Fotografías: Ramiro Sosa Instagram: @brigatipolak