C4 Minimal House (Arroyo de la Encomienda, Valladolid, España) por COBO-DONOSO Arquitectos. C4 Minimal House redefine la vivienda unifamiliar como un ejercicio de precisión, donde cada elemento responde a una lógica clara y necesaria.
Ubicada en un contexto urbano de carácter residencial, la propuesta parte de un entorno heterogéneo que carece de un lenguaje común, condicionado por normativas y tipologías convencionales que tienden a la repetición.
El cliente buscaba romper con este patrón mediante una casa que priorizara la claridad, las vistas y la luz, mientras planteaba la necesidad de una vivienda contemporánea, funcional y altamente depurada, capaz de diferenciarse sin recurrir a gestos formales excesivos.
El proyecto responde mediante una estrategia de reducción con menos elementos, pero con más intención, más detalles y más control.
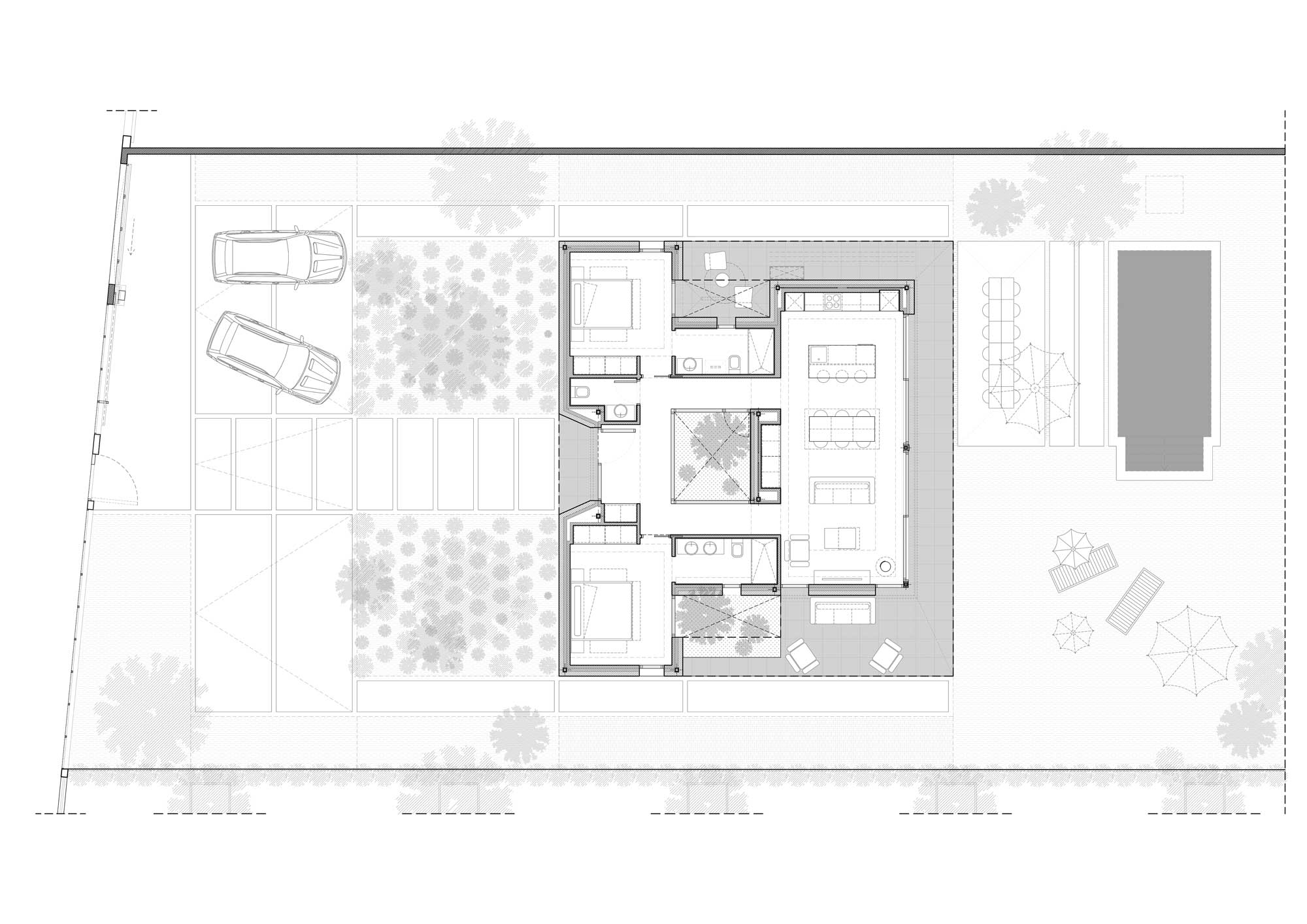
El proyecto se concibe como un volumen limpio y compacto que organiza el programa en torno a relaciones espaciales directas. La planta se estructura a través de un patio para maximizar la eficiencia y la claridad, evitando recorridos innecesarios. Esta organización permite que cada espacio tenga un propósito definido, al tiempo que mantiene conexiones visuales que amplían la percepción del conjunto.
La materialidad juega un papel fundamental en la construcción de la identidad del proyecto. La elección de acabados neutros y continuos refuerza la idea de unidad, mientras que la precisión en los detalles constructivos garantiza una ejecución coherente con el concepto inicial. La arquitectura se expresa sin ornamento, confiando en la proporción y la luz.
La arquitectura se construye a partir de la luz. Grandes aperturas cuidadosamente posicionadas introducen iluminación natural controlada, generando contrastes y atmósferas cambiantes a lo largo del día. Esta luz no solo ilumina, sino que define los espacios, convirtiéndose en un material más del proyecto y aportando riqueza sensorial a una arquitectura aparentemente contenida.
Los porches se conciben como planos inclinados y afinados que actúan como precisos dispositivos de control solar. Su geometría responde a la incidencia del sol a lo largo del año, permitiendo la entrada de radiación en invierno y generando sombra en verano. Esta estrategia pasiva mejora el comportamiento energético y define una imagen arquitectónica reconocible. Los vuelos, ligeros y tensos, refuerzan la horizontalidad y dotan a la casa de una identidad formal clara, donde técnica y expresión convergen.
El patio interior se plantea como una pieza clave en la organización ambiental de la vivienda. Actúa como regulador climático favoreciendo la ventilación cruzada y permitiendo la entrada de aire, aromas y humedad de la vegetación. Al mismo tiempo, funciona como filtro entre la calle y las estancias principales, garantizando privacidad sin renunciar a las vistas. Esta doble condición permite una iluminación más profunda y matizada, equilibrando introspección y apertura.
Para sus habitantes, la casa ofrece un entorno ordenado y flexible. La claridad espacial facilita el uso cotidiano y permite una adaptación natural a diferentes modos de vida.
No es solo una casa, sino una declaración sobre cómo vivir con menos para experimentar más. Su impacto radica en demostrar que la contención, cuando es precisa, puede generar una arquitectura profundamente significativa.
Ficha técnica
Nombre: C4 Minimal House
Ubicación: Arroyo de la Encomienda, Valladolid, España
Oficina de arquitectura: COBO-DONOSO Arquitectos
Superficie construida: 141,70 m2
Año finalización construcción: 2025
Fotografías: David Spence
Sitio web: https://www.cobodonoso.com
Instagram: @cobodonoso
Facebook: COBODONOSOarquitectos




























