Reforma de vivienda en Calle Parlament (Barcelona, España) por h3o architects. La reforma de este piso en el barrio de Sant Antoni de Barcelona, reorganiza una vivienda originalmente compartimentada.
El proyecto parte de vaciar la distribución existente para transformar el espacio en una planta continua articulada por una serie de piezas de mobiliario que estructuran el programa doméstico.
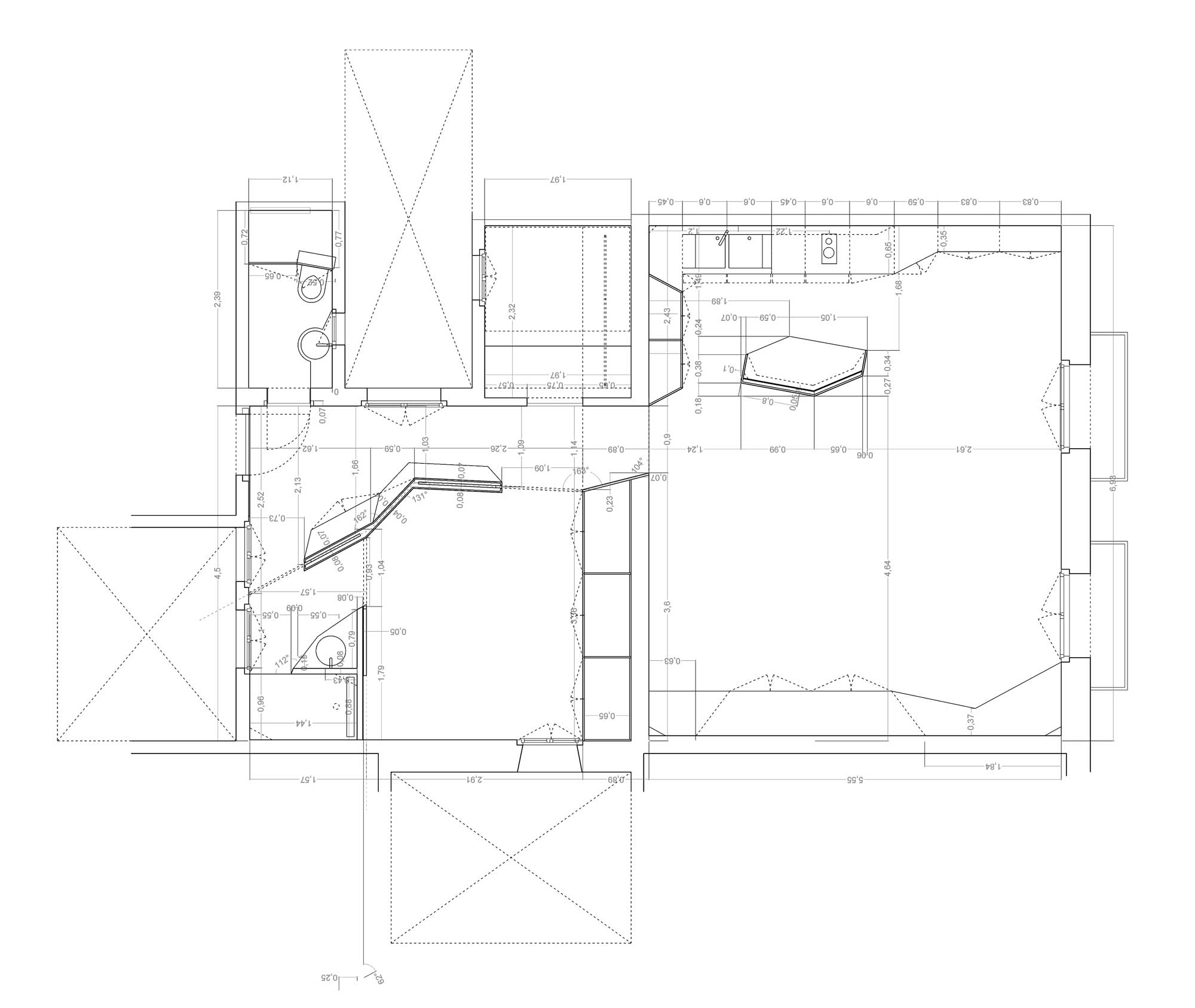
Estos elementos nombrados (in)muebles, entre mueble y arquitectura, integran funciones específicas y permiten delimitar áreas de uso sin interrumpir la continuidad espacial, introduciendo además carácter y materialidad mediante una combinación de materiales y tonos.
(In)muebles en el lienzo
La reforma de un ‘loft-no loft’ en el carrer Parlament de Barcelona, o cómo llenar un lienzo en blanco mediante muebles de sinuosas formas que definen el hogar.
Dificultad y virtud
La Casa Xurigué, dibujada y construida en 1868 por el maestro de obras Pau Martorell en el corazón del barrio de Sant Antoni, fue de las primeras construcciones (ilegales) del Ensanche Cerdà. Situada justo en los extramuros de lo que había sido el portal de Sant Antoni y donde, 10 años más tarde, aparecería el mercado actual, era uno de esos edificios barceloneses que vivía entre épocas.
En un Ensanche todavía sin imaginar que precisaría de 30 años más para la concreción de la «tipología», La Casa Xurigué aún se enmarca en una tradición exportada de la Ciutat Vella, donde los maestros de obras levantaban inmuebles acostumbrados a sus estrechas crujías.
Es así como la condición de edificio pionero en el Ensanche de la Casa Xurigué se manifiesta en las peculiares soluciones estructurales y de iluminación. Originalmente, la organización espacial estaba condicionada por dos crujías muy profundas (6 metros) atravesadas por un muro de carga con una pequeña abertura que comunicaba, pero también ahogaba la continuidad entre estancias. Por otro lado, tres luminosos patios oxigenaban generosamente la vivienda.
Loft sí y no en un lienzo en blanco
El reto del proyecto fue buscar, en contraposición a la distribución original, una vivienda diáfana que permitiera disfrutar de los 80 m2 como un continuo espacial pero que a la vez pudiera compartimentarse.
Una de las primeras decisiones fue vaciar y unificar el espacio convirtiéndolo en un lienzo en blanco definido por sus 3 patios y el muro de carga que lo corta en 2. Así, se dilata la sensación de un espacio generoso y rebosante de luz.
En segundo lugar, definimos los usos y soportes en su interior.
Los (in)muebles
Ante la uniformidad lograda mediante el color blanco, introdujimos los «(In)muebles» que, por su materialidad y forma, vibran y llenan de vida a la vivienda. Se trata de muebles inmóviles, (in)muebles.
(In)muebles que dispuestos en tensión dentro del vacío neutro permiten generar espacios identificables y diferenciables, a la vez relacionados en un continuo.
(In)muebles que dinamizan el hogar y crean recorridos circulares como estrategia para aumentar la complejidad del juego espacial.
(In)muebles que, como todos los muebles, integran funciones del habitar; librería, banco, cocina, sofá, pica y ducha.
(In)muebles que mezclan el color crema, el mármol rosa, el cedro teñido, el inox y un puñado de enchufes negros.
Ficha técnica
Nombre: Reforma de vivienda en Calle Parlament
Ubicación: Barcelona, España
Estudio de arquitectura: h3o architects
Área construida: 80m2
Constructor: Forma Bcn
Año: 2019
Fotografías: Adrià Goula y Slowkind
Sitio web: https://www.h3o.es
Instagram: @h3oarchitects
English version
Apartment Renovation on Carrer Parlament
The renovation of this apartment in Barcelona’s Sant Antoni neighborhood reorganizes a dwelling that was originally highly compartmentalized.
The project begins by clearing the existing layout to transform the space into a continuous floor plan articulated by a series of furniture elements that structure the domestic program.
These elements, referred to as (in)movables -positioned between furniture and architecture- integrate specific functions and define areas of use without interrupting the spatial continuity, while also introducing character and materiality through a combination of materials and tones.
(in)movables on canvas
The refurbishment of a «Loft not Loft» in Parlament Street in Barcelona, or how to fill a white canvas with «movables» (furniture) of sinuous shapes that define living spaces.
Difficulty and Virtue
The Xurigué building was drawn and built in 1868 by the master builder Pau Martorell in the heart of Sant Antoni neighborhood. It was one of the first illegal constructions in Cerdà’s Eixample and it was located just outside the walls of what had been the Gate of Sant Antoni and where 10 years later the current market would appear.
This is one of those Barcelona buildings born between eras. In an Eixample that still had not defined its specific «Eixample Typology», the Xurigué building is part of the tradition exported from Ciutat Vella neighborhood, where masters used to build in narrow bays.
The fact of being a pioneer building of the Eixample is reflected in the particular structural and lighting solutions. Originally, the spatial organization was conditioned by 2 very deep bays (6m long) crossed by a bearing wall with a small opening that communicated -but also stifled the continuity- among rooms. On the other hand, three bright courtyards generously oxygenated the house.
Loft yes but not on a white canvas
One of the project challenges was to seek, against the original distribution, a diaphanous dwelling to fully enjoy the 80sqm as a spatial continuum. At the same time, it had to be compartmentalized.
The first decision was to empty and unify the space turning it into a white canvas defined by its 3 patios and the bearing wall. Thus, the feeling of a generous and overflowing space was accentuated.
Then we defined the different supports.
The (im)movables
Once having the whiteness of the empty space, some new elements are placed: the (im)movables. Due to their materiality and shape, they vibrate and fill the apartment with objectual life. They are immovable movables.
(Im)movables arranged within the neutral space to differentiate rooms in a spatial continuum.
(Im)movables creating circular flows to increase spatial complexity.
(Im)movables that -like «movables»- integrate home-living elements: bookstore, bench, kitchen, sofa, sink and shower.
(Im)movables mixing cream color, pink marble, wood, some stainless steel and a punch of black plugs.
























