Casa Arrayán (Morelia, Michoacán, México) por Eric Guzmán Arquitectos. Casa Arrayán es un proyecto concebido para una familia joven de cuatro integrantes, que buscaba un refugio de privacidad y calidez, con un enfoque muy claro: controlar cuidadosamente las vistas hacia el exterior.
Ubicada en un fraccionamiento privado en la zona alta de Morelia, Michoacán, la casa aprovecha su emplazamiento para capturar vistas privilegiadas de la ciudad y sus atardeceres.
El diseño apuesta por un uso contenido de materiales, priorizando aquellos que transmiten calidez en los espacios sociales y privacidad en las áreas íntimas.
Desarrollada en un terreno regular de 12 metros de frente por 16 metros de fondo, con una pendiente descendente de 4 metros y orientación de fachada norte, el proyecto plantea una estrategia basada en grandes ventanales al sur, que permiten la entrada abundante de luz natural y generan una atmósfera cálida en el interior.
El eje vertebral de la circulación es una escalera recta que organiza la distribución de toda la vivienda, convirtiéndose en un elemento articulador de los espacios.
Hacia el exterior, la casa presenta una fachada sobria y cerrada, que invita al descubrimiento progresivo de sus interiores, protegiendo la privacidad y controlando deliberadamente las vistas desde adentro hacia afuera.
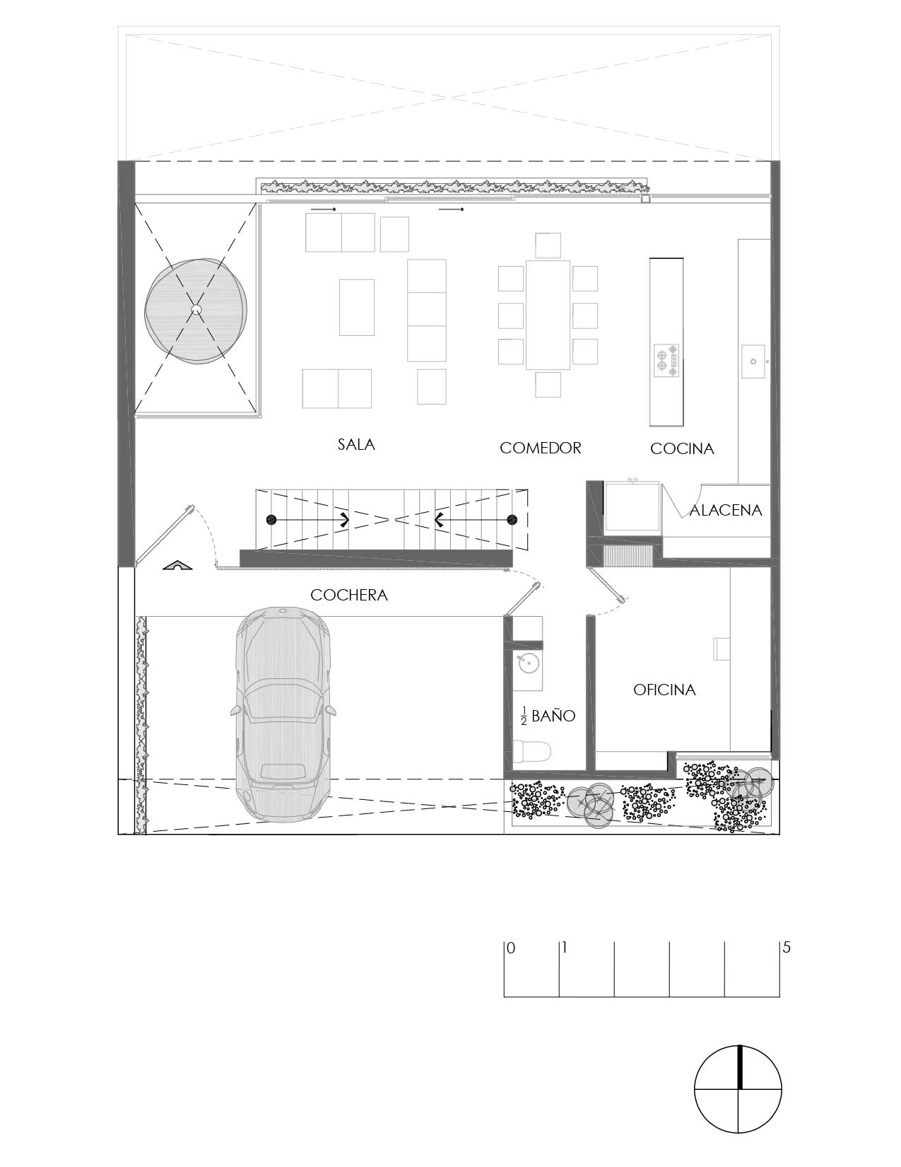
El acceso principal se da a nivel de planta baja, donde un árbol Arrayán actúa como remate visual, visible desde un nivel inferior en un espacio a doble altura. En este mismo nivel se desarrolla un área social de concepto abierto que integra sala, comedor y cocina en un solo ambiente, promoviendo la convivencia familiar diaria. También en esta planta se ubica una oficina con grandes ventanales que ofrecen iluminación natural privilegiada.
La escalera, como pieza protagónica y articuladora del proyecto, se concibe como un trazo ligero y esbelto: un barandal minimalista de herrería acompaña su recorrido, mientras los escalones, forrados en madera de ingeniería, mantienen continuidad en el material de pisos para reforzar la unidad espacial.
La decisión de conservar el mismo bloque de escaleras en todos los niveles permite, al llegar al roof garden, culminar el recorrido con una poderosa experiencia visual: la ciudad de Morelia se despliega ante el usuario conforme asciende, cerrando el paseo arquitectónico con una imagen memorable.
Ficha técnica
Nombre: Casa Arrayán
Ubicación: Morelia, Michoacán, México
Oficina de arquitectura: Eric Guzmán Arquitectos
Arquitecto a cargo: Eric Guzmán
Superficie construida: 330 m2
Año finalización construcción: 2025
Fotografías: César Belio @cesarbelio
Instagram: @ericguzmanarq


























