Residencia UNPUENTE (Valle de Calamuchita, Córdoba, Argentina) por Paolini Arquitectos. UNPUENTE es una vivienda unifamiliar concebida como un refugio multifuncional, que equilibra el encuentro familiar de fin de semana con la intimidad en pareja. Emplazada en un barrio cerrado sobre el Embalse Los Molinos, en el Valle de Calamuchita, Córdoba, la residencia se integra a un entorno natural privilegiado, rodeado de bosque y con vistas directas al lago. Este contexto idílico no solo promueve la unión familiar en la paz de la naturaleza, sino que también fomenta la conexión con el deporte acuático, reflejando un estilo de vida activo y sereno.
La casa intentó desde el principio ser UNPUENTE, un puente generacional, un puente entre el bosque y el lago, un puente de unión entre los anfitriones y las visitas, un puente transparente, sin prejuicios y con mucho disfrute.
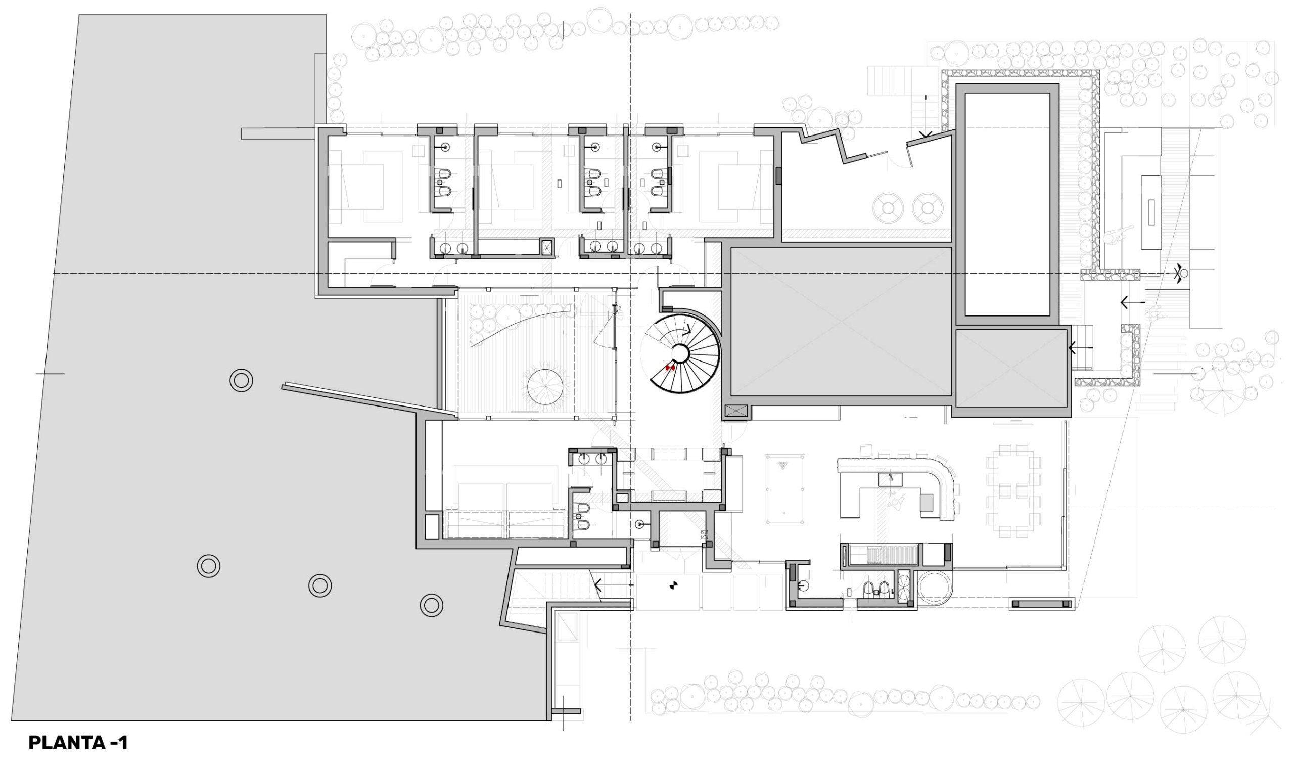
El diseño y la distribución de UNPUENTE responden directamente al principal desafío del terreno: su pronunciada pendiente. La solución arquitectónica se materializa en una casa de dos plantas, con un acceso distintivo a través de un puente que, sutilmente, evoca la forma de una lengua extendiéndose hacia el lago.
En la planta alta, al nivel de la calle, se organiza el programa principal: la suite principal, las amplias áreas sociales y un acceso de servicio resuelto a través de una cochera. Las áreas sociales fueron estratégicamente orientadas con una ligera inclinación, maximizando así las vistas panorámicas al embalse e incorporando una galería, solárium y piscina que amplifican la experiencia del exterior.
La conexión entre niveles se realiza a través de una escalera helicoidal central, que no solo funciona como elemento escultórico de gran impronta, sino que también se ilumina dramáticamente mediante una lucera cenital.
Esta desciende a la planta baja semienterrada, un nivel diseñado con patios centrales y laterales que aseguran ventilación cruzada, iluminación natural y una privacidad excepcional. Aquí se ubica un SUM (Salón de Usos Múltiples), concebido como un espacio versátil para el encuentro con amigos, equipado con parrilla y áreas de juegos. Su diseño permite un acceso independiente, facilitando la separación de ambientes y actividades sin interferir con la dinámica general de la vivienda.
La selección de materiales y acabados responde a la premisa familiar de bajo mantenimiento y durabilidad. Predominan elementos nobles y rústicos como la madera, el hormigón visto y el hierro, que no solo garantizan resistencia al paso del tiempo y al entorno natural, sino que también confieren una estética sólida y atemporal al conjunto.
Ficha técnica
Nombre: UNPUENTE
Ubicación: Valle de Calamuchita, Córdoba, Argentina
Oficina de Arquitectura: Paolini Arquitectos
Arquitectos a cargo: Francisco Paolini, Manuel Pozzo
Equipo de Diseño: Grupo Paolini
Ingeniería: INCORP
Paisajismo: Ing. Mario Suárez
Constructora: Bauvek
Superficie construida: 564 m2
Año finalización construcción: 2024
Fotografía: Arq. Gonzalo Viramonte @gonzaloviramonte
Sitio web: https://www.paoliniarquitectos.com
English version
Project and Execution. A challenging footprint, strict code, extensive program, a family, a forest, and a lake.
UNPUENTE is a single-family residence conceived as a multifunctional retreat, balancing weekend family gatherings with a private sanctuary for a couple. Sited within a gated community overlooking the Los Molinos Reservoir in the Calamuchita Valley, Córdoba, the home seamlessly integrates into a privileged natural setting, surrounded by forest and offering direct views of the lake.
This idyllic context not only fosters family unity amidst the tranquility of nature but also encourages engagement with water sports, reflecting a lifestyle that is both active and serene.
From its inception, the house sought to be UNPUENTE (The Bridge): a generational bridge, a bridge between the forest and the lake, a bridge connecting hosts and guests, a transparent bridge, without prejudice and with a focus on enjoyment.
The design and distribution of UNPUENTE directly address the primary challenge of the site’s pronounced slope. The architectural solution is materialized as a two-story home, with a distinctive approach via a bridge that subtly evokes a tongue extending towards the lake.
On the upper floor, at street level, the primary program is organized: the master suite, the expansive social areas, and service access via a garage. The social areas were strategically oriented with a slight inclination, thereby maximizing panoramic views of the reservoir and incorporating a gallery, solarium, and swimming pool that amplify the outdoor experience.
The connection between levels is achieved via a central helical staircase, which functions not only as a sculptural element of significant visual impact but is also dramatically illuminated by a central skylight. This descends to the semi-submerged lower floor, a level designed with central and lateral courtyards that ensure cross-ventilation, natural light, and exceptional privacy.
This floor houses a SUM (Multipurpose Room), conceived as a versatile space for gathering with friends, equipped with a grill and games area. Its design allows for independent access, facilitating the separation of ambiances and activities without interfering with the home’s overall dynamic.
The selection of materials and finishes adheres to the family’s premise of low maintenance and durability. Noble and rustic elements such as wood, exposed concrete, and steel predominate, which not only ensure resistance to the passage of time and the natural environment but also confer a solid and timeless aesthetic to the entire assembly.



















