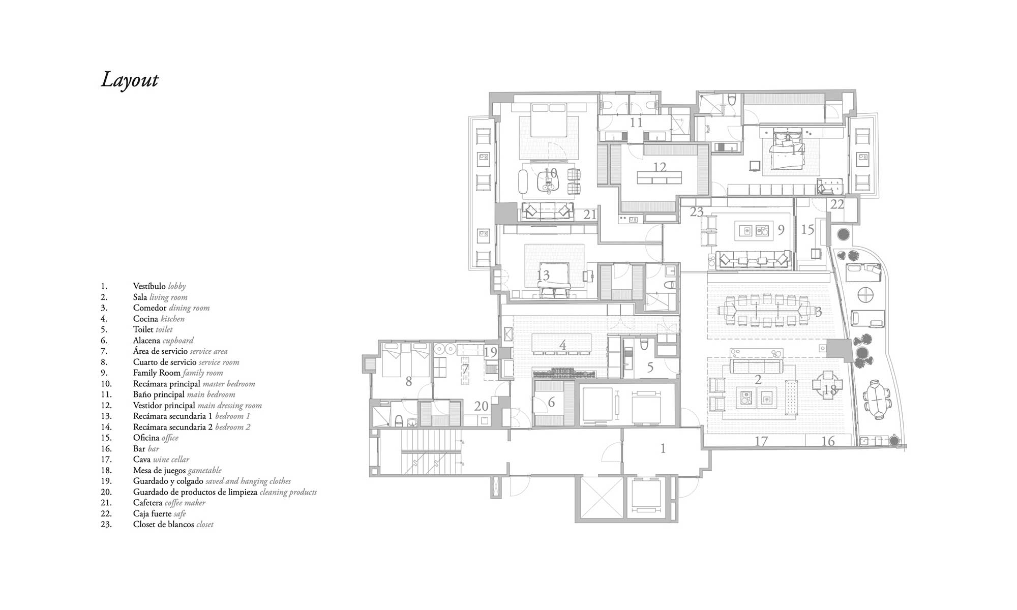
Departamento Club de Golf Bosques (Lomas de Vista Hermosa, Ciudad de México, México) por Taller David Dana (TDDA). Club de Golf Bosques se presenta como una manifestación de la creatividad y el ingenio, donde la selección de decisiones de diseño se convierte en la clave para la concreción de una obra singular. Aquí, las formas y los materiales se fusionan en una danza libre y atemporal, creando un espacio que encarna la convergencia de tradición y modernidad.
Este proyecto toma como punto de partida la arquitectura contemporánea, se nutre de elementos que confieren una identidad propia y un carácter distintivo. Desde el lobby, los miembros y visitantes pueden dirigirse con facilidad hacia las áreas sociales que conforman el alma de Club de Golf Bosques.
La conexión entre estas áreas a través del lobby no solo facilita la circulación, sino que enriquece la experiencia de quienes lo habitan. El lobby se convierte en un punto de encuentro, un lugar de anticipación y expectativas, donde se forjan momentos memorables antes de sumergirse en las áreas sociales.
La sala de estar, concebida como un espacio para la relajación y la interacción, te brinda un ambiente acogedor con los detalles minuciosamente ejecutados, que caracterizan la arquitectura de Taller David Dana, donde puedes disfrutar de la compañía de amigos y familiares.
El comedor, por su parte, se presenta como un escenario donde la gastronomía se convierte en un deleite para los sentidos, creando un lugar perfecto para compartir momentos especiales.
Un monumental comedor para 14 personas se despliega sobre el área, una pieza exquisita de curaduría, en tonos neutros, convergiendo en armonía con la textura en madera de otro de los elementos característicos del Taller David Dana: el estante.
Este elemento arquitectónico remata visualmente, desplegándose a lo largo del muro que divide las áreas comunes del área privada, dando como resultado un elemento funcional, cargado de valor estético y equilibrio visual, con piezas de arte, esculturas y libros en su interior, seleccionados exclusivamente para este proyecto, bajo un proceso de curaduría realizado por Asociación Arquitectura, que invitan a tener una aproximación e interacción más cercana, más personal y profunda con este espacio.
En el Departamento Club de Golf Bosques, la luz desempeña un papel trascendental en la representación de los tonos y texturas minuciosamente trabajados en este proyecto. Al acceder al espacio, la luz da vida a los materiales y colores que lo envuelven,los acabados en madera, el recubrimiento de pisos en tonos claros y los acentos de curaduría perfectamente trabajados crean una experiencia visual única y placentera.
Ficha técnica
Nombre: Departamento Club de Golf Bosques
Ubicación: Lomas de Vista Hermosa, Cuajimalpa de Morelos, Ciudad de México, México
Estudio de arquitectura: Taller David Dana Arquitectura
Arquitecto a cargo: David Dana Cohen
Superficie construida: 452,87 m2
Año de terminación: 2023
Fotografías: Francisco Álvarez
Sitio web: https://www.tallerdaviddana.com
Instagram: @tallerdaviddana























