Edificio de viviendas Ment (Mérida, Yucatán, México) por Arkham Projects + Desnivel Arquitectos. En Mérida, donde el sol es tanto un reto como una inspiración, Ment ha convertido la fachada en el alma del proyecto. En lugar de negar el sol, lo abrazamos, diseñando una serie de cartelas que recorren toda la fachada. Estas estructuras generan sombras dinámicas que protegen los interiores del calor intenso, a la vez que crean un espectáculo visual cambiante a lo largo del día. De día, la fachada se presenta como un bloque sólido y protector; de noche, se transforma en una luminosa obra de arte, gracias a la iluminación interior que resalta su diseño.
El diseño no se detiene en la estética; cada rincón de Ment está optimizado para interactuar con su entorno de manera sostenible. Las fachadas norte y sur están equipadas con volados que protegen del sol directo, aprovechando al máximo la luz natural sin dejar que el calor invade los espacios. Las fachadas este y oeste están diseñadas para abrirse hacia el paisaje natural o cerrarse para enmarcar vistas específicas, controlando la luz y la privacidad según las necesidades del momento.
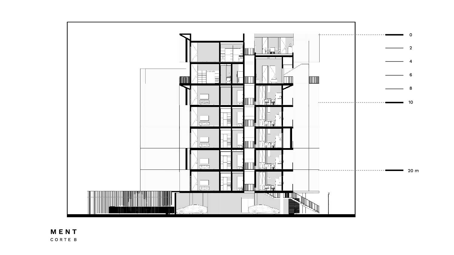
Desde el primer momento, Ment impacta. El terreno triangular de menos de 1500 metros cuadrados, el proyecto debía acomodar 27 departamentos. El diseño comenzó con una decisión estratégica de cómo ubicar el estacionamiento en la planta baja. Esta elección no solo liberó espacio en los niveles superiores, sino que también permitió una elevación que ofrecía mejores vistas y una ventilación óptima para los departamentos.
Cada departamento está pensado para maximizar el confort y la eficiencia energética, orientados al este disfrutan de la mañana y la brisa fresca. Por otro lado, los departamentos con vistas al norponiente se abren hacia el norte, permitiendo una ventilación cruzada que refresca los espacios y protege contra el sol vespertino.
Las amenidades del edificio están enfocadas en la atención al detalle y el diseño orientado al usuario. En el nivel 6, orientado al sureste, una zona de asador y una sala común ofrecen vistas verdes y excelente ventilación, creando el espacio ideal para reuniones sociales.
En el último nivel, el rooftop cuenta con una terraza y una piscina orientadas al poniente, perfectas para disfrutar de los espectaculares atardeceres de la ciudad. Además, la terraza norte proporciona vistas privilegiadas del desarrollo urbano, permitiendo a los residentes relajarse y contemplar el crecimiento y la vitalidad de la ciudad. Escenarios únicos que solo Ment puede ofrecer.
Ment es una muestra de cómo los retos arquitectónicos pueden convertirse en oportunidades de diseño. Cada detalle, desde la ubicación de las amenidades hasta el diseño de la fachada, refleja un enfoque que busca mejorar la calidad de vida de los residentes, ofreciendo espacios que no solo son funcionales, sino que dotan al proyecto de identidad.
Ficha técnica
Nombre: Ment
Ubicación: Mérida, Yucatán, México
Despacho: Arkham Projects + Desnivel Arquitectos
Autor de obra: Benjamín Peniche Calafell, Ariel Canto Novelo, Jorge Duarte Torre
Equipo de diseño: Iván Valdez Burgos, Roberto Romero Maldonado
Interiorismo: GP Arquitectos
Desarrollo: Grupo Zeo
Branding: Sin Estudio
Superficie construida: 3411,73 m2
Fecha de terminación: 2024
Fotografías: Zaickz Moz + Manolo Solís
Sitio web: https://arkhamprojects.com
English version
In Mérida, where the sun is both a challenge and an inspiration, Ment has turned the façade into the soul of the project. Instead of rejecting the sun, we embraced it by designing a series of brise-soleils that span the entire façade. These structures create dynamic shadows that protect the interiors from intense heat while offering a visual spectacle that changes throughout the day. By day, the façade appears as a solid, protective block; by night, it transforms into a luminous work of art, thanks to the interior lighting that highlights its design.
The design goes beyond aesthetics; every corner of Ment is optimized to interact sustainably with its environment. The north and south façades are equipped with overhangs that shield from direct sunlight, maximizing natural light without letting heat invade the spaces. The east and west façades are designed to open towards the natural landscape or close to frame specific views, controlling light and privacy according to the moment’s needs.
From the very beginning, Ment makes an impact. On a triangular plot of less than 1500 square meters, the project had to accommodate 27 apartments. The design started with a strategic decision on how to place the parking on the ground floor. This choice not only freed up space on the upper levels but also allowed for an elevation that offered better views and optimal ventilation for the apartments.
Each apartment is designed to maximize comfort and energy efficiency. East-facing units enjoy the morning sun and fresh breeze. On the other hand, units with northwest views open to the north, allowing cross ventilation that cools the spaces and protects against the afternoon sun.
The building’s amenities focus on attention to detail and user-oriented design. On the southeast-oriented sixth floor, a barbecue area and common room offer green views and excellent ventilation, creating the ideal space for social gatherings. On the top level, the rooftop features a terrace and pool facing west, perfect for enjoying the city’s spectacular sunsets. Additionally, the north terrace provides privileged views of urban development, allowing residents to relax and contemplate the city’s growth and vitality. Unique scenarios that only Ment can offer.
Ment is a testament to how architectural challenges can become design opportunities. Every detail, from the placement of amenities to the design of the façade, reflects an approach aimed at improving residents’ quality of life, offering spaces that are not only functional but also give the project its identity.



























































