Villa Kyoto (Región de Moscú, Rusia) por Ekaterina Yakovenko (JP Interiors design studio). Esta casa pertenece a una pareja joven, bella, activa y ambiciosa con dos hijos. Los padres se dedican a los negocios y, en su tiempo libre, aman viajar, jugar al golf, nadar juntos en familia e ir al spa. ¡El lema de su familia es «el movimiento es vida»!
Los clientes querían mudarse a la nueva casa solo 1.7 meses después de comprar la parcela de tierra y casi no se involucraron en la gestión y creación del proyecto. Definimos rápidamente el estilo y las soluciones de color e inmediatamente comenzamos el trabajo.
La petición principal fue crear un interior en tonos cálidos y naturales, lleno de aire, luz y una sensación de movimiento.
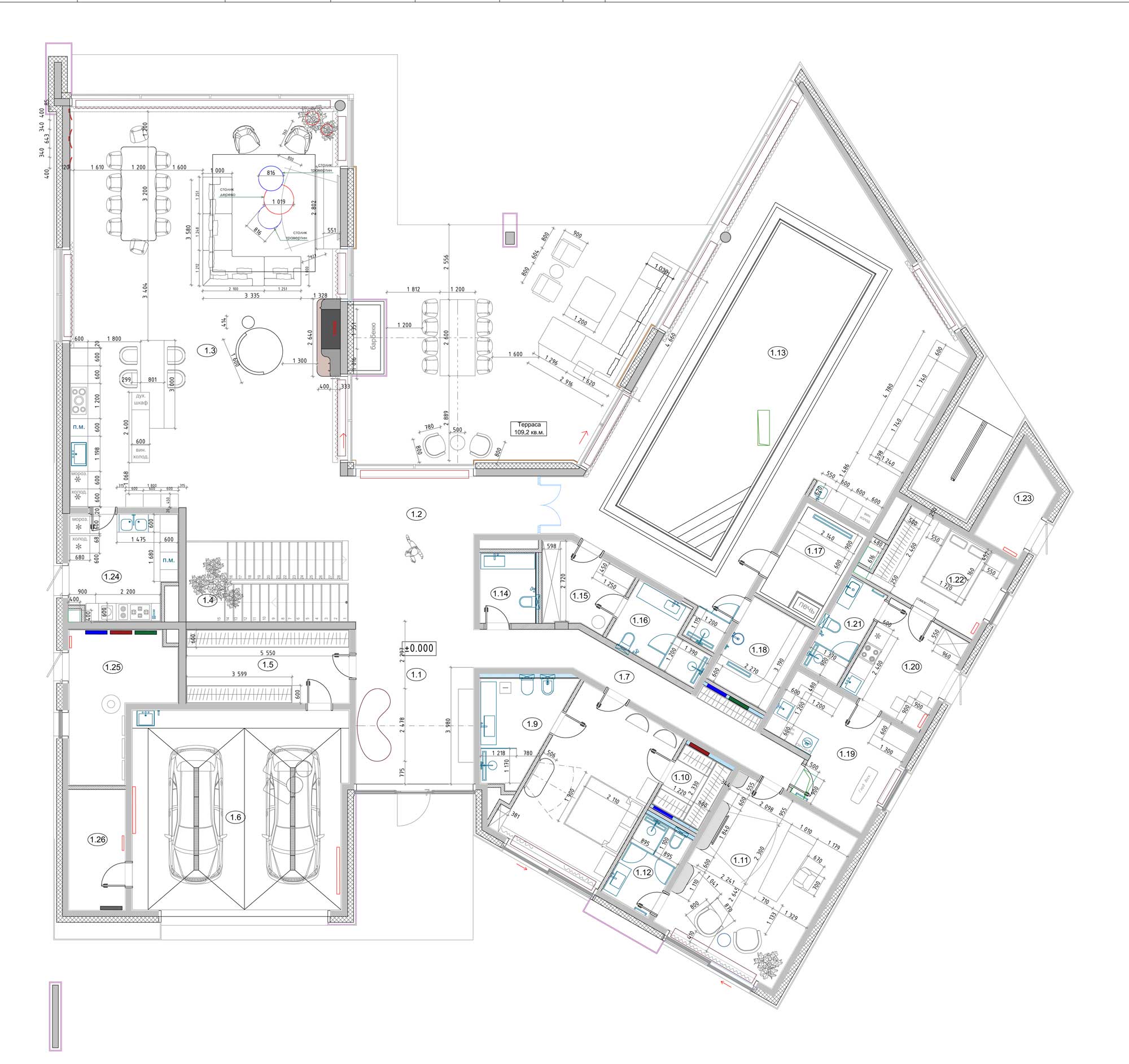
Distribución
La casa de 1222 m2 consta de dos plantas. En la planta baja hay un área de entrada con un armario, un espacio de planta abierta de 170 m2 que combina la sala de estar, el comedor y la cocina de exhibición, así como una cocina profesional para chefs invitados, una sala de juegos para niños, un baño de visitas, una terraza de 120 m2 con barbacoa, área de descanso y acceso al jardín, una piscina de 12 m2 con una sala de sal y hammam, una lavandería y un apartamento para el personal.
El segundo piso aloja la suite principal con un vestidor y baño, dos habitaciones para niños y un dormitorio de invitados.
Ambiente interior
El tema principal de este interior contemporáneo fue una conexión armoniosa con la naturaleza circundante. La casa está integrada orgánicamente en un paisaje de estilo japonés, y el interior se convirtió en una oda al minimalismo, la tranquilidad y el profundo respeto por la naturaleza.
El resultado es un espacio donde la funcionalidad se encuentra con la estética y cada elemento tiene un significado, remitiendo a la filosofía del wabi-sabi: la aceptación de la imperfección y la fugacidad de la belleza.
El estado de ánimo que quería lograr era la contemplación, la meditación y la búsqueda del equilibrio.
La imagen del interior fue moldeada por varios elementos clave:
Primero, el uso de materiales naturales: madera, piedra, latón y espejos. Ellos aportan calidez, textura y cualidad orgánica al hogar, borrando el límite entre el interior y el exterior.
Segundo, la paleta de colores restringida, basada en tonos naturales y apagados: beige, marfil, marrón y verde. Los acentos brillantes, si aparecen, son mínimos y de carácter natural.
Tercero, la abundancia de luz y aire, lograda a través de grandes ventanas sin cortinas y una cantidad mínima de muebles.
Jardines de rocas, bonsáis e ikebana, como elementos de diseño de paisaje, están perfectamente tejidos en el interior, creando una atmósfera de calma y serenidad.
Esto no es solo diseño, sino una forma de vida: una filosofía de percibir el mundo donde se valora la belleza de la simplicidad y la naturalidad.
Acabados y tecnologías
Para el portal de la chimenea en la sala de estar, utilicé no el mármol habitual sino un tipo raro de cuarcita, que crea el efecto de ondas energéticas.
Mi idea era que la piedra unificara visualmente el espacio: la chimenea y el área de TV, la isla de la cocina y el salpicadero están todos hechos en la misma combinación de colores, pero con diferentes direcciones de las vetas de la piedra. Esto creó una composición armoniosa al tiempo que le dio al espacio dinamismo y variedad.
Todas las paredes y techos están pintados con una pintura de efecto arenado para añadir textura.
Paleta de colores
En la mismísima primera reunión en el sitio acordamos con el cliente los tonos principales del interior. Se decidió que la cocina tendría un acabado metálico, mientras que todos los muebles serían en tonos crema claros y cálidos.
Muebles y decoración
La casa está amueblada principalmente con piezas contemporáneas. La cocina de Key Cucine fue hecha a medida con los accesorios internos requeridos. En la sala de estar hay un cómodo grupo de sofás de Henge, una cómoda con una inserción de piedra en la entrada de Emmemobili, y sobre ella un espejo y luminarias de Henge.
En cada proyecto donde el interior se convierte en una extensión del paisaje, lo más importante es crear una transición fluida entre los espacios interiores y exteriores: el sentimiento de unidad con la naturaleza que impregna cada rincón de la casa. Esto no es solo diseño, sino una filosofía encarnada en materiales y formas.
Los elementos más llamativos son a menudo las ventanas panorámicas que desdibujan los límites entre la casa y el jardín. Ellas enmarcan vistas pintorescas, convirtiéndolas en pinturas vivas que cambian su apariencia dependiendo de la estación y la hora del día.
Estoy especialmente orgulloso de los proyectos donde es posible crear una sensación de naturalidad que oculta un trabajo minucioso y atención al detalle. Cada elemento -desde la piedra cuidadosamente elegida en el jardín hasta el jarrón en el estante- desempeña su papel en la creación de un todo armonioso.
Ficha técnica
Nombre: Villa Kyoto
Ubicación: Región de Moscú, Rusia
Oficina de diseño: JP Interiors design studio
Diseño interior: Ekaterina Yakovenko
Superficie: 1222 m2
Estilismo: Natalia Onufreichuk @onufreichuk_before_after
Fotografías: Sergey Krasyuk @skrasyuk
Sitio web: https://www.jpinteriors.su
Instagram: @caterina_yakovenko
English version
Interior designer Ekaterina Yakovenko about the project:
This house belongs to a young, beautiful, active, and ambitious couple with two children. The parents are engaged in business, and in their free time they love to travel, play golf, swim together as a family, and go to the spa. The motto of their family is movement is life!
The clients wanted to move into the new house just 1.7 months after purchasing the land plot and were almost not involved in the management and creation of the project. We quickly defined the style and color solutions and immediately started the work.
The main request was to create an interior in warm and natural shades, filled with air, light, and a sense of movement.
Layout
The 1222 m2 house consists of two floors. On the ground floor there is an entrance area with a wardrobe, a 170 m2 open-plan space combining the living room, dining room, and show kitchen, as well as a professional kitchen for guest chefs, a children’s playroom, a guest bathroom, a 120 m2 terrace with barbecue, lounge area, and access to the garden, a 12 m2 pool with a salt room and hammam, a laundry, and an apartment for staff.
The second floor accommodates the master suite with a walk-in closet and bathroom, two children’s rooms, and a guest bedroom.
Interior mood
The main theme of this contemporary interior was a harmonious connection with the surrounding nature. The house is organically integrated into a Japanese-style landscape, and the interior became an ode to minimalism, tranquility, and deep respect for nature.
The result is a space where functionality meets aesthetics and every element carries meaning, referring to the philosophy of wabi-sabi, the acceptance of imperfection and the transience of beauty. The mood I wanted to achieve was contemplation, meditation, and the pursuit of balance.
The image of the interior was shaped by several key elements:
First, the use of natural materials -wood, stone, brass, and mirrors-. They bring warmth, texture, and organic quality into the home, erasing the boundary between indoors and outdoors.
Second, the restrained color palette, based on muted, natural tones: beige, ivory, brown, and green. Bright accents, if they appear, are minimal and natural in character.
Third, the abundance of light and air, achieved through large curtain-free windows and a minimal amount of furniture.
Rock gardens, bonsai, and ikebana, as elements of landscape design, are seamlessly woven into the interior, creating an atmosphere of calm and serenity. This is not just design, but a way of life -a philosophy of perceiving the world where the beauty of simplicity and naturalness is valued-.
Finishes and technologies
For the fireplace portal in the living room, I used not the usual marble but a rare type of quartzite, which creates the effect of energetic waves.
My idea was for the stone to visually unify the space: the fireplace and TV area, the kitchen island, and the backsplash are all done in the same color scheme, but with different directions of the stone’s veining. This created a harmonious composition while giving the space dynamism and variety.
All the walls and ceilings are painted with one suede-effect paint to add texture.
Color palette
At the very first site meeting we agreed with the client on the main shades of the interior. It was decided that the kitchen would have a metallic finish, while all the furniture would be in light cream warm tones.
Furniture and décor
The house is mainly furnished with contemporary pieces. The kitchen by Key Cucine was custom-made with the required internal fittings. In the living room there is a comfortable sofa group by Henge, a chest of drawers with a stone insert at the entrance by Emmemobili, and above it a mirror and light fixtures by Henge.
In every project where the interior becomes an extension of the landscape, the most important thing is to create a seamless transition between indoor and outdoor spaces -the feeling of unity with nature that permeates every corner of the house-. This is not just design, but a philosophy embodied in materials and forms.
The most striking elements are often the panoramic windows that blur the boundaries between the house and the garden. They frame picturesque views, turning them into living paintings that change their appearance depending on the season and time of day.
I am especially proud of projects where it is possible to create a sense of naturalness that conceals painstaking work and attention to detail. Every element -from the carefully chosen stone in the garden to the vase on the shelf- plays its part in creating a harmonious whole.

















































































































