Departamento Campos Elíseos 170 (Ciudad de México, México) por Elena Santoveña Arquitectos. En esta ocasión el concepto que llevamos a la vida implicó crear un proyecto de alto perfil que al mismo tiempo fuera atractivo a todo tipo de gustos. El proyecto consistió en la remodelación de un departamento en una de las zonas más cotizadas de la Ciudad de México con propósito de renta. Por esta razón trabajamos con materiales finos pero neutros buscando transmitir la elegancia en la simplicidad.
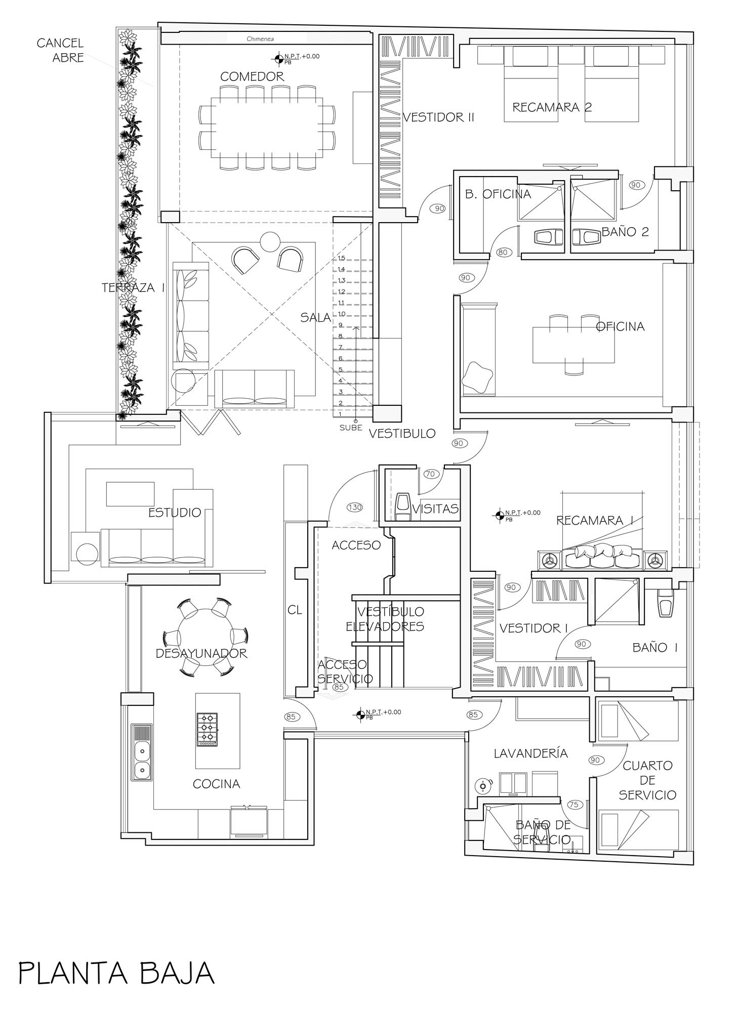
En términos de distribución, rediseñamos el espacio para optimizar cada rincón del departamento, encuadrando elementos visuales que anteriormente podían ser antiestéticos y disruptivos, como las escaleras, y modelándolos para ser una pieza central en armonía visual dentro del nuevo diseño.
Al mismo tiempo que resaltamos estos elementos visuales, fue trascendental brindarles intención para que, más allá de su atractivo visual, fueran una pieza práctica y conveniente en el día a día, dándole a las escaleras específicamente, el rol de cava de vinos y librero, mientras hacen el encuadre de las habitaciones.
Los espacios están diseñados en contrastes de materiales y colores para dar movimiento y simetría. Esto lo vemos en los pisos de madera clara en formato recto, contrastando con los muros en madera de tonos medios en formato espiga.
De la misma forma, encontramos este efecto en los baños con sus mármoles en tonos negros fríos que transmiten un tono serio y práctico, en contraste con mármol blanco que transmite luminosidad y calma.
Así mismo, vemos elementos asimétricos en el espejo del baño secundario, contrastando con un patrón perfectamente simétrico en el muro de soporte, acentuado con un lavabo en mármol negro que da el efecto de elegancia que le hacia falta a este cuarto.
Por último, la selección de maderas y tonalidades que vemos en el vestidor y los libreros le brinda a este proyecto el toque ecléctico llamativo que define la personalidad del departamento.
Este proyecto redefine el término «atemporal», brindando una imagen de elegancia adaptable a todos los gustos, mientras mantiene una armonía visual sugerente y cautivadora en un espacio en perfecta sincronía con diseño y utilidad.
Ficha técnica
Nombre: CE170
Ubicación: Ciudad de México, México
Despacho: Elena Santoveña Arquitectos
Superficie: 500 m2
Año de construcción: 2023
Fotografias: Rodrigo Solana @rsa.studio
Instagram: @elenasantovena_arquitectos
Facebook: Elena Santoveña Taller de Arquitectura
English version
On this occasion, the concept we brought to life involved creating a high-profile project that at the same time was attractive to all kinds of tastes. The project consisted of the remodeling of an apartment in one of the most sought-after areas of Mexico City for rental purposes. For this reason we work with fine but neutral materials seeking to convey elegance in simplicity.
In terms of layout, we redesigned the space to optimize every corner of the apartment, framing visual elements that could previously be unsightly and disruptive, such as the stairs, and modeling them to be a centerpiece in visual harmony within the new design.
At the same time that we highlighted these visual elements, it was transcendental to give them intention so that, beyond their visual appeal, they would be a practical and convenient piece in the day to day, giving the stairs specifically, the role of wine cellar and bookseller, while framing the rooms.
The spaces are designed in contrasts of materials and colors to give movement and symmetry. We see this in the light wood floors in straight format, contrasting with the medium-tone wooden walls in herringbone format.
In the same way, we find this effect in the bathrooms with their marbles in cold black tones that convey a serious and practical tone, in contrast with white marble that transmits luminosity and calm.
Likewise, we see asymmetrical elements in the mirror of the secondary bathroom, contrasting with a perfectly symmetrical pattern on the support wall, accentuated with a black marble sink that gives the effect of elegance that this room was missing.
Finally, the selection of woods and shades that we see in the dressing room and bookshelves gives this project the striking eclectic touch that defines the personality of the apartment.
This project redefines the term «timeless», providing an image of elegance adaptable to all tastes, while maintaining a suggestive and captivating visual harmony in a space in perfect synchrony with design and utility.





























